- HOME
- 一戸建てをエリアから探す
- さいたま市南区
- 大字広ヶ谷戸
- さいたま市南区広ヶ谷戸 第8 1号棟 全2棟
新築一戸建て

さいたま市南区広ヶ谷戸 第8 1号棟 全2棟
情報更新日:2026/05/20 次回更新予定日:2026/06/03
価 格3,890万円(税込)
所在地埼玉県さいたま市南区大字広ヶ谷戸[周辺地図]
交 通武蔵野線「東浦和」駅バス12分 停歩4分





◆エステート白馬の5大サポート◆
1.FP相談サポート
社外のファイナンシャルプランナーと資金相談が出来ます。無料で何度でもお気軽に
2.設備保証の延長サービス
新築住宅は2年、中古住宅は半年の設備修理サービスを無料で付帯しています
3.注文住宅「白馬の家」
高気密・高断熱のフルオーダー住宅「白馬の家」のご提案もできます。ご興味のある土地にプランを作るのもお任せください
4.見学時、建築士同行サービス
見学に建築士が同行し、目視検査やリフォーム費用をお伝えするなどの無料サービスを行っています
5.ご売却不動産の買取保証
一定期間で不動産売却ができなかった場合、予め定めた金額で弊社が買取いたします
1.FP相談サポート
社外のファイナンシャルプランナーと資金相談が出来ます。無料で何度でもお気軽に
2.設備保証の延長サービス
新築住宅は2年、中古住宅は半年の設備修理サービスを無料で付帯しています
3.注文住宅「白馬の家」
高気密・高断熱のフルオーダー住宅「白馬の家」のご提案もできます。ご興味のある土地にプランを作るのもお任せください
4.見学時、建築士同行サービス
見学に建築士が同行し、目視検査やリフォーム費用をお伝えするなどの無料サービスを行っています
5.ご売却不動産の買取保証
一定期間で不動産売却ができなかった場合、予め定めた金額で弊社が買取いたします
- すべて(14)
- 外観・パース(13)
- 内観(0)
- 間取・区画(1)
- その他(0)
- 動画
物件詳細情報
物件No.20000443366
| 所在地 | 埼玉県さいたま市南区大字広ヶ谷戸 | ||
|---|---|---|---|
| 交通 | 武蔵野線「東浦和」駅バス12分 バス停「広ヶ谷戸」停歩4分 京浜東北・根岸線「南浦和」駅徒歩26分 京浜東北・根岸線「浦和」駅徒歩38分 |
||
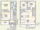
| 間取 | 3SLDK (洋室7帖、S7.5帖、LDK17帖、洋室5帖、洋室5帖) | ||
| 土地面積 | 87.54m² 公簿 | ||
| 建物面積 | 100.43m² 実測 (車庫部分約7.29平米含む) | ||
| 販売戸数 | 1戸 | 総戸数 | 全2戸 |
| 構造・規模 | 木造 2階建て | 築年・入居 | 2026年6月 |
| 建物現況 | 建築中 | 建築確認番号 | 第25UDI1W建11575号 |
| 駐車スペース | あり | 引渡時期 | 期日指定有(2026年6月) |
| 地目 | 宅地 | 用途地域 | 第一種住居地域 |
| 建ぺい率 | 60% | 容積率 | 160% |
| 都市計画 | 市街化区域 | 権利種類 | 所有権 |
| 接道 | 南東側3.3M公道に接道 | 取引態様 | 媒介 |
| 設備 | 公営水道、本下水、都市ガス | ||
| 備考・制限等 | 22条区域 15m高度地区 セットバック済 | ||
こだわり項目
整形地LDK15帖以上全室2面採光床下収納複層ガラス浄水器システムキッチンカウンターキッチントイレ2ヶ所温水洗浄便座TVモニタ付インターホンビルトガレージ小学校800m以内コンビニ400m以内
- ※価格は物件の代金総額を表示しており、消費税が課税される場合は税込み価格です。(1,000円未満は切り上げ。)
税率は引き渡し時期により異なりますので、各物件の詳細につきましてはお問い合わせください。 - ※敷地権利が借地権のものは価格に権利金を含みます。
- ※制作中に内容が変更される場合もありますので、あらかじめご了承ください。
- ※購入の前には物件内容や契約条件についてご自身で十分な確認をしていただくようにお願いいたします。
- ※完成予想図はいずれも外構、植栽、外観等実際のものとは多少異なることがあります。
- ※CG合成の画像の場合、実際とは多少異なる場合があります。
周辺地図
周辺施設一覧
- ショッピングセンター
- スーパー
- コンビニ
- ドラッグストア
- ホームセンター
- 飲食店
- その他店舗
- 商店街
- 大学
- 専門学校
- 高校・高専
- 中学校
- 小学校
- 保育園
- 幼稚園
- 公民館・児童館
- 病院
- 郵便局
- 役所
- 図書館
- 金融機関
- 警察・消防
- 趣味・娯楽施設
- 公園・運動施設
- 周辺の街並み
- 駅
- その他
お問い合せ先
- 株式会社エステート白馬 南浦和店
- お電話でのお問い合わせは
0120-934-879「ホームページを見た」とお問い合わせください - 埼玉県さいたま市南区南浦和2-38-1 北原ビル1F
- 営業時間:9:30~18:30
- 定休日:年中無休
- 免許番号:国土交通大臣免許(6)第5817号
- HOME
- 一戸建てをエリアから探す
- さいたま市南区
- 大字広ヶ谷戸
- さいたま市南区広ヶ谷戸 第8 1号棟 全2棟








