- HOME
- 一戸建てをエリアから探す
- 立川市
- 砂川町
- 立川市砂川町8丁目 戸建
立川市砂川町8丁目 戸建
情報更新日:2026/02/05 次回更新予定日:2026/02/19
価 格2,998万円(税込)
所在地東京都立川市砂川町8丁目[周辺地図]
交 通西武拝島線「武蔵砂川」駅徒歩15分





HAKUBAグループでは、土地や住まいの売買から設計、建築、
医療、介護そして保険や金融、税金対策、資産形成まで
さまざまなスペシャリストが集い、連携してサービス提供をしております。
専門知識や経験をかけあわせることで、お客様ひとりひとりにあった健康的な暮らしをお届けし、
人生が「プラス」の方向に進んでいくお手伝いをさせて頂きます。
すべての画像
家族が一番集まる場所だから広々としつつも素敵な空間であって欲しい。みんながくつろぐリビングからキッチンまでが一つの空間のように繋がる間取り。
現地のご見学予約もスタートしました。周辺で売りに出ている物件も沢山御座います。まとめてご見学ができますのでお気軽にお申しつけください。
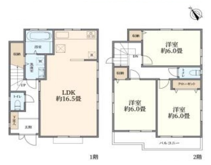
使いやすい3LDKの間取り
家族の集まるリビングは気持ちの良い自然光が差し込む団欒空間。室内のご見学予約も随時、受付中ですのでお気軽にお問合せください。
キッチンコンロスペースの近くには、空気の入れ替えが可能な開口部を設置!! お料理をする際には、換気扇を回しながら匂いが籠らない様に開放してお料理もお楽しみ頂けます。
浴室乾燥機の他にも開口部のある浴室スペース。 お風呂上がりの湿気も、窓を開けておくことで改善可能。 お湯につかりながら、ちょっとした露天気分?
三面鏡に洗面台。 コンセントに照明機能、多機能性を備えた設備です。
お家からの眺望です。開放感のある眺め。
窓からの眺望です。実際に現地で眺望もご確認ください。
勾配天井の2階のお部屋。この勾配の角度がお洒落な雰囲気を感じさせてくれます。
周辺は住宅が建ち並ぶ閑静な住宅街です。
周辺のエリアで他にも沢山売りに出ている物件があります。インターネット掲載前の情報などもありますのでお気軽にお問合せください。まとめてご見学できます。
家族が食事するダイニングスペースをキッチンから見渡せる設計に。お料理をしながら家族とのコミュニケーションが増えそうな予感。
実際に室内をご見学頂くと生活のイメージが広がると思います。家具を置いたイメージや窓からの景色など。周辺で販売に出している物件も一緒にまとめてご見学頂き、比較する事もできます。お気軽に担当スタッフまでお申しつけください。
キッチンは、カウンターや壁付けタイプ、アイランドタイプ様々なパターンが御座います。 お好みも分かれる所ではありますが、壁付け対応は閉鎖的にならずに明るいキッチンスペースとしてご希望を頂く事も多いタイプ。
一日の疲れを癒してくれるゆったりとしたバスルームです。
三面鏡に洗面台。 コンセントに照明機能、多機能性を備えた設備です。
トイレにはウォシュレット機能を標準装備。
洋室はモダンなデザインと機能性を備え、快適な生活空間に。明るい窓から差し込む自然光が広々とした空間をさらに明るく開放的に感じさせます。
スタイリッシュなデザインと快適な居住性を兼ね備えた洋室。広々とした空間は、自分らしいインテリアを楽しむことができるほか、リラックスした時間を過ごすことができそうです。
勾配天井の2階のお部屋。この勾配の角度がお洒落な雰囲気を感じさせてくれます。
スマートなデザインと賢い収納が生活を快適にします。広々とした雰囲気を演出する工夫が施され、生活空間の魅力を引き出します。
実際に室内をご見学頂くと生活のイメージが広がると思います。家具を置いたイメージや窓からの景色など。周辺で販売に出している物件も一緒にまとめてご見学頂き、比較する事もできます。お気軽に担当スタッフまでお申しつけください。
周辺のエリアで他にも沢山売りに出ている物件があります。インターネット掲載前の情報などもありますのでお気軽にお問合せください。まとめてご見学できます。
現地のご見学予約もスタートしました。周辺で売りに出ている物件も沢山御座います。まとめてご見学ができますのでお気軽にお申しつけください。
クローゼットなど収納も豊富なお家です。
各所に効率的に配置された収納スペースがあり、日常のモノをすっきりと収納できます。
収納スペースがたっぷりと確保されたこの物件では、生活をより快適に送ることができます。広々としたクローゼットや洗練されたキッチン収納、そして室内の隅々まで有効活用された収納スペースが、快適な生活をサポートします。
季節の変化や天気の良い日には、バルコニーでの時間が心地よく、気分をリフレッシュさせることができます。
日々の忙しさやストレスから離れ、バルコニーで静かに深呼吸、心が穏やかになります。
玄関は家の第一印象を左右する重要な場所。ほどよい広さとスタイリッシュな色遣いが印象的です。
現地のご見学予約もスタートしました。周辺で売りに出ている物件も沢山御座います。まとめてご見学ができますのでお気軽にお申しつけください。
担当スタッフより

- 長谷川 佳行
- 現地ご見学予約スタートしました。他にもインターネットに掲載していない情報も沢山ありますので、まとめてご見学可能です。また、年中無休(年末年始を除く)で営業しております。火曜日水曜日も営業しておりますのでお気軽にお問合せください。
物件詳細情報
物件No.20000362244
| 所在地 | 東京都立川市砂川町8丁目 | ||
|---|---|---|---|
| 交通 | 西武拝島線「武蔵砂川」駅徒歩15分 多摩モノレール「玉川上水」駅徒歩23分 多摩モノレール「桜街道」駅徒歩23分 |
||
| 間取 | 3LDK | ||
| 土地面積 | 102.5m² 公簿 (路地状部分31.9平方メートル含む) | ||
| 建物面積 | 81.15m² 公簿 | ||
| 構造・規模 | 木造 2階建て | 築年月 | 2014年4月築 |
| バルコニー | 南西向き | 国土法届出 | 不要 |
| 地目 | 宅地 | 用途地域 | 第一種低層住居専用地域 |
| 建ぺい率 | 40% | 容積率 | 80% |
| 都市計画 | 市街化区域 | 駐車スペース | あり(カースペース) |
| 現況 | 空家 | 引渡時期 | 相談 |
| 権利種類 | 所有権 | 接道 | 南西側5M公道に接道 |
| 小学校区 | 上砂川小学校(1100m) | 中学校区 | 立川第五中学校(2000m) |
| 取引態様 | 媒介 | ||
| 設備 | 公営水道、本下水、都市ガス エネファーム |
||
こだわり項目
- ※価格は物件の代金総額を表示しており、消費税が課税される場合は税込み価格です。(1,000円未満は切り上げ。)
税率は引き渡し時期により異なりますので、各物件の詳細につきましてはお問い合わせください。 - ※敷地権利が借地権のものは価格に権利金を含みます。
- ※制作中に内容が変更される場合もありますので、あらかじめご了承ください。
- ※購入の前には物件内容や契約条件についてご自身で十分な確認をしていただくようにお願いいたします。
- ※完成予想図はいずれも外構、植栽、外観等実際のものとは多少異なることがあります。
- ※CG合成の画像の場合、実際とは多少異なる場合があります。
周辺地図
周辺施設一覧
- ショッピングセンター
- スーパー
- コンビニ
- ドラッグストア
- ホームセンター
- 飲食店
- その他店舗
- 商店街
- 大学
- 専門学校
- 高校・高専
- 中学校
- 小学校
- 保育園
- 幼稚園
- 公民館・児童館
- 病院
- 郵便局
- 役所
- 図書館
- 金融機関
- 警察・消防
- 趣味・娯楽施設
- 公園・運動施設
- 周辺の街並み
- 駅
- その他
お問い合せ先
- 株式会社エステート白馬 国分寺店
- お電話でのお問い合わせは
0120-846-898「ホームページを見た」とお問い合わせください - 東京都国分寺市本町4-19-10 ビッググラッド国分寺1F
- 営業時間:9:30~18:30
- 定休日:年中無休
- 免許番号:国土交通大臣免許(6)第5817号
- HOME
- 一戸建てをエリアから探す
- 立川市
- 砂川町
- 立川市砂川町8丁目 戸建





