- HOME
- 中古マンションをエリアから探す
- 川口市
- 東川口
- シャルム東川口伍番館
中古マンション
シャルム東川口伍番館
情報更新日:2026/01/22 次回更新予定日:2026/02/05
価 格3,698万円
所在地埼玉県川口市東川口4丁目[周辺地図]
交 通武蔵野線「東川口」駅徒歩10分






◆エステート白馬の5大サポート◆
1.FP相談サポート
社外のファイナンシャルプランナーと資金相談が出来ます。無料で何度でもお気軽に
2.設備保証の延長サービス
新築住宅は2年、中古住宅は半年の設備修理サービスを無料で付帯しています
3.注文住宅「白馬の家」
高気密・高断熱のフルオーダー住宅「白馬の家」のご提案もできます。ご興味のある土地にプランを作るのもお任せください
4.見学時、建築士同行サービス
見学に建築士が同行し、目視検査やリフォーム費用をお伝えするなどの無料サービスを行っています
5.ご売却不動産の買取保証
一定期間で不動産売却ができなかった場合、予め定めた金額で弊社が買取いたします
1.FP相談サポート
社外のファイナンシャルプランナーと資金相談が出来ます。無料で何度でもお気軽に
2.設備保証の延長サービス
新築住宅は2年、中古住宅は半年の設備修理サービスを無料で付帯しています
3.注文住宅「白馬の家」
高気密・高断熱のフルオーダー住宅「白馬の家」のご提案もできます。ご興味のある土地にプランを作るのもお任せください
4.見学時、建築士同行サービス
見学に建築士が同行し、目視検査やリフォーム費用をお伝えするなどの無料サービスを行っています
5.ご売却不動産の買取保証
一定期間で不動産売却ができなかった場合、予め定めた金額で弊社が買取いたします
すべての画像
CGで家具を配置しております。家具配置のイメージにご覧ください。
CGで家具を配置しております。家具配置のイメージにご覧ください。
現地外観
現況と図面が異なる場合は、現況を優先とさせていただきます。
ご家族みんながゆったりくつろげる広々リビング。
お家の中心となる大きな空間がご家族のコミュニケーションスペースになる筈です。
料理をしながらでもご家族との会話を楽しめる対面キッチン。
お子様と並んで料理をしても余裕のゆとりのキッチン
・浴室暖房付で寒い日の入浴も安心ぽかぽか・
ナチュラルウッドの色合いが、室内にあたたかな雰囲気を運びます。
子供部屋
洋室
清潔好きには欠かせないウォシュレット機能付き。
お出かけ前の身だしなみに一歩差がつく三面鏡。
季節ごとの大物もしまえるたっぷりの収納スペース。
ご家族の思い出も大切にしまっておけるたっぷり収納。
物件詳細情報
物件No.20000410641
| 所在地 | 埼玉県川口市東川口4丁目 | ||
|---|---|---|---|
| 交通 | 武蔵野線「東川口」駅徒歩10分 埼玉高速鉄道「浦和美園」駅徒歩25分 埼玉高速鉄道「戸塚安行」駅徒歩36分 |
||
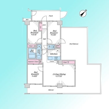
| 間取 | 3LDK (LD17.5帖、洋室4.8帖、洋室5.4帖、洋室5.6帖) | ||
| 専有面積 | 74.46m² | ||
| バルコニー面積 | 17.09m² 南東向き (別途ルーフバルコニー44.32平米) | ||
| 総戸数 | 全56戸 | 構造・規模 | 鉄筋コンクリート造 5階建て 5階部分 |
| 築年・入居 | 1995年2月築 | 現況 | 空室 |
| 引渡時期 | 即引渡可 | 権利種類 | 所有権 |
| 管理費 | 15,800円/月 | 修繕積立金 | 11,090円/月 |
| 管理形態 | 日勤 全部委託 | 駐輪場料金 | 100円/月 |
| ルーフバルコニー使用料 | 1,600円/月 | 取引態様 | 媒介 |
| リフォーム |
|
||
| 設備 | 都市ガス | ||
こだわり項目
LDK15帖以上ルーフバルコニー角部屋リフォーム済み食器洗浄機浄水器ガスコンロシステムキッチンカウンターキッチン3口以上コンロ温水洗浄便座シャワー付洗面台浴室乾燥機浴室暖房追焚機能オートバス室内洗濯機置き場洗濯機置き場TVモニタ付インターホンオートロックエレベーター駐輪場全居室フローリング小学校800m以内コンビニ400m以内陽当り良好通風良好眺望良好
- ※価格は物件の代金総額を表示しており、消費税が課税される場合は税込み価格です。(1,000円未満は切り上げ。)
税率は引き渡し時期により異なりますので、各物件の詳細につきましてはお問い合わせください。 - ※敷地権利が借地権のものは価格に権利金を含みます。
- ※制作中に内容が変更される場合もありますので、あらかじめご了承ください。
- ※購入の前には物件内容や契約条件についてご自身で十分な確認をしていただくようにお願いいたします。
- ※完成予想図はいずれも外構、植栽、外観等実際のものとは多少異なることがあります。
- ※CG合成の画像の場合、実際とは多少異なる場合があります。
周辺地図
周辺施設一覧
- ショッピングセンター
- スーパー
- コンビニ
- ドラッグストア
- ホームセンター
- 飲食店
- その他店舗
- 商店街
- 大学
- 専門学校
- 高校・高専
- 中学校
- 小学校
- 保育園
- 幼稚園
- 公民館・児童館
- 病院
- 郵便局
- 役所
- 図書館
- 金融機関
- 警察・消防
- 趣味・娯楽施設
- 公園・運動施設
- 周辺の街並み
- 駅
- その他
お問い合せ先
- 株式会社エステート白馬 南浦和店
- お電話でのお問い合わせは
0120-934-879「ホームページを見た」とお問い合わせください - 埼玉県さいたま市南区南浦和2-38-1 北原ビル1F
- 営業時間:9:30~18:30
- 定休日:年中無休
- 免許番号:国土交通大臣免許(6)第5817号

























