- HOME
- 中古マンションをエリアから探す
- 川口市
- 上青木
- ハイストンハイツ
中古マンション
ハイストンハイツ
情報更新日:2026/01/11 次回更新予定日:2026/01/25
価 格2,480万円(税込)
所在地埼玉県川口市上青木1丁目[周辺地図]
交 通京浜東北・根岸線「西川口」駅徒歩17分





◆エステート白馬の5大サポート◆
1.FP相談サポート
社外のファイナンシャルプランナーと資金相談が出来ます。無料で何度でもお気軽に
2.設備保証の延長サービス
新築住宅は2年、中古住宅は半年の設備修理サービスを無料で付帯しています
3.注文住宅「白馬の家」
高気密・高断熱のフルオーダー住宅「白馬の家」のご提案もできます。ご興味のある土地にプランを作るのもお任せください
4.見学時、建築士同行サービス
見学に建築士が同行し、目視検査やリフォーム費用をお伝えするなどの無料サービスを行っています
5.ご売却不動産の買取保証
一定期間で不動産売却ができなかった場合、予め定めた金額で弊社が買取いたします
1.FP相談サポート
社外のファイナンシャルプランナーと資金相談が出来ます。無料で何度でもお気軽に
2.設備保証の延長サービス
新築住宅は2年、中古住宅は半年の設備修理サービスを無料で付帯しています
3.注文住宅「白馬の家」
高気密・高断熱のフルオーダー住宅「白馬の家」のご提案もできます。ご興味のある土地にプランを作るのもお任せください
4.見学時、建築士同行サービス
見学に建築士が同行し、目視検査やリフォーム費用をお伝えするなどの無料サービスを行っています
5.ご売却不動産の買取保証
一定期間で不動産売却ができなかった場合、予め定めた金額で弊社が買取いたします
物件詳細情報
物件No.20000416801
| 所在地 | 埼玉県川口市上青木1丁目 | ||
|---|---|---|---|
| 交通 | 京浜東北・根岸線「西川口」駅徒歩17分 埼玉高速鉄道「南鳩ヶ谷」駅徒歩26分 埼玉高速鉄道「鳩ヶ谷」駅徒歩30分 |
||
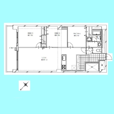
| 間取 | 2SLDK (LDK20.1帖、洋室7帖、洋室6帖、S5.4帖) | ||
| 専有面積 | 86.4m² (壁芯) | ||
| バルコニー面積 | 9.9m² 北東向き | ||
| 販売戸数 | 1戸 | 総戸数 | 全95戸 |
| 構造・規模 | 鉄骨鉄筋コンクリート造 9階建て 4階部分 |
築年・入居 | 1975年9月築 |
| 現況 | 空室 | 引渡時期 | 相談 |
| 権利種類 | 所有権 | 管理費 | 12,300円/月 |
| 修繕積立金 | 12,800円/月 | 管理形態 | 日勤 全部委託 |
| 駐輪場料金 | 100円/月 | バイク置場料金 | 200円/月 |
| ペット | 不可 | 取引態様 | 媒介 |
| リフォーム |
|
||
| 備考・制限等 | リフォーム完了2025年10月下旬 | ||
こだわり項目
LDK15帖以上リフォーム済み全居室収納食器洗浄機システムキッチンカウンターキッチン3口以上コンロ浴室乾燥機浴室暖房シューズインクローゼットエレベーター駐輪場バイク置場小学校800m以内コンビニ400m以内公園800m以内
- ※価格は物件の代金総額を表示しており、消費税が課税される場合は税込み価格です。(1,000円未満は切り上げ。)
税率は引き渡し時期により異なりますので、各物件の詳細につきましてはお問い合わせください。 - ※敷地権利が借地権のものは価格に権利金を含みます。
- ※制作中に内容が変更される場合もありますので、あらかじめご了承ください。
- ※購入の前には物件内容や契約条件についてご自身で十分な確認をしていただくようにお願いいたします。
- ※完成予想図はいずれも外構、植栽、外観等実際のものとは多少異なることがあります。
- ※CG合成の画像の場合、実際とは多少異なる場合があります。
周辺地図
周辺施設一覧
- ショッピングセンター
- スーパー
- コンビニ
- ドラッグストア
- ホームセンター
- 飲食店
- その他店舗
- 商店街
- 大学
- 専門学校
- 高校・高専
- 中学校
- 小学校
- 保育園
- 幼稚園
- 公民館・児童館
- 病院
- 郵便局
- 役所
- 図書館
- 金融機関
- 警察・消防
- 趣味・娯楽施設
- 公園・運動施設
- 周辺の街並み
- 駅
- その他
お問い合せ先
- 株式会社エステート白馬 南浦和店
- お電話でのお問い合わせは
0120-934-879「ホームページを見た」とお問い合わせください - 埼玉県さいたま市南区南浦和2-38-1 北原ビル1F
- 営業時間:9:30~18:30
- 定休日:年中無休
- 免許番号:国土交通大臣免許(6)第5817号


















