- HOME
- 一戸建てをエリアから探す
- さいたま市岩槻区
- 大字岩槻
- さいたま市岩槻区岩槻
さいたま市岩槻区岩槻
情報更新日:2025/11/12 次回更新予定日:2025/11/22 取引条件有効期限:2025/11/22
所在地埼玉県さいたま市岩槻区大字岩槻[周辺地図]
交 通東武野田線「岩槻」駅徒歩25分





1.JR高崎線「上尾駅」から徒歩1分
駅前の「イトーヨーカドー上尾駅前店」内に立地。
2.無料駐車場完備のお店
立体駐車場は全480台収容可。駐車場完備してます。
3.大型キッズスペース
当店自慢のキッズスペースをぜひご覧ください。店内におむつ替えコーナーもご用意してます。
4.年中無休・365日営業でお手伝い
営業時間:10時~20時まで。スピードある対応が自慢のお店です。
5.提携FPへの無料個別相談サービス
社外の中立的なファイナンシャルプランナーと無料相談。
ローン返済について、老後や学費等も含めたシミュレーションをご提案できます。
すべての画像
1号棟 開放感と採光にこだわったLDK。 2025/10/05m
2号棟 開放感と採光にこだわった、18帖のLDK。 2025/10/06m
3号棟 今なら建築中の住まいをご覧いただけます。構造体の質問もお気軽に。 2025/10/05m
5号棟 開放感と採光にこだわった、18帖のLDK。 2025/10/06m
6号棟 今なら建築中の住まいをご覧いただけます。構造体の質問もお気軽に。 2025/10/05m
7号棟 今なら建築中の住まいをご覧いただけます。構造体の質問もお気軽に。 2025/10/05m
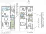
1号棟 図面と異なる場合は現況を優先
2号棟 図面と異なる場合は現況を優先
3号棟 図面と異なる場合は現況を優先
5号棟 図面と異なる場合は現況を優先
6号棟 図面と異なる場合は現況を優先
7号棟 図面と異なる場合は現況を優先
1号棟 解放感あふれるリビングは、自然に光と風に恵まれます。 2025/10/05m
2号棟 開放的なこの空間がお客様をお出迎えします。LDKは18帖。 2025/10/06m
3号棟
5号棟 解放感あふれるリビングは、自然に光と風に恵まれます。 2025/10/05m
6号棟
7号棟
1号棟 リビングで遊ぶお子様を見守りながらお料理ができる、対面キッチン。 2025/10/05m
2号棟 キッチンの性能が上がれば、いつものお料理も楽しくなりますね。 2025/10/06m
3号棟 駐車場は2台まで駐車可能。マイカーの車幅もお確かめください。
5号棟 キッチンの性能が上がれば、いつものお料理も楽しくなりますね。 2025/10/06m
6号棟
7号棟 駐車が苦手な方にも嬉しい、前面6m道路に面した住まい。
1号棟 子供部屋には丁度良い洋室。 2025/10/06m
2号棟 子供部屋には丁度良い洋室。 2025/10/06m
3号棟 前面道路は歩道も整備され、小さなお子様にも安心です。
5号棟 この部屋だれの部屋にしようかな、なんて会話を現地で楽しんでください。 2025/10/06m
6号棟 前面道路は歩道も整備され、小さなお子様にも安心です。
7号棟 風通し・日当たりに優れる角地。開放感をお楽しみください。
1号棟 たっぷりの陽光に包まれる明るい住まいが、ここにあります。 2025/10/06m
2号棟 この部屋だれの部屋にしようかな、なんて会話を現地で楽しんでください。 2025/10/06m
3号棟
5号棟 広々バルコニーから、たっぷり太陽の恵みが得られます。 2025/10/06m
6号棟
7号棟
1号棟 広々1坪タイプのゆったり浴室ユニット半身浴もゆっくり楽しめるベンチバス仕様。防カビ・抗菌素材なのもうれしい。 2025/10/06m
2号棟 広々1坪タイプのゆったり浴室ユニット半身浴もゆっくり楽しめるベンチバス仕様。防カビ・抗菌素材なのもうれしい。 2025/10/06m
3号棟 2025/11/04m
5号棟 広々1坪タイプのゆったり浴室ユニットは半身浴もゆっくり楽しめるベンチバス仕様。防カビ・抗菌素材なのもうれしい。 2025/10/06m
担当スタッフより

- 溝口理子
- 当店には宅地建物取引士やファイナンシャルプランナー、住宅ローンアドバイザーなど、専門資格を持つスタッフが多数在籍しております。お客様からの資料請求、お問い合わせをお待ちしております。
各棟情報
物件詳細情報
物件No.20000425397
| 所在地 | 埼玉県さいたま市岩槻区大字岩槻 | ||
|---|---|---|---|
| 交通 | 東武野田線「岩槻」駅徒歩25分 東武野田線「東岩槻」駅徒歩22分 東武野田線「豊春」駅徒歩40分 |
||
| 間取 | 3LDK~4LDK | ||
| 土地面積 | 124m² ~ 143m² 実測 | ||
| 建物面積 | 100.19m² ~ 108.48m² 実測 | ||
| 販売戸数 | 6戸 | 総戸数 | 全8戸 |
| 構造・規模 | 木造 2階建て | 築年・入居 | 2026年1月 |
| 建物現況 | 建築中 | 建築確認番号 | 第25UDI1W建02227号、他 |
| 駐車スペース | 2台可(カースペース) | 引渡時期 | 期日指定有(2026年1月中旬) |
| 国土法届出 | 不要 | 地目 | 畑 |
| 用途地域 | 第二種住居地域 | 建ぺい率 | 60% |
| 容積率 | 200% | 都市計画 | 市街化区域 |
| 権利種類 | 所有権 | 接道 | 南西側16M公道に接道 |
| 小学校区 | さいたま市立城北小学校(500m) | 中学校区 | さいたま市立城北中学校(950m) |
| 取引態様 | 媒介 | ||
| 設備 | 公営水道、本下水、都市ガス 公共下水、24時間換気システム、シックハウス対策、バルコニー、照明器具、フローリング、火災警報器(報知機) |
||
| その他制限事項 | 景観法 | ||
| 備考・制限等 | 法第22条区域 地区計画区域内(江戸川地区B地区) さいたま都市計画事業江戸川土地区画整理事業(仮換地:24街区10-7画地)、換地予定:2035年3月 宅地造成等工事規制区域 15m高度地区 景観法 ゴミ置場持分:3.06平米×1/8有 | ||
こだわり項目
- ※価格は物件の代金総額を表示しており、消費税が課税される場合は税込み価格です。(1,000円未満は切り上げ。)
税率は引き渡し時期により異なりますので、各物件の詳細につきましてはお問い合わせください。 - ※敷地権利が借地権のものは価格に権利金を含みます。
- ※制作中に内容が変更される場合もありますので、あらかじめご了承ください。
- ※購入の前には物件内容や契約条件についてご自身で十分な確認をしていただくようにお願いいたします。
- ※完成予想図はいずれも外構、植栽、外観等実際のものとは多少異なることがあります。
- ※CG合成の画像の場合、実際とは多少異なる場合があります。
周辺地図
周辺施設一覧
- ショッピングセンター
- スーパー
- コンビニ
- ドラッグストア
- ホームセンター
- 飲食店
- その他店舗
- 商店街
- 大学
- 専門学校
- 高校・高専
- 中学校
- 小学校
- 保育園
- 幼稚園
- 公民館・児童館
- 病院
- 郵便局
- 役所
- 図書館
- 金融機関
- 警察・消防
- 趣味・娯楽施設
- 公園・運動施設
- 周辺の街並み
- 駅
- その他
お問い合せ先
- 株式会社エステート白馬 上尾駅前店
- お電話でのお問い合わせは
0120-307-898「ホームページを見た」とお問い合わせください - 埼玉県上尾市谷津2-1-1 ショーサンプラザ(イトーヨーカ堂)5F
- 営業時間:9:00~20:00
- 定休日:年中無休
- 免許番号:国土交通大臣免許(6)第5817号







