- HOME
- 中古マンションをエリアから探す
- 三鷹市
- 下連雀
- 日生三鷹マンション
日生三鷹マンション
情報更新日:2025/11/14 次回更新予定日:2025/11/28
価 格5,980万円(税込)
所在地東京都三鷹市下連雀4丁目[周辺地図]
交 通中央線「三鷹」駅徒歩10分






お店もたくさんあって、行き帰りが楽しい立地です。
室内リフォーム完了しました。ペット飼育可。
※アフターサービス保証書付き
◎こころとカラダに、うれしい暮らし
HAKUBAグループでは、土地や住まいの売買から設計、建築、
医療、介護そして保険や金融、税金対策、資産形成まで
さまざまなスペシャリストが集い、連携してサービス提供をしております。
専門知識や経験をかけあわせることで、お客様ひとりひとりにあった健康的な暮らしをお届けし、
人生が「プラス」の方向に進んでいくお手伝いをさせて頂きます。
すべての画像
家族が一番集まる場所だから広々としつつも素敵な空間であって欲しい。みんながくつろぐリビングからキッチンまでが一つの空間のように繋がる間取り。
現地のご見学予約もスタートしました。周辺で売りに出ている物件も沢山御座います。まとめてご見学ができますのでお気軽にお申しつけください。
実際に室内をご見学頂くと生活のイメージが広がると思います。家具を置いたイメージや窓からの景色など。周辺で販売に出している物件も一緒にまとめてご見学頂き、比較する事もできます。お気軽に担当スタッフまでお申しつけください。
カウンターキッチンならではの開放的な見通し、全体が見渡せることでご家族の団欒スペースもより明るく笑顔が溢れる空間となります。
一日の疲れを癒してくれるバスルームです。
三面鏡に洗面台。 コンセントに照明機能、多機能性を備えた設備です。
窓からの眺望です。実際に現地で眺望もご確認ください。
洋室はモダンなデザインと機能性を備え、快適な生活空間に。明るい窓から差し込む自然光が広々とした空間をさらに明るく開放的に感じさせます。
周辺のエリアで他にも沢山売りに出ている物件があります。インターネット掲載前の情報などもありますのでお気軽にお問合せください。まとめてご見学できます。
カウンターキッチンならではの開放的な見通し、全体が見渡せることでご家族の団欒スペースもより明るく笑顔が溢れる空間となります。
お料理をしながらリビングの家族やゲストとの会話が楽しめるカウンタータイプのキッチン。毎日のお料理を楽しく快適に。
各所に効率的に配置された収納スペースがあり、日常のモノをすっきりと収納できます。
お料理をしながらリビングの家族やゲストとの会話が楽しめるカウンタータイプのキッチン。毎日のお料理を楽しく快適に。
カウンターキッチンならではの開放的な見通し、全体が見渡せることでご家族の団欒スペースもより明るく笑顔が溢れる空間となります。
家族が一番集まる場所だから広々としつつも素敵な空間であって欲しい。みんながくつろぐリビングからキッチンまでが一つの空間のように繋がる間取り。
家族が一番集まる場所だから広々としつつも素敵な空間であって欲しい。みんながくつろぐリビングからキッチンまでが一つの空間のように繋がる間取り。
洋室はモダンなデザインと機能性を備え、快適な生活空間に。明るい窓から差し込む自然光が広々とした空間をさらに明るく開放的に感じさせます。
玄関は家の第一印象を左右する重要な場所。ほどよい広さとスタイリッシュな色遣いが印象的です。
階段下を有効活用したトイレスペース。 便座はもちろんウォシュレット。
三面鏡に洗面台。 コンセントに照明機能、多機能性を備えた設備です。
実際に室内をご見学頂くと生活のイメージが広がると思います。家具を置いたイメージや窓からの景色など。周辺で販売に出している物件も一緒にまとめてご見学頂き、比較する事もできます。お気軽に担当スタッフまでお申しつけください。
洋室はモダンなデザインと機能性を備え、快適な生活空間に。明るい窓から差し込む自然光が広々とした空間をさらに明るく開放的に感じさせます。
実際に室内をご見学頂くと生活のイメージが広がると思います。家具を置いたイメージや窓からの景色など。周辺で販売に出している物件も一緒にまとめてご見学頂き、比較する事もできます。お気軽に担当スタッフまでお申しつけください。
実際に室内をご見学頂くと生活のイメージが広がると思います。家具を置いたイメージや窓からの景色など。周辺で販売に出している物件も一緒にまとめてご見学頂き、比較する事もできます。お気軽に担当スタッフまでお申しつけください。
洋室はモダンなデザインと機能性を備え、快適な生活空間に。明るい窓から差し込む自然光が広々とした空間をさらに明るく開放的に感じさせます。
季節の変化や天気の良い日には、バルコニーでの時間が心地よく、気分をリフレッシュさせることができます。
エントランス
エントランス
窓からの眺望です。実際に現地で眺望もご確認ください。
窓からの眺望です。実際に現地で眺望もご確認ください。
実際に室内をご見学頂くと生活のイメージが広がると思います。家具を置いたイメージや窓からの景色など。周辺で販売に出している物件も一緒にまとめてご見学頂き、比較する事もできます。お気軽に担当スタッフまでお申しつけください。
現地のご見学予約もスタートしました。周辺で売りに出ている物件も沢山御座います。まとめてご見学ができますのでお気軽にお申しつけください。
担当スタッフより

- 原 毅
- 現地ご見学予約スタートしました。他にもインターネットに掲載していない情報も沢山ありますので、まとめてご見学可能です。また、年中無休(年末年始を除く)で営業しております。火曜日水曜日も営業しておりますのでお気軽にお問合せください。
物件詳細情報
物件No.20000426503
| 所在地 | 東京都三鷹市下連雀4丁目 | ||
|---|---|---|---|
| 交通 | 中央線「三鷹」駅徒歩10分 中央線「吉祥寺」駅徒歩30分 中央線「武蔵境」駅徒歩29分 |
||
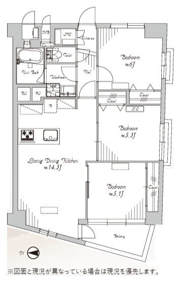
| 間取 | 3LDK | ||
| 専有面積 | 68.11m² (壁芯) | ||
| バルコニー面積 | 10.02m² 西向き | ||
| 販売戸数 | 1戸 | 総戸数 | 全102戸 |
| 構造・規模 | 鉄骨鉄筋コンクリート造 9階建て 5階部分 |
築年・入居 | 1972年3月築 |
| 施工会社 | (株)大林組 | 現況 | 空室 |
| 引渡時期 | 即引渡可 | 権利種類 | 所有権 |
| 管理費 | 13,622円/月 | 修繕積立金 | 10,216円/月 |
| 管理形態 | 日勤 全部委託 | 管理会社 | 伊藤忠アーバンコミュニティ(株) |
| 駐車場 | 敷地内にあり(並列) 料金:25,000 ~ 25,000円/月 | 駐輪場料金 | 500円〜500円/月 |
| バイク置場料金 | 1,000円〜1,000円/月 | ペット | 不可 |
| 取引態様 | 媒介 | ||
| リフォーム |
|
||
| 設備 | 公営水道、本下水、都市ガス | ||
こだわり項目
- ※価格は物件の代金総額を表示しており、消費税が課税される場合は税込み価格です。(1,000円未満は切り上げ。)
税率は引き渡し時期により異なりますので、各物件の詳細につきましてはお問い合わせください。 - ※敷地権利が借地権のものは価格に権利金を含みます。
- ※制作中に内容が変更される場合もありますので、あらかじめご了承ください。
- ※購入の前には物件内容や契約条件についてご自身で十分な確認をしていただくようにお願いいたします。
- ※完成予想図はいずれも外構、植栽、外観等実際のものとは多少異なることがあります。
- ※CG合成の画像の場合、実際とは多少異なる場合があります。
周辺地図
周辺施設一覧
- ショッピングセンター
- スーパー
- コンビニ
- ドラッグストア
- ホームセンター
- 飲食店
- その他店舗
- 商店街
- 大学
- 専門学校
- 高校・高専
- 中学校
- 小学校
- 保育園
- 幼稚園
- 公民館・児童館
- 病院
- 郵便局
- 役所
- 図書館
- 金融機関
- 警察・消防
- 趣味・娯楽施設
- 公園・運動施設
- 周辺の街並み
- 駅
- その他
お問い合せ先
- 株式会社エステート白馬 国分寺店
- お電話でのお問い合わせは
0120-846-898「ホームページを見た」とお問い合わせください - 東京都国分寺市本町4-19-10 ビッググラッド国分寺1F
- 営業時間:9:30~18:30
- 定休日:年中無休
- 免許番号:国土交通大臣免許(6)第5817号





