- HOME
- 一戸建てをエリアから探す
- さいたま市南区
- 大字大谷口
- さいたま市南区大谷口2707番 B号棟 全3
新築一戸建て
さいたま市南区大谷口2707番 B号棟 全3
情報更新日:2026/02/14 次回更新予定日:2026/02/28
価 格4,990万円(税込)
所在地埼玉県さいたま市南区大字大谷口[周辺地図]
交 通武蔵野線「東浦和」駅徒歩14分


<エステート白馬が選ばれる5つのポイント>
1.提携FPへの無料個別相談サービス
社外の中立的なファイナンシャルプランナーと無料相談できます。
ローン返済だけでなく、教育・老後の資金等も含めてシミュレーションをご提案できます。
2.物件情報が豊富
さいたま市を中心にたくさんの情報をご用意しております。
インターネット広告前の未公開物件も多数取り揃えております。
3.HAKUBAグループでリフォーム、注文建築
一級建築士をはじめとした専門スタッフがおりますのでご見学と合わせて、リフォームや注文建築についてご相談頂けます。
4.年中無休(年末年始除く)で営業しております
営業時間 9:30~19:00 この時間はお電話でのお問合わせがスムーズです
5.お子様連れでおこしください
キッズスペース、チャイルドシートをご用意しております。
1.提携FPへの無料個別相談サービス
社外の中立的なファイナンシャルプランナーと無料相談できます。
ローン返済だけでなく、教育・老後の資金等も含めてシミュレーションをご提案できます。
2.物件情報が豊富
さいたま市を中心にたくさんの情報をご用意しております。
インターネット広告前の未公開物件も多数取り揃えております。
3.HAKUBAグループでリフォーム、注文建築
一級建築士をはじめとした専門スタッフがおりますのでご見学と合わせて、リフォームや注文建築についてご相談頂けます。
4.年中無休(年末年始除く)で営業しております
営業時間 9:30~19:00 この時間はお電話でのお問合わせがスムーズです
5.お子様連れでおこしください
キッズスペース、チャイルドシートをご用意しております。
担当スタッフより

- 吉岡進之輔
- ご見学にあわせて、無料の外部FP相談をご利用頂けます。マイホーム購入だけでなく、老後の資金計画・お子様の教育資金等のライフシュミレーションを考慮した上で、無理のない返済計画をご提案させていただきます。
物件詳細情報
物件No.20000432772
| 所在地 | 埼玉県さいたま市南区大字大谷口 | ||
|---|---|---|---|
| 交通 | 武蔵野線「東浦和」駅徒歩14分 宇都宮線「浦和」駅バス19分 バス停「イーストシティ」停歩5分 京浜東北・根岸線「南浦和」駅徒歩38分 |
||
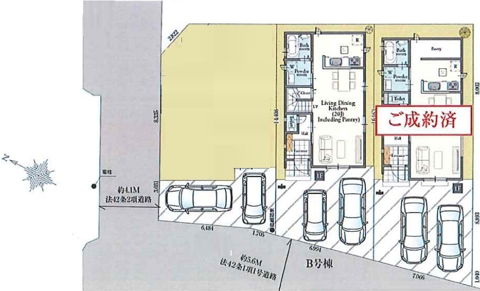
| 間取 | 4LDK (LDK20帖、洋室6.5帖、洋室6.5帖、洋室4.5帖、洋室4.5帖) | ||
| 土地面積 | 103.51m² 公簿 | ||
| 建物面積 | 96.05m² 実測 | ||
| 販売戸数 | 1戸 | 総戸数 | 全3戸 |
| 構造・規模 | 木造 2階建て | 築年・入居 | 2025年12月下旬 |
| バルコニー | 南西向き | 建物現況 | 建築中 |
| 建築確認番号 | 第HPA-25-07344-1号 | 駐車スペース | 2台(カースペース:並列) |
| 引渡時期 | 相談 | 国土法届出 | 不要 |
| 地目 | 宅地 | 用途地域 | 第二種中高層住居専用地域 |
| 建ぺい率 | 60% | 容積率 | 200% |
| 都市計画 | 市街化区域 | 権利種類 | 所有権 |
| 接道 | 南西側5.6M公道に6.99M接道 | 小学校区 | さいたま市立向小学校(320m) |
| 中学校区 | さいたま市立大谷口中学校(1260m) | 取引態様 | 媒介 |
| 設備 | 公営水道、本下水、都市ガス | ||
| 備考・制限等 | 子育てグリーン住宅支援事業 |
||
こだわり項目
地盤調査済LDK15帖以上耐震構造全室2面採光全居室収納建設住宅性能評価付(新築時)ガスコンロカウンターキッチン3口以上コンロパントリー(食器・食品の収納庫)トイレ2ヶ所浴室に窓全居室フローリングリビング階段シューズインクローゼット小学校800m以内保育園・幼稚園800m以内スーパー400m以内フラット35Sに対応
- ※価格は物件の代金総額を表示しており、消費税が課税される場合は税込み価格です。(1,000円未満は切り上げ。)
税率は引き渡し時期により異なりますので、各物件の詳細につきましてはお問い合わせください。 - ※敷地権利が借地権のものは価格に権利金を含みます。
- ※制作中に内容が変更される場合もありますので、あらかじめご了承ください。
- ※購入の前には物件内容や契約条件についてご自身で十分な確認をしていただくようにお願いいたします。
- ※完成予想図はいずれも外構、植栽、外観等実際のものとは多少異なることがあります。
- ※CG合成の画像の場合、実際とは多少異なる場合があります。
周辺地図
周辺施設一覧
- ショッピングセンター
- スーパー
- コンビニ
- ドラッグストア
- ホームセンター
- 飲食店
- その他店舗
- 商店街
- 大学
- 専門学校
- 高校・高専
- 中学校
- 小学校
- 保育園
- 幼稚園
- 公民館・児童館
- 病院
- 郵便局
- 役所
- 図書館
- 金融機関
- 警察・消防
- 趣味・娯楽施設
- 公園・運動施設
- 周辺の街並み
- 駅
- その他
お問い合せ先
- 株式会社エステート白馬 大宮サクラスクエアモール店
- お電話でのお問い合わせは
0120-911-898「ホームページを見た」とお問い合わせください - 埼玉県さいたま市大宮区桜木町2-902 大宮サクラスクエアモール
- 営業時間:9:30~18:30
- 定休日:年中無休
- 免許番号:国土交通大臣免許(6)第5817号
- HOME
- 一戸建てをエリアから探す
- さいたま市南区
- 大字大谷口
- さいたま市南区大谷口2707番 B号棟 全3









