- HOME
- 土地をエリアから探す
- 西東京市
- ひばりが丘北
- 2号地 西東京市ひばりが丘北4丁目全2区画 売地
土地

2号地 西東京市ひばりが丘北4丁目全2区画 売地
情報更新日:2026/02/07 次回更新予定日:2026/02/21
所在地東京都西東京市ひばりが丘北4丁目[周辺地図]
交 通西武池袋線「ひばりヶ丘」駅徒歩4分






・整形地です・お好きなハウスメーカーで建築できます
担当スタッフより

- 清水 有人
- 急行の停車するひばりヶ丘駅まで徒歩約4分と通勤通学便利です、幼稚園や保育園が600m以内にあります、お気軽にお問い合わせ下さい、
各棟情報
物件詳細情報
物件No.20000441760-001
| 所在地 | 東京都西東京市ひばりが丘北4丁目 | ||
|---|---|---|---|
| 交通 | 西武池袋線「ひばりヶ丘」駅徒歩4分 西武池袋線「東久留米」駅徒歩24分 西武池袋線「保谷」駅徒歩34分 |
||
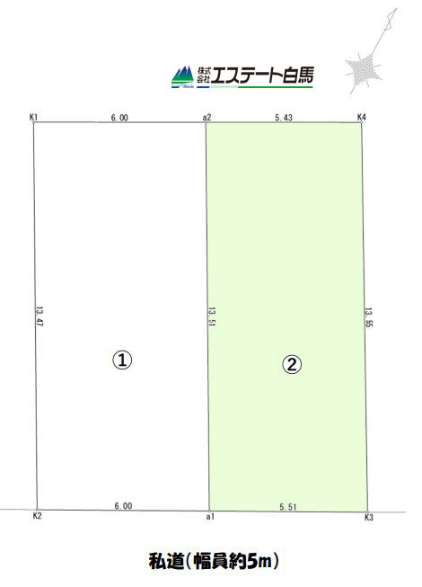
| 土地面積 | 73.96m² 実測 | ||
| 販売区画数 | 2区画 | 総区画数 | 全2区画 |
| 用途地域 | 第一種低層住居専用地域 | 建ぺい率 | 50% |
| 容積率 | 100% | 都市計画 | 市街化区域 |
| 国土法届出 | 不要 | 建築条件 | 建築条件なし |
| 地目 | 宅地 | 最適用途 | 住宅用地 |
| 現況 | 古家付 | 引渡時期 | 相談 |
| 権利種類 | 所有権 | 接道 | 南東側5M私道に接道 |
| 小学校区 | 栄小学校(1100m) | 中学校区 | 青嵐中学校(1400m) |
| 取引態様 | 媒介 | ||
| 設備 | 公営水道、本下水、都市ガス | ||
| その他制限事項 | 景観法、高度地区、準防火地域 | ||
| 備考・制限等 | 準防火地域、高度地区、景観法、 | ||
こだわり項目
整形地閑静な住宅地保育園・幼稚園800m以内自由設計対応
- ※価格は物件の代金総額を表示しており、消費税が課税される場合は税込み価格です。(1,000円未満は切り上げ。)
税率は引き渡し時期により異なりますので、各物件の詳細につきましてはお問い合わせください。 - ※敷地権利が借地権のものは価格に権利金を含みます。
- ※制作中に内容が変更される場合もありますので、あらかじめご了承ください。
- ※購入の前には物件内容や契約条件についてご自身で十分な確認をしていただくようにお願いいたします。
- ※完成予想図はいずれも外構、植栽、外観等実際のものとは多少異なることがあります。
- ※CG合成の画像の場合、実際とは多少異なる場合があります。
周辺地図
周辺施設一覧
- ショッピングセンター
- スーパー
- コンビニ
- ドラッグストア
- ホームセンター
- 飲食店
- その他店舗
- 商店街
- 大学
- 専門学校
- 高校・高専
- 中学校
- 小学校
- 保育園
- 幼稚園
- 公民館・児童館
- 病院
- 郵便局
- 役所
- 図書館
- 金融機関
- 警察・消防
- 趣味・娯楽施設
- 公園・運動施設
- 周辺の街並み
- 駅
- その他
お問い合せ先
- 株式会社エステート白馬 所沢店
- お電話でのお問い合わせは
0120-417-898「ホームページを見た」とお問い合わせください - 埼玉県所沢市東住吉12-21 白馬ビルディング
- 営業時間:9:00~18:30
- 定休日:年中無休
- 免許番号:国土交通大臣免許(6)第5817号








