- HOME
- 一戸建てをエリアから探す
- 所沢市
- 若狭
- 所沢市若狭三丁目 中古戸建
中古住宅

所沢市若狭三丁目 中古戸建
情報更新日:2026/01/17 次回更新予定日:2026/01/31
価 格2,180万円
所在地埼玉県所沢市若狭3丁目[周辺地図]
交 通西武池袋線「狭山ヶ丘」駅徒歩15分






こころとカラダに、うれしい暮らし。
◆◇ エステート白馬 所沢店 ◇◆
当日のご見学も随時承っております。
◆◇ エステート白馬 所沢店 ◇◆
当日のご見学も随時承っております。
すべての画像
【LDK/約16帖】
【建物外観】 クリーム色のやさしい色合いのお家です。
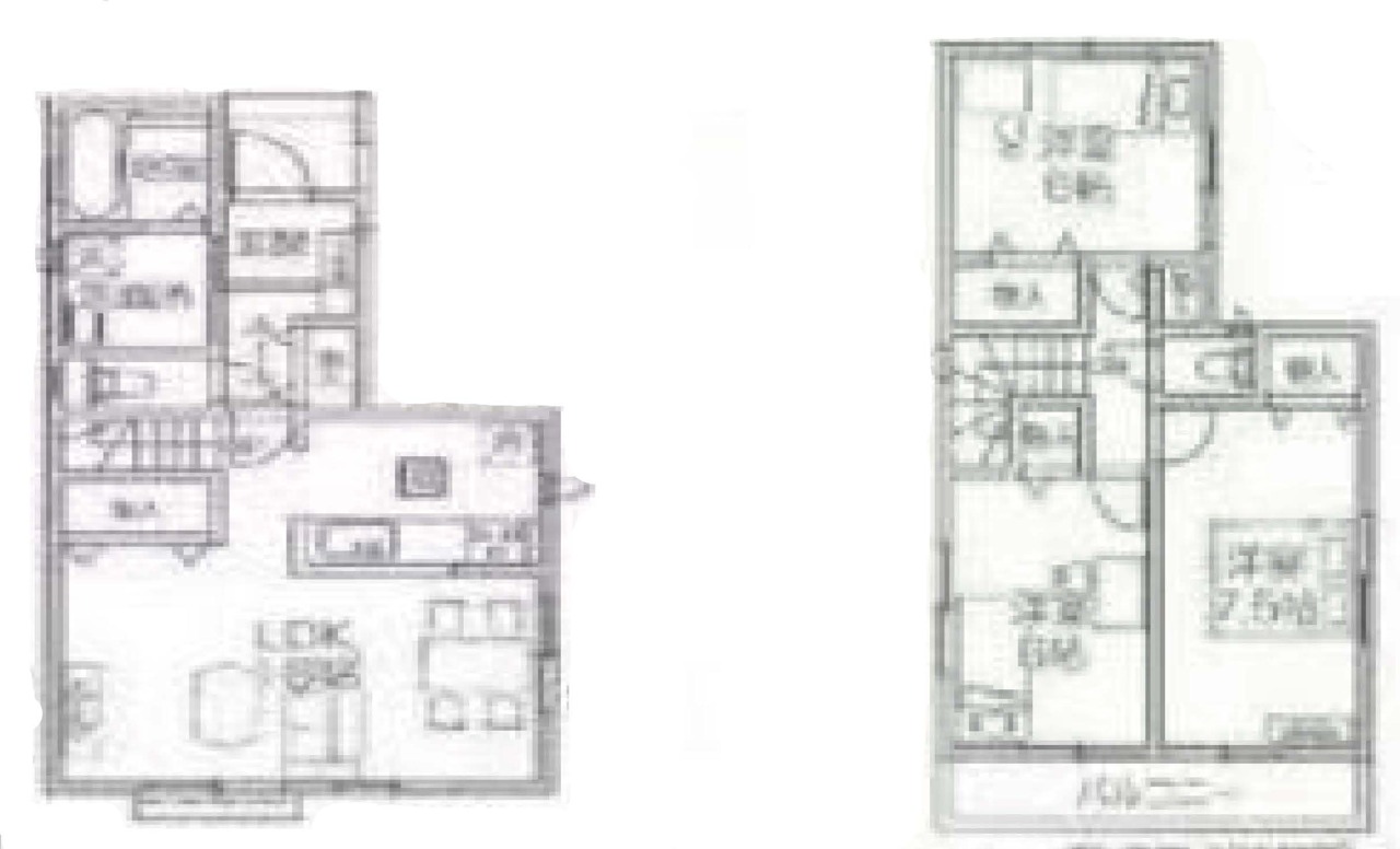
【間取図】 至る所に収納を配備した、お片付け上手な3LDK。
【区画図】 土地は約26.93坪の整形地です。
【LDK/約16帖】
【LDK/約16帖】
【LDK/約16帖】
【キッチン】 対面式のシステムキッチン。 調理しながらでも家族の様子を見守れる為、子育て世帯にもオススメです。
【キッチン】 設備は全てキレイな状態で、故障もしておりません。
【浴室】 ゆったりと足を伸ばせる1坪サイズのバスルーム。
【洗面台】 収納付きの洗面化粧台。鏡の裏側も収納棚になっています。
【洗面脱衣室】 脱衣所は約1坪の広さを確保しました。
【洗濯機置き場】 換気窓付きで、カビが発生しにくい造りになっています。
【1階トイレ】 トイレは1階と2階にそれぞれ設置されております。 手すりが備え付けられている為、足腰が不安な方でも安心です。
【2階トイレ】 トイレは1階と2階にそれぞれ設置されております。
【寝室/約7.5帖】
担当スタッフより

- 徳永大輔
- ご見学にあわせて、無料の外部FP相談をご利用頂けます。マイホーム購入だけでなく、老後の資金計画・お子様の教育資金等のライフシュミレーションを考慮した上で、無理のない返済計画をご提案させていただきます。
物件詳細情報
物件No.31018444480
| 所在地 | 埼玉県所沢市若狭3丁目 | ||
|---|---|---|---|
| 交通 | 西武池袋線「狭山ヶ丘」駅徒歩15分 西武池袋線「小手指」駅徒歩28分 西武池袋線「武蔵藤沢」駅徒歩33分 |
||
| 間取 | 3LDK (LDK16帖、洋室7.5帖、洋室6帖、洋室6帖) | ||
| 土地面積 | 89.04m² 公簿 | ||
| 建物面積 | 85.39m² 公簿 | ||
| 構造・規模 | 木造 2階建て | 築年月 | 2018年5月築 |
| 国土法届出 | 不要 | 地目 | 宅地 |
| 用途地域 | 第一種低層住居専用地域 | 建ぺい率 | 60% |
| 容積率 | 100% | 都市計画 | 市街化区域 |
| 駐車スペース | あり(カースペース) | 現況 | 空家 |
| 引渡時期 | 相談 | 権利種類 | 所有権 |
| 接道 | 北東側4M公道に接道 | 小学校区 | 所沢市立若狭小学校(920m) |
| 中学校区 | 所沢市立狭山ヶ丘中学校(2150m) | 取引態様 | 媒介 |
| 設備 | 公営水道、本下水、都市ガス | ||
| その他制限事項 | 航空法 | ||
| 備考・制限等 | 航空法 | ||
こだわり項目
平坦地LDK15帖以上全室2面採光床下収納全居室収納ワイドバルコニーシステムキッチンカウンターキッチントイレ2ヶ所浴室に窓全居室フローリングリビング階段TVモニタ付インターホンコンビニ400m以内公園800m以内通風良好
- ※価格は物件の代金総額を表示しており、消費税が課税される場合は税込み価格です。(1,000円未満は切り上げ。)
税率は引き渡し時期により異なりますので、各物件の詳細につきましてはお問い合わせください。 - ※敷地権利が借地権のものは価格に権利金を含みます。
- ※制作中に内容が変更される場合もありますので、あらかじめご了承ください。
- ※購入の前には物件内容や契約条件についてご自身で十分な確認をしていただくようにお願いいたします。
- ※完成予想図はいずれも外構、植栽、外観等実際のものとは多少異なることがあります。
- ※CG合成の画像の場合、実際とは多少異なる場合があります。
周辺地図
周辺施設一覧
- ショッピングセンター
- スーパー
- コンビニ
- ドラッグストア
- ホームセンター
- 飲食店
- その他店舗
- 商店街
- 大学
- 専門学校
- 高校・高専
- 中学校
- 小学校
- 保育園
- 幼稚園
- 公民館・児童館
- 病院
- 郵便局
- 役所
- 図書館
- 金融機関
- 警察・消防
- 趣味・娯楽施設
- 公園・運動施設
- 周辺の街並み
- 駅
- その他
お問い合せ先
- 株式会社エステート白馬 所沢店
- お電話でのお問い合わせは
0120-417-898「ホームページを見た」とお問い合わせください - 埼玉県所沢市東住吉12-21 白馬ビルディング
- 営業時間:9:00~18:30
- 定休日:年中無休
- 免許番号:国土交通大臣免許(6)第5817号
- HOME
- 一戸建てをエリアから探す
- 所沢市
- 若狭
- 所沢市若狭三丁目 中古戸建


























