- HOME
- 一戸建てをエリアから探す
- 杉並区
- 成田東
- 杉並区成田東2丁目 新築戸建 全2棟
新築一戸建て
杉並区成田東2丁目 新築戸建 全2棟
情報更新日:2026/01/09 次回更新予定日:2026/01/23 取引条件有効期限:2026/01/23
所在地東京都杉並区成田東2丁目[周辺地図]
交 通京王井の頭線「西永福」駅徒歩17分





リビング20帖、勾配天井と吹抜けのある開放的な空間設計。床暖房や食器洗浄乾燥機、浴室暖房乾燥機など設備も充実してます。
各棟情報
物件詳細情報
物件No.31019955131
| 所在地 | 東京都杉並区成田東2丁目 | ||
|---|---|---|---|
| 交通 | 京王井の頭線「西永福」駅徒歩17分 東京メトロ丸ノ内線「南阿佐ケ谷」駅徒歩17分 中央線「阿佐ケ谷」駅徒歩26分 |
||
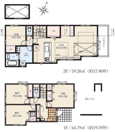
| 間取 | 2SLDK~2SLDK (LDK20.0帖、洋室6.0帖、洋室4.5帖、S5.3帖、S5.3帖) | ||
| 土地面積 | 94.18m² ~ 95.03m² 公簿 | ||
| 建物面積 | 119.65m² ~ 123.99m² 実測 | ||
| 販売戸数 | 2戸 | 総戸数 | 全2戸 |
| 構造・規模 | 木造 2階建て | 築年・入居 | 2025年9月上旬 |
| バルコニー | 北東向き | 建物現況 | 完成済 |
| 建築確認番号 | 第24UDI1W建11352号、他 | 駐車スペース | あり(カーポート) |
| 引渡時期 | 即引渡可 | 国土法届出 | 不要 |
| 地目 | 宅地 | 用途地域 | 第二種低層住居専用地域 |
| 建ぺい率 | 70% | 容積率 | 150% |
| 権利種類 | 所有権 | 接道 | 北東側5.3M公道に接道 |
| 小学校区 | 杉並区立東田小学校(390m) | 中学校区 | 杉並区立東田中学校(860m) |
| 取引態様 | 媒介 | ||
| 設備 | 公営水道、本下水、都市ガス | ||
こだわり項目
LDK15帖以上床下収納吹抜け床暖房食器洗浄機浄水器システムキッチンカウンターキッチン3口以上コンロトイレ2ヶ所温水洗浄便座シャワー付洗面台浴室乾燥機浴室暖房浴室1坪以上浴室に窓オートバス全居室フローリングウォークインクローゼットバリアフリー仕様TVモニタ付インターホンビルトガレージ24時間換気システム小学校800m以内保育園・幼稚園800m以内公園800m以内
- ※価格は物件の代金総額を表示しており、消費税が課税される場合は税込み価格です。(1,000円未満は切り上げ。)
税率は引き渡し時期により異なりますので、各物件の詳細につきましてはお問い合わせください。 - ※敷地権利が借地権のものは価格に権利金を含みます。
- ※制作中に内容が変更される場合もありますので、あらかじめご了承ください。
- ※購入の前には物件内容や契約条件についてご自身で十分な確認をしていただくようにお願いいたします。
- ※完成予想図はいずれも外構、植栽、外観等実際のものとは多少異なることがあります。
- ※CG合成の画像の場合、実際とは多少異なる場合があります。
周辺地図
周辺施設一覧
- ショッピングセンター
- スーパー
- コンビニ
- ドラッグストア
- ホームセンター
- 飲食店
- その他店舗
- 商店街
- 大学
- 専門学校
- 高校・高専
- 中学校
- 小学校
- 保育園
- 幼稚園
- 公民館・児童館
- 病院
- 郵便局
- 役所
- 図書館
- 金融機関
- 警察・消防
- 趣味・娯楽施設
- 公園・運動施設
- 周辺の街並み
- 駅
- その他
お問い合せ先
- 株式会社エステート白馬 中野店
- お電話でのお問い合わせは
0120-512-325「ホームページを見た」とお問い合わせください - 東京都中野区新井2-1-19 パックマートビル4F
- 営業時間:9:30~19:00
- 定休日:年中無休
- 免許番号:国土交通大臣免許(6)第5817号
- HOME
- 一戸建てをエリアから探す
- 杉並区
- 成田東
- 杉並区成田東2丁目 新築戸建 全2棟












