- HOME
- 一戸建てをエリアから探す
- さいたま市浦和区
- 瀬ヶ崎
- さいたま市浦和区瀬ヶ崎
新築一戸建て
さいたま市浦和区瀬ヶ崎
情報更新日:2025/12/05 次回更新予定日:2025/12/16
価 格3,280万円(税込)
所在地埼玉県さいたま市浦和区瀬ヶ崎4丁目[周辺地図]
交 通京浜東北・根岸線「北浦和」駅バス12分 停歩7分





◆エステート白馬の5大サポート◆
1.FP相談サポート
社外のファイナンシャルプランナーと資金相談が出来ます。無料で何度でも。
2.設備保証の延長サービス
新築住宅は2年、中古住宅は半年の設備修理サービスを無料で付帯しています
3.注文住宅「白馬の家」
高気密・高断熱のフルオーダー住宅「白馬の家」のご提案もできます。ご興味のある土地にプランを作るのもお任せください
4.見学時、建築士同行サービス
見学に建築士が同行し、目視検査やリフォーム費用をお伝えするなどの無料サービスを行っています
5.ご売却不動産の買取保証
一定期間で不動産売却ができなかった場合、予め定めた金額で弊社が買取いたします
担当スタッフより

- 鳥谷部吾郎
- エステート白馬大宮SQM店は、JR「大宮駅」西口から徒歩5分、大宮サクラスクエアモールの1階に店舗がございます。お客様駐車場が無料にてご利用になれますので、お車でもお気軽にご来店ください。真心を持って丁寧にご対応いたします。
毎週火曜日もお問合せに対応可能です。現地でのお待ち合わせなど、非接触でのご見学もOKです。お気軽にご相談下さい。
物件詳細情報
物件No.31020701886
| 所在地 | 埼玉県さいたま市浦和区瀬ヶ崎4丁目 | ||
|---|---|---|---|
| 交通 | 京浜東北・根岸線「北浦和」駅バス12分 バス停「東瀬ヶ崎」停歩7分 高崎線「浦和」駅バス24分 バス停「東瀬ヶ崎」停歩7分 京浜東北・根岸線「北浦和」駅徒歩27分 |
||
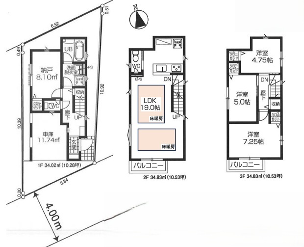
| 間取 | 3SLDK (LDK19.0帖、洋室7.25帖、洋室5.0帖、洋室4.75帖、S8.10帖) | ||
| 土地面積 | 62.18m² 実測 (私道12m²別に有) | ||
| 建物面積 | 103.68m² (車庫部分11.74平米含) | ||
| 販売戸数 | 1戸 | 総戸数 | 全1戸 |
| 構造・規模 | 木造 3階建て | 築年・入居 | 2025年7月 |
| バルコニー | 南向き | 建物現況 | 完成済 |
| 建築確認番号 | 第SJK-KX24601621号 | 駐車スペース | あり(車庫) |
| 引渡時期 | 即引渡可 | 国土法届出 | 不要 |
| 地目 | 宅地 | 用途地域 | 第二種中高層住居専用地域 |
| 建ぺい率 | 60% | 容積率 | 200% |
| 都市計画 | 市街化区域 | 権利種類 | 所有権 |
| 接道 | 南側4M私道に5.84M接道 | 小学校区 | さいたま市立道祖土小学校(280m) |
| 中学校区 | さいたま市立木崎中学校(810m) | 取引態様 | 媒介 |
| 設備 | 公営水道、本下水、都市ガス | ||
| その他制限事項 | 準防火地域 | ||
こだわり項目
閑静な住宅地地盤調査済南側道路LDK15帖以上複層ガラス床暖房システムキッチンカウンターキッチン3口以上コンロトイレ2ヶ所温水洗浄便座浴室乾燥機浴室暖房追焚機能浴室に窓全居室フローリングリビング階段ビルトガレージ小学校800m以内保育園・幼稚園800m以内
- ※価格は物件の代金総額を表示しており、消費税が課税される場合は税込み価格です。(1,000円未満は切り上げ。)
税率は引き渡し時期により異なりますので、各物件の詳細につきましてはお問い合わせください。 - ※敷地権利が借地権のものは価格に権利金を含みます。
- ※制作中に内容が変更される場合もありますので、あらかじめご了承ください。
- ※購入の前には物件内容や契約条件についてご自身で十分な確認をしていただくようにお願いいたします。
- ※完成予想図はいずれも外構、植栽、外観等実際のものとは多少異なることがあります。
- ※CG合成の画像の場合、実際とは多少異なる場合があります。
周辺地図
周辺施設一覧
- ショッピングセンター
- スーパー
- コンビニ
- ドラッグストア
- ホームセンター
- 飲食店
- その他店舗
- 商店街
- 大学
- 専門学校
- 高校・高専
- 中学校
- 小学校
- 保育園
- 幼稚園
- 公民館・児童館
- 病院
- 郵便局
- 役所
- 図書館
- 金融機関
- 警察・消防
- 趣味・娯楽施設
- 公園・運動施設
- 周辺の街並み
- 駅
- その他
お問い合せ先
- 株式会社エステート白馬 大宮サクラスクエアモール店
- お電話でのお問い合わせは
0120-911-898「ホームページを見た」とお問い合わせください - 埼玉県さいたま市大宮区桜木町2-902 大宮サクラスクエアモール
- 営業時間:9:30~18:30
- 定休日:年中無休
- 免許番号:国土交通大臣免許(6)第5817号











