- HOME
- 中古マンションをエリアから探す
- 足立区
- 大谷田
- ボナハイツ中川1号棟
中古マンション
ボナハイツ中川1号棟
情報更新日:2026/01/15 次回更新予定日:2026/01/29
価 格2,399万円
所在地東京都足立区大谷田2丁目[周辺地図]
交 通常磐線「亀有」駅バス10分 停歩5分





・南向きで日当たりが良く、穏やかな時間が流れるお部屋です
・小・中学校が徒歩5分以内にあり、教育環境も整っています
・小・中学校が徒歩5分以内にあり、教育環境も整っています
担当スタッフより

- 坂田 麻美
- ・南向きで日当たりが良く、穏やかな時間が流れるお部屋です
・小・中学校が徒歩5分以内にあり、教育環境も整っています
・新規リノベーション済みで、明るく清潔感のある室内が魅力です
・家族の会話が自然と生まれるリビング中心の間取りです
ご見学にあわせて無料の外部FP相談をご利用頂けます。マイホーム購入だけでなく、老後の資金計画・お子様の教育資金等のライフシュミレーションを考慮した上で、無理のない返済計画をご提案いたします。
物件詳細情報
物件No.31021616276
| 所在地 | 東京都足立区大谷田2丁目 | ||
|---|---|---|---|
| 交通 | 常磐線「亀有」駅バス10分 バス停「中川小学校前」停歩5分 常磐線「亀有」駅徒歩26分 東京メトロ千代田線「北綾瀬」駅徒歩23分 |
||
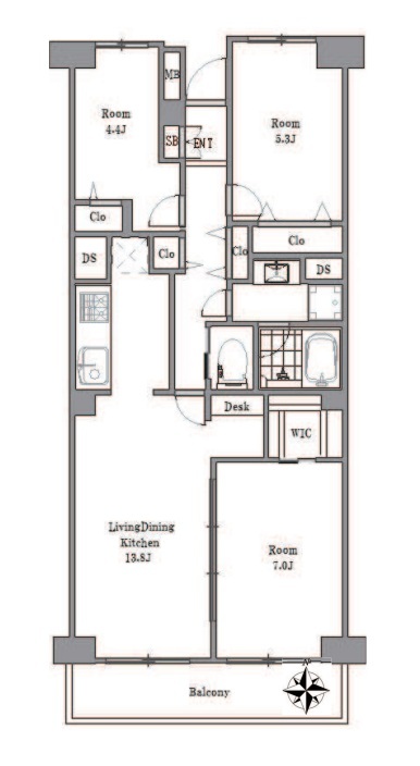
| 間取 | 3LDK (LDK13.8帖、洋室7帖、洋室5.3帖、洋室4.4帖) | ||
| 専有面積 | 68.04m² (壁芯) | ||
| バルコニー面積 | 7.31m² 南向き | ||
| 総戸数 | 全499戸 | 構造・規模 | 鉄骨鉄筋コンクリート造 14階建て 4階部分 |
| 築年・入居 | 1977年9月築 | 施工会社 | (株)竹中工務店 |
| 現況 | 空室 | 引渡時期 | 即引渡可 |
| 権利種類 | 所有権 | 管理費 | 8,130円/月 |
| 修繕積立金 | 10,650円/月 | 管理形態 | 日勤 全部委託 |
| 管理会社 | 大和ライフネクスト(株) | 駐輪場料金 | 1,000円/年 |
| バイク置場料金 | 3,500円/月 | ペット | 可 |
| 水道代 | 2,920円/月 | 小学校区 | 足立区立中川東小学校(429m) |
| 中学校区 | 足立区立第十二中学校(320m) | 取引態様 | 媒介 |
| リフォーム |
|
||
| 備考・制限等 | ペット可(規約による制限あり) | ||
こだわり項目
南向き全居室収納ガスコンロシステムキッチン独立型キッチン3口以上コンロ追焚機能室内洗濯機置き場ウォークインクローゼット駐輪場バイク置場小学校800m以内
- ※価格は物件の代金総額を表示しており、消費税が課税される場合は税込み価格です。(1,000円未満は切り上げ。)
税率は引き渡し時期により異なりますので、各物件の詳細につきましてはお問い合わせください。 - ※敷地権利が借地権のものは価格に権利金を含みます。
- ※制作中に内容が変更される場合もありますので、あらかじめご了承ください。
- ※購入の前には物件内容や契約条件についてご自身で十分な確認をしていただくようにお願いいたします。
- ※完成予想図はいずれも外構、植栽、外観等実際のものとは多少異なることがあります。
- ※CG合成の画像の場合、実際とは多少異なる場合があります。
周辺地図
周辺施設一覧
- ショッピングセンター
- スーパー
- コンビニ
- ドラッグストア
- ホームセンター
- 飲食店
- その他店舗
- 商店街
- 大学
- 専門学校
- 高校・高専
- 中学校
- 小学校
- 保育園
- 幼稚園
- 公民館・児童館
- 病院
- 郵便局
- 役所
- 図書館
- 金融機関
- 警察・消防
- 趣味・娯楽施設
- 公園・運動施設
- 周辺の街並み
- 駅
- その他
お問い合せ先
- 株式会社エステート白馬 越谷店
- お電話でのお問い合わせは
0120-315-586「ホームページを見た」とお問い合わせください - 埼玉県越谷市大字袋山1361-16 1F
- 営業時間:9:00~18:00
- 定休日:年中無休
- 免許番号:国土交通大臣免許(6)第5817号
- HOME
- 中古マンションをエリアから探す
- 足立区
- 大谷田
- ボナハイツ中川1号棟




























