- HOME
- 一戸建てをエリアから探す
- さいたま市中央区
- 大戸
- さいたま市中央区大戸6丁目の中古住宅
中古住宅

さいたま市中央区大戸6丁目の中古住宅
情報更新日:2025/11/14 次回更新予定日:2025/11/28
価 格3,280万円(税込)
所在地埼玉県さいたま市中央区大戸6丁目[周辺地図]
交 通埼京線「南与野」駅徒歩5分





(自己紹介)地元大宮の担当です。小さなお子様がいらっしゃる方もゆっくりご覧いただけるようにご見学時の子守のお手伝い、お任せくださいね♪
-----ESTATE HAKUBA-----
◆大宮駅、南浦和駅、東大宮駅、上尾駅など打合せのお店を指定可能!
◆当日のご見学もお任せください!
◆駅やご自宅への送迎も承ります!
◆FP相談が無料で何度でもご利用可能です!
◆年中無休、いつでもお客様の第一歩に即対応します!
◆火災保険は団体割引、お引越しは提携割引あり!
-----ESTATE HAKUBA-----
◆大宮駅、南浦和駅、東大宮駅、上尾駅など打合せのお店を指定可能!
◆当日のご見学もお任せください!
◆駅やご自宅への送迎も承ります!
◆FP相談が無料で何度でもご利用可能です!
◆年中無休、いつでもお客様の第一歩に即対応します!
◆火災保険は団体割引、お引越しは提携割引あり!
担当スタッフより

- 武田郷子
- さいたま市立大戸児童センター徒歩2分、さいたま市立与野南図書館徒歩1分などの公共施設が徒歩圏です。
(自己紹介)地元大宮の担当です。小さなお子様がいらっしゃる方もゆっくりご覧いただけるようにご見学時の子守のお手伝い、お任せくださいね(エステート白馬・武田郷子)
物件詳細情報
物件No.31021851903
| 所在地 | 埼玉県さいたま市中央区大戸6丁目 | ||
|---|---|---|---|
| 交通 | 埼京線「南与野」駅徒歩5分 京浜東北・根岸線「北浦和」駅徒歩22分 湘南新宿ライン宇須「浦和」駅バス12分 バス停「西戸橋」停歩10分 |
||
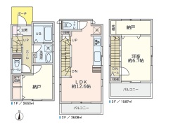
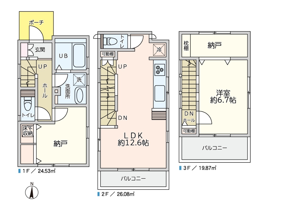
| 間取 | 1SLDK | ||
| 土地面積 | 44.12m² | ||
| 建物面積 | 70.48m² 公簿 | ||
| 構造・規模 | 木造 3階建て | 築年月 | 2007年5月築 |
| 国土法届出 | 不要 | 地目 | 宅地 |
| 用途地域 | 無指定地域 | 建ぺい率 | 60% |
| 容積率 | 160% | 都市計画 | 市街化調整区域 |
| 建築許可事由 | 都市計画法施行令36条1項3号ロに該当 | 現況 | 空家 |
| 引渡時期 | 相談 | 権利種類 | 所有権 |
| 接道 | 北側4M私道に接道 | 小学校区 | さいたま市立南与野小学校(280m) |
| 中学校区 | さいたま市立南与野中学校(130m) | 取引態様 | 媒介 |
| リフォーム |
|
||
| 設備 | 公営水道、本下水、都市ガス | ||
こだわり項目
整形地リフォーム済み2面以上バルコニー瑕疵保証付(不動産会社独自)IHクッキングヒーターシステムキッチントイレ2ヶ所温水洗浄便座浴室1坪以上浴室に窓全居室フローリング小学校800m以内
- ※価格は物件の代金総額を表示しており、消費税が課税される場合は税込み価格です。(1,000円未満は切り上げ。)
税率は引き渡し時期により異なりますので、各物件の詳細につきましてはお問い合わせください。 - ※敷地権利が借地権のものは価格に権利金を含みます。
- ※制作中に内容が変更される場合もありますので、あらかじめご了承ください。
- ※購入の前には物件内容や契約条件についてご自身で十分な確認をしていただくようにお願いいたします。
- ※完成予想図はいずれも外構、植栽、外観等実際のものとは多少異なることがあります。
- ※CG合成の画像の場合、実際とは多少異なる場合があります。
周辺地図
周辺施設一覧
- ショッピングセンター
- スーパー
- コンビニ
- ドラッグストア
- ホームセンター
- 飲食店
- その他店舗
- 商店街
- 大学
- 専門学校
- 高校・高専
- 中学校
- 小学校
- 保育園
- 幼稚園
- 公民館・児童館
- 病院
- 郵便局
- 役所
- 図書館
- 金融機関
- 警察・消防
- 趣味・娯楽施設
- 公園・運動施設
- 周辺の街並み
- 駅
- その他
お問い合せ先
- 株式会社エステート白馬 上尾駅前店
- お電話でのお問い合わせは
0120-307-898「ホームページを見た」とお問い合わせください - 埼玉県上尾市谷津2-1-1 ショーサンプラザ(イトーヨーカ堂)5F
- 営業時間:9:00~20:00
- 定休日:年中無休
- 免許番号:国土交通大臣免許(6)第5817号
- HOME
- 一戸建てをエリアから探す
- さいたま市中央区
- 大戸
- さいたま市中央区大戸6丁目の中古住宅






























