- HOME
- 中古マンションをエリアから探す
- 足立区
- 綾瀬
- グリーンパーク第18綾瀬
中古マンション
グリーンパーク第18綾瀬
情報更新日:2025/12/09 次回更新予定日:2025/12/16
価 格2,799万円(税込)
所在地東京都足立区綾瀬7丁目[周辺地図]
交 通東京メトロ千代田線「北綾瀬」駅徒歩10分





・ペット飼育可能 大切な家族と一緒に暮らせる住まい
・フルリノベ済 ペット可 南向き角部屋の2LDK
・北綾瀬駅徒歩10分 陽当たり良好な両面バルコニー付き住戸
・水回り一新 角部屋の開放感と利便性を両立したリノベマンション
・フルリノベ済 ペット可 南向き角部屋の2LDK
・北綾瀬駅徒歩10分 陽当たり良好な両面バルコニー付き住戸
・水回り一新 角部屋の開放感と利便性を両立したリノベマンション
担当スタッフより

- 佐藤 順子
- ・ペット飼育可能 大切な家族と一緒に暮らせる住まい
・フルリノベ済 ペット可 南向き角部屋の2LDK
・北綾瀬駅徒歩10分 陽当たり良好な両面バルコニー付き住戸
・水回り一新 角部屋の開放感と利便性を両立したリノベマンション
物件詳細情報
物件No.31021936806
| 所在地 | 東京都足立区綾瀬7丁目 | ||
|---|---|---|---|
| 交通 | 東京メトロ千代田線「北綾瀬」駅徒歩10分 つくばエクスプレス「青井」駅徒歩12分 東京メトロ千代田線「綾瀬」駅徒歩18分 |
||
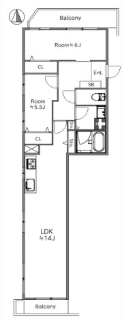
| 間取 | 2LDK (LDK14帖、洋室6帖、洋室5.5帖) | ||
| 専有面積 | 59.13m² (壁芯) | ||
| バルコニー面積 | 14.31m² 南向き | ||
| 販売戸数 | 1戸 | 総戸数 | 全29戸 |
| 構造・規模 | 鉄筋コンクリート造 6階建て 4階部分 |
築年・入居 | 1985年11月築 |
| 現況 | 空室 | 引渡時期 | 相談 |
| 権利種類 | 所有権 | 管理費 | 10,050円/月 |
| 修繕積立金 | 13,830円/月 | 管理形態 | 巡回 全部委託 |
| 管理会社 | クラシテ株式会社 | 駐車場 | 敷地内にあり 料金:15,000円/月 |
| 駐輪場料金 | 100円/月 | バイク置場料金 | 200円/月 |
| ペット | 可 | 小学校区 | 足立区立東加平小学校(511m) |
| 中学校区 | 足立区立東綾瀬中学校(1150m) | 取引態様 | 媒介 |
| リフォーム |
|
||
| 設備 | 都市ガス | ||
こだわり項目
南向き角部屋全居室収納2面以上バルコニーリノベーション食器洗浄機ガスコンロシステムキッチン3口以上コンロ室内洗濯機置き場エレベーター駐輪場バイク置場小学校800m以内
- ※価格は物件の代金総額を表示しており、消費税が課税される場合は税込み価格です。(1,000円未満は切り上げ。)
税率は引き渡し時期により異なりますので、各物件の詳細につきましてはお問い合わせください。 - ※敷地権利が借地権のものは価格に権利金を含みます。
- ※制作中に内容が変更される場合もありますので、あらかじめご了承ください。
- ※購入の前には物件内容や契約条件についてご自身で十分な確認をしていただくようにお願いいたします。
- ※完成予想図はいずれも外構、植栽、外観等実際のものとは多少異なることがあります。
- ※CG合成の画像の場合、実際とは多少異なる場合があります。
周辺地図
周辺施設一覧
- ショッピングセンター
- スーパー
- コンビニ
- ドラッグストア
- ホームセンター
- 飲食店
- その他店舗
- 商店街
- 大学
- 専門学校
- 高校・高専
- 中学校
- 小学校
- 保育園
- 幼稚園
- 公民館・児童館
- 病院
- 郵便局
- 役所
- 図書館
- 金融機関
- 警察・消防
- 趣味・娯楽施設
- 公園・運動施設
- 周辺の街並み
- 駅
- その他
お問い合せ先
- 株式会社エステート白馬 越谷店
- お電話でのお問い合わせは
0120-315-586「ホームページを見た」とお問い合わせください - 埼玉県越谷市大字袋山1361-16 1F
- 営業時間:9:00~18:00
- 定休日:年中無休
- 免許番号:国土交通大臣免許(6)第5817号
- HOME
- 中古マンションをエリアから探す
- 足立区
- 綾瀬
- グリーンパーク第18綾瀬































