- HOME
- 一戸建てをエリアから探す
- 三郷市
- 戸ケ崎
- 三郷市戸ケ崎5丁目 中古戸建
三郷市戸ケ崎5丁目 中古戸建
情報更新日:2025/12/11 次回更新予定日:2025/12/25
価 格3,690万円(税込)
所在地埼玉県三郷市戸ケ崎5丁目[周辺地図]
交 通つくばエクスプレス「八潮」駅バス11分 停歩2分





・開放感のある角地
・全居室南東向き
・3部屋続きのバルコニー
・4LDKのゆとりのある間取り
・周辺施設が充実
・小学校・中学校も徒歩圏内
・室内・外壁新規リフォーム物件
・まるで新築戸建のような室内
・売地面積45坪以上
・駐車スペース2台分
「エステート白馬が選ばれる5つのポイント」
1.提携FPへの無料個別相談サービス
社外の中立的なファイナンシャルプランナーと無料相談できます。
ローン返済計画・教育・老後の資金等も含めてシミュレーションをご提案。
2.物件情報が豊富
越谷市を中心にたくさんの情報をご用意。
インターネット広告前の物件も多数取り揃えております。
3.リフォーム、注文建築
越谷店はショールームとなっており、リフォーム、注文建築部門の相談スペースです。
一級建築士をはじめとした専門スタッフがおりますのでご見学と合わせて、リフォームや注文建築についてご相談可。
4.年中無休(年末年始除く)で営業
営業時間 9:30~19:00 この時間はお電話でのお問合わせがスムーズです
5.お子様連れでおこしください
キッズスペース、授乳室、オムツ替えベッドをご用意しております。
- すべて(37)
- 外観・パース(10)
- 内観(26)
- 間取・区画(1)
- その他(0)
- 動画
すべての画像
快適な新生活を迎えられそうな、新品のキッチンです。
家族が自然に集りそうな広さが魅力のLDK。
室内リフォーム済みで、大変綺麗でございます。 外壁は、リフォーム工事中で完成予定は11月末頃です。
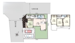
間取り
収納スライドをぐっと開けばお鍋や調味料をどんどんしまえる大収納。キッチンはいつもキレイ。
キッチン裏の空間もしっかり確保。カップボードも大きなものを置けそうです。
家族団らんの時間も増えそうな、くつろぎのLDK。
ご家族みんながゆったりくつろげる広々リビング。
リビング空間にこだわりたい方に、見ていただきたい住宅です。
お子様にとっていいお昼寝空間になる和室は、ぜひリビングのお隣で。
畳のにおいが香る和室は、きっとくつろぎの空間になるでしょう。
新生活を迎えるにあたって、この新しい設備品たちはうれしい限りですね。
脱衣場
ユニットバスも新規交換。キレイなお風呂で疲れをリフレッシュ。
1階トイレ
今からここを誰のお部屋にしようか、そんな洋室。大きさは6帖です。
完成済み、実物をじっくりチェックできます。
ご家族の思い出も大切にしまっておけるたっぷり収納。
今からここを誰のお部屋にしようか、そんな洋室。大きさは6帖です。
完成物件ですから、実際の生活イメージがつかめます。まずはごゆっくり見てみてください。
今からここを誰のお部屋にしようか、そんな洋室。大きさは8.1帖です。
この部屋だれの部屋にしようかな、なんて会話を現地で楽しんでください。
2階トイレ
2階廊下
担当スタッフより

- 坂口 卓生
- 室内新規リフォーム済みで、大変綺麗でございます。
新しく生まれ変わった室内を是非現地でご見学くださいませ。
外壁・バルコニーも現在リフォーム工事中で、完成予定は11月末頃でございます。
角地で、開放感のあふれる立地でございます。
前面道路は、6mもあり駐車が苦手な方でもスムーズにとめることができます。
また、交通量も少なく小さなお子様も安心してお過ごしいただけます。
周辺施設も充実しており、お買い物等にも便利です。
小学校・中学校も徒歩圏内で、安心して通学できます。
いつでも現地をご案内いたします。お気軽にお問い合わせくださいませ。
ご見学にあわせて無料の外部FP相談をご利用頂けます。マイホーム購入だけでなく、老後の資金計画・お子様の教育資金等のライフシュミレーションを考慮した上で、無理のない返済計画をご提案いたします。
物件詳細情報
物件No.31022052182
| 所在地 | 埼玉県三郷市戸ケ崎5丁目 | ||
|---|---|---|---|
| 交通 | つくばエクスプレス「八潮」駅バス11分 バス停「天神前」停歩2分 常磐線「金町」駅バス14分 バス停「天神前」停歩2分 つくばエクスプレス「八潮」駅徒歩26分 |
||
| 間取 | 4LDK (LDK17帖、和室6帖、洋室8.1帖、洋室6帖、洋室6帖) | ||
| 土地面積 | 149.02m² 公簿 | ||
| 建物面積 | 101.85m² 公簿 | ||
| 構造・規模 | 木造 2階建て | 築年月 | 2006年11月築 |
| バルコニー | 南東向き | 国土法届出 | 不要 |
| 地目 | 宅地 | 用途地域 | 第一種住居地域 |
| 建ぺい率 | 60% | 容積率 | 200% |
| 都市計画 | 市街化区域 | 駐車スペース | 2台可(カースペース:並列) |
| 現況 | 空家 | 引渡時期 | 相談 |
| 権利種類 | 所有権 | 接道 | 南西側6M公道に10.16M接道 北西側5.2M公道に10.37M接道 |
| 小学校区 | 三郷市立吹上小学校(849m) | 中学校区 | 三郷市立前川中学校(1986m) |
| 取引態様 | 媒介 | ||
| リフォーム |
|
||
| 設備 | 公営水道、本下水、個別LPG | ||
| その他制限事項 | 景観法、隅切り有 | ||
こだわり項目
- ※価格は物件の代金総額を表示しており、消費税が課税される場合は税込み価格です。(1,000円未満は切り上げ。)
税率は引き渡し時期により異なりますので、各物件の詳細につきましてはお問い合わせください。 - ※敷地権利が借地権のものは価格に権利金を含みます。
- ※制作中に内容が変更される場合もありますので、あらかじめご了承ください。
- ※購入の前には物件内容や契約条件についてご自身で十分な確認をしていただくようにお願いいたします。
- ※完成予想図はいずれも外構、植栽、外観等実際のものとは多少異なることがあります。
- ※CG合成の画像の場合、実際とは多少異なる場合があります。
周辺地図
周辺施設一覧
- ショッピングセンター
- スーパー
- コンビニ
- ドラッグストア
- ホームセンター
- 飲食店
- その他店舗
- 商店街
- 大学
- 専門学校
- 高校・高専
- 中学校
- 小学校
- 保育園
- 幼稚園
- 公民館・児童館
- 病院
- 郵便局
- 役所
- 図書館
- 金融機関
- 警察・消防
- 趣味・娯楽施設
- 公園・運動施設
- 周辺の街並み
- 駅
- その他
お問い合せ先
- 株式会社エステート白馬 越谷店
- お電話でのお問い合わせは
0120-315-586「ホームページを見た」とお問い合わせください - 埼玉県越谷市大字袋山1361-16 1F
- 営業時間:9:00~18:00
- 定休日:年中無休
- 免許番号:国土交通大臣免許(6)第5817号
- HOME
- 一戸建てをエリアから探す
- 三郷市
- 戸ケ崎
- 三郷市戸ケ崎5丁目 中古戸建























