- HOME
- 一戸建てをエリアから探す
- 東久留米市
- 浅間町
- 東久留米市浅間町2丁目全1棟 新築戸建
東久留米市浅間町2丁目全1棟 新築戸建
情報更新日:2026/01/15 次回更新予定日:2026/01/25
価 格3,799万円(税込)
所在地東京都東久留米市浅間町2丁目[周辺地図]
交 通西武池袋線「ひばりヶ丘」駅徒歩15分





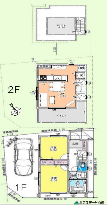
・寛ぎの時間のプライバシーを守る2階リビングの間取り
・ダークな色調のシックなキッチン
・広々としたバルコニー
すべての画像
夕食の時間。家族、友人、両親、親戚との会話がより料理を美味しくしてくれる。あっという間に時間が過ぎてしまう居心地の良さは、普段はほっとする空間としてここにあります。
完成物件だから、引っ越したあとの配置や動線も分かりやすい。
一人や二人で暮らすのに丁度よいサイズ
角地で開放感あります
家族団欒のリビング。陽光差し込む食卓には家族の会話とスマイルが溢れます。いつまでもここで食卓を囲みたくなる、そう感じさせてくれるスペース。
家族が一番集まる場所だから広々としつつも素敵な空間であって欲しい。皆がくつろぐリビングからキッチンまでが一つに繋がる空間。
少しコンパクトなリビングですが、家族を身近に感じます。
シックでおしゃれなキッチン
キッチン後ろ上部には吊戸棚収納もあります。
一緒にお風呂に入っている子供達の声がリビングまで聞こえてきそうな広々とした1坪バス
お出かけ前の身だしなみに一歩差がつく三面鏡。ミラー裏にはたっぷり収納もございます。
2階のキッチン脇に洗濯機置き場があります。2階にバルコニーがある為導線も良いですね。
ウォシュレット機能付きのトイレ。換気のしやすい窓付きで、収納もあり実用性も兼ね備えた造り。
木目調の温かみのあるフローリングの洋室
今からここを誰のお部屋にしようか、そんな洋室。大きさは6帖です。
お客様をお迎えする玄関、お家の出入りもスムーズに行えます。
固定階段式の小屋裏収納付きです。季節物などの収納に便利です。
各居室に収納付き
気持ちよくご家族やゲストを送迎できるスタイリッシュでスッキリとした玄関です。
家事時間を短縮できる食洗器付き、毎日の負担を減らしてお料理を楽しめる嬉しい設備です。
キッチン後ろの吊戸棚
キッチン
広めのバルコニーは風通しも良くお洗濯物もしっかりと干すことができます!
お手入れのしやすいシンク
担当スタッフより

- 緒方亜由美
- 急行の停車するひばりが丘駅利用で通勤通学便利です、角地で開放感あります、ロフトのある家、お気軽にお問い合わせ下さい、
物件詳細情報
物件No.31022138740
| 所在地 | 東京都東久留米市浅間町2丁目 | ||
|---|---|---|---|
| 交通 | 西武池袋線「ひばりヶ丘」駅徒歩15分 西武池袋線「東久留米」駅徒歩18分 西武池袋線「保谷」駅徒歩36分 |
||
| 間取 | 2LDK | ||
| 土地面積 | 66.47m² 公簿 (私道92.41m²別に有、私道持分比率:1045/9241) | ||
| 建物面積 | 64.26m² 実測 | ||
| 販売戸数 | 1戸 | 総戸数 | 全1戸 |
| 構造・規模 | 木造 2階建て | 築年・入居 | 2026年1月 |
| 建物現況 | 完成済 | 建築確認番号 | 第25UDI1T建01912号 |
| 駐車スペース | 1台 | 引渡時期 | 即引渡可 |
| 国土法届出 | 不要 | 地目 | 宅地 |
| 用途地域 | 第一種低層住居専用地域 | 建ぺい率 | 40% |
| 容積率 | 80% | 都市計画 | 市街化区域 |
| 権利種類 | 所有権 | 接道 | 北東側4M私道に接道 北西側4M公道に接道 |
| 取引態様 | 媒介 | ||
| 設備 | 公営水道、本下水、都市ガス | ||
| その他制限事項 | 高度地区、準防火地域、日影制限有 | ||
| 備考・制限等 | 南西側4m通路、準防火地域、第1種高度地区、高さ制限10m、宅地造成及び特定盛土等規制法、日影制限、 | ||
こだわり項目
- ※価格は物件の代金総額を表示しており、消費税が課税される場合は税込み価格です。(1,000円未満は切り上げ。)
税率は引き渡し時期により異なりますので、各物件の詳細につきましてはお問い合わせください。 - ※敷地権利が借地権のものは価格に権利金を含みます。
- ※制作中に内容が変更される場合もありますので、あらかじめご了承ください。
- ※購入の前には物件内容や契約条件についてご自身で十分な確認をしていただくようにお願いいたします。
- ※完成予想図はいずれも外構、植栽、外観等実際のものとは多少異なることがあります。
- ※CG合成の画像の場合、実際とは多少異なる場合があります。
周辺地図
周辺施設一覧
- ショッピングセンター
- スーパー
- コンビニ
- ドラッグストア
- ホームセンター
- 飲食店
- その他店舗
- 商店街
- 大学
- 専門学校
- 高校・高専
- 中学校
- 小学校
- 保育園
- 幼稚園
- 公民館・児童館
- 病院
- 郵便局
- 役所
- 図書館
- 金融機関
- 警察・消防
- 趣味・娯楽施設
- 公園・運動施設
- 周辺の街並み
- 駅
- その他
お問い合せ先
- 株式会社エステート白馬 所沢店
- お電話でのお問い合わせは
0120-417-898「ホームページを見た」とお問い合わせください - 埼玉県所沢市東住吉12-21 白馬ビルディング
- 営業時間:9:00~18:30
- 定休日:年中無休
- 免許番号:国土交通大臣免許(6)第5817号
- HOME
- 一戸建てをエリアから探す
- 東久留米市
- 浅間町
- 東久留米市浅間町2丁目全1棟 新築戸建























