- HOME
- 中古マンションをエリアから探す
- 北区
- 西ケ原
- 東高西ヶ原ペアシティ
中古マンション
東高西ヶ原ペアシティ
情報更新日:2026/01/17 次回更新予定日:2026/01/31
価 格5,980万円(税込)
所在地東京都北区西ケ原1丁目[周辺地図]
交 通京浜東北・根岸線「上中里」駅徒歩5分





室内リノベーション物件、安心のアフターサービス保証付き。ホテルライクな内廊下設計、オートロック、ペット飼育可。
担当スタッフより

- 村山栞理
- 修繕積立金総額2.5億円超、長期修繕計画有り、管理体制良好です。
物件詳細情報
物件No.31022516207
| 所在地 | 東京都北区西ケ原1丁目 | ||
|---|---|---|---|
| 交通 | 京浜東北・根岸線「上中里」駅徒歩5分 山手線「駒込」駅徒歩13分 東京メトロ南北線「西ケ原」駅徒歩4分 |
||
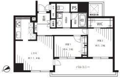
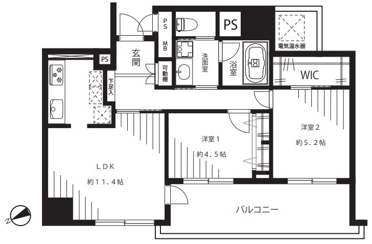
| 間取 | 2LDK (LDK11.4帖、洋室5.2帖、洋室4.5帖) | ||
| 専有面積 | 63.8m² (壁芯) | ||
| バルコニー面積 | 13.06m² 北西向き | ||
| 販売戸数 | 1戸 | 総戸数 | 全74戸 |
| 構造・規模 | 鉄骨鉄筋コンクリート造 14階建て 地下1階 2階部分 |
築年・入居 | 1992年11月築 |
| 施工会社 | 東高ハウス株式会社・清水建設株式会社 | 現況 | 空室 |
| 引渡時期 | 即引渡可 | 権利種類 | 旧法賃借権 借地料6195円/月、残存期間14年7ヶ月 |
| 管理費 | 16,880円/月 | 修繕積立金 | 6,380円/月 |
| 管理形態 | 日勤 全部委託 | 管理会社 | 明和地所コミュニティ株式会社 |
| 駐車場 | 敷地内に空なし | ペット | 可 |
| 外部協力金 | 3,000円/月 | 小学校区 | 北区立滝野川小学校(570m) |
| 中学校区 | 北区立飛鳥中学校(240m) | 取引態様 | 媒介 |
| リフォーム |
|
||
| 設備 | 公営水道、本下水、都市ガス | ||
こだわり項目
全居室収納食器洗浄機浄水器システムキッチン3口以上コンロ温水洗浄便座シャワー付洗面台オートバス室内洗濯機置き場ウォークインクローゼットオートロックエレベーター全居室フローリング小学校800m以内保育園・幼稚園800m以内スーパー400m以内コンビニ400m以内公園800m以内
- ※価格は物件の代金総額を表示しており、消費税が課税される場合は税込み価格です。(1,000円未満は切り上げ。)
税率は引き渡し時期により異なりますので、各物件の詳細につきましてはお問い合わせください。 - ※敷地権利が借地権のものは価格に権利金を含みます。
- ※制作中に内容が変更される場合もありますので、あらかじめご了承ください。
- ※購入の前には物件内容や契約条件についてご自身で十分な確認をしていただくようにお願いいたします。
- ※完成予想図はいずれも外構、植栽、外観等実際のものとは多少異なることがあります。
- ※CG合成の画像の場合、実際とは多少異なる場合があります。
周辺地図
周辺施設一覧
- ショッピングセンター
- スーパー
- コンビニ
- ドラッグストア
- ホームセンター
- 飲食店
- その他店舗
- 商店街
- 大学
- 専門学校
- 高校・高専
- 中学校
- 小学校
- 保育園
- 幼稚園
- 公民館・児童館
- 病院
- 郵便局
- 役所
- 図書館
- 金融機関
- 警察・消防
- 趣味・娯楽施設
- 公園・運動施設
- 周辺の街並み
- 駅
- その他
周辺施設ギャラリー
| 北区立滝野川小学校(約570m) | 北区立飛鳥中学校(約240m) | ||
| 京浜東北線「上中里」駅(約580m)、山手線・南北線「駒込」駅(約1,090m)、東京メトロ南北線「西ケ原」駅(約310m) | |||
お問い合せ先
- 株式会社エステート白馬 中野店
- お電話でのお問い合わせは
0120-512-325「ホームページを見た」とお問い合わせください - 東京都中野区新井2-1-19 パックマートビル4F
- 営業時間:9:30~19:00
- 定休日:年中無休
- 免許番号:国土交通大臣免許(6)第5817号



















