- HOME
- 中古マンションをエリアから探す
- 東大和市
- 高木
- ホームタウン宮前住宅 6号棟
ホームタウン宮前住宅 6号棟
情報更新日:2026/04/16 次回更新予定日:2026/04/30
価 格1,880万円(税込)
所在地東京都東大和市高木3丁目[周辺地図]
交 通西武拝島線「東大和市」駅バス7分 停歩9分





すべての画像
室内は新規に大幅にリフォームをしたお部屋。日当たりも良く明るい雰囲気の室内です。
現地のご見学予約もスタートしました。周辺で売りに出ている物件も沢山御座います。まとめてご見学ができますのでお気軽にお申しつけください。
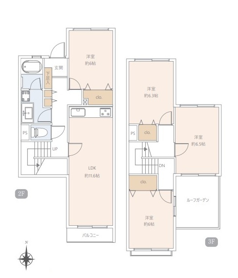
メゾネットタイプの4LDKの間取りです
家族が一番集まる場所だから広々としつつも素敵な空間であって欲しい。みんながくつろぐリビングからキッチンまでが一つの空間のように繋がる間取り。
3階の部分には広々としたルーフガーデンが。
吹抜けの空間を意識した開放感のある間取り。そして上部にロフトを配置。スタイリッシュかつ収納も豊富で長く機能的に住める家を目指して。
お部屋の中に階段があるメゾネットタイプのお部屋です。一戸建て感覚でお住いになれます。
家族みんなが集まるリビング。広さを重視した家族全員が集まれるリビングは、住む上で大事な空間になります。
LIXIL社製のキッチンを新規に設置しました。食洗器もついています。
LIXIL社製のバスルームも新規に交換。追い炊き機能もついています。一日の疲れを癒してくれるゆったりとしたバスルームです。
クローゼットなど収納も豊富なお家です。
実際に室内をご見学頂くと生活のイメージが広がると思います。家具を置いたイメージや窓からの景色など。周辺で販売に出している物件も一緒にまとめてご見学頂き、比較する事もできます。お気軽に担当スタッフまでお申しつけください。
周辺のエリアで他にも沢山売りに出ている物件があります。インターネット掲載前の情報などもありますのでお気軽にお問合せください。まとめてご見学できます。
現地のご見学予約もスタートしました。周辺で売りに出ている物件も沢山御座います。まとめてご見学ができますのでお気軽にお申しつけください。
実際に室内をご見学頂くと生活のイメージが広がると思います。家具を置いたイメージや窓からの景色など。周辺で販売に出している物件も一緒にまとめてご見学頂き、比較する事もできます。お気軽に担当スタッフまでお申しつけください。
吹抜けの空間を意識した開放感のある間取り。そして上部にロフトを配置。スタイリッシュかつ収納も豊富で長く機能的に住める家を目指して。
大きな屋根裏部屋はなんだかワクワクしてしまうスペース。季節物の収納など色々な用途に利用できそうな予感。
実際に室内をご見学頂くと生活のイメージが広がると思います。家具を置いたイメージや窓からの景色など。周辺で販売に出している物件も一緒にまとめてご見学頂き、比較する事もできます。お気軽に担当スタッフまでお申しつけください。
周辺のエリアで他にも沢山売りに出ている物件があります。インターネット掲載前の情報などもありますのでお気軽にお問合せください。まとめてご見学できます。
現地のご見学予約もスタートしました。周辺で売りに出ている物件も沢山御座います。まとめてご見学ができますのでお気軽にお申しつけください。
実際に室内をご見学頂くと生活のイメージが広がると思います。家具を置いたイメージや窓からの景色など。周辺で販売に出している物件も一緒にまとめてご見学頂き、比較する事もできます。お気軽に担当スタッフまでお申しつけください。
実際に室内をご見学頂くと生活のイメージが広がると思います。家具を置いたイメージや窓からの景色など。周辺で販売に出している物件も一緒にまとめてご見学頂き、比較する事もできます。お気軽に担当スタッフまでお申しつけください。
使いやすいタイプの洗面化粧台のあるランドリースペース
トイレにはウォシュレット機能を標準装備。
実際に室内をご見学頂くと生活のイメージが広がると思います。家具を置いたイメージや窓からの景色など。周辺で販売に出している物件も一緒にまとめてご見学頂き、比較する事もできます。お気軽に担当スタッフまでお申しつけください。
現地のご見学予約もスタートしました。周辺で売りに出ている物件も沢山御座います。まとめてご見学ができますのでお気軽にお申しつけください。
お家からの眺望です。実際に現地で眺望もご確認ください。
お家からの眺望です。開放感のある眺め。
靴が沢山ある方には嬉しい便利な玄関収納。
靴が沢山ある方には嬉しい便利な玄関収納。
現地のご見学予約もスタートしました。周辺で売りに出ている物件も沢山御座います。まとめてご見学ができますのでお気軽にお申しつけください。
周辺のエリアで他にも沢山売りに出ている物件があります。インターネット掲載前の情報などもありますのでお気軽にお問合せください。まとめてご見学できます。
担当スタッフより

- 加藤義平
- 現地ご見学予約スタートしました。他にもインターネットに掲載していない情報も沢山ありますので、まとめてご見学可能です。また、年中無休(年末年始を除く)で営業しております。火曜日水曜日も営業しておりますのでお気軽にお問合せください。
物件詳細情報
物件No.20000317820
| 所在地 | 東京都東大和市高木3丁目 | ||
|---|---|---|---|
| 交通 | 西武拝島線「東大和市」駅バス7分 バス停「東大和一小南」停歩9分 西武多摩湖線「武蔵大和」駅徒歩20分 多摩モノレール「上北台」駅徒歩26分 |
||
| 間取 | 4LDK | ||
| 専有面積 | 96.61m² (壁芯) | ||
| バルコニー面積 | 3.97m² 南向き (ルーフガーデン8.85平方メートル) | ||
| 販売戸数 | 1戸 | 総戸数 | 全50戸 |
| 構造・規模 | 鉄筋コンクリート造 3階建て 2階部分 |
築年・入居 | 1982年8月築 |
| 現況 | 空室 | 引渡時期 | 即引渡可 |
| 権利種類 | 所有権 | 管理費 | 9,500円/月 |
| 修繕積立金 | 10,000円/月 | 管理形態 | 日勤 一部委託 |
| 管理会社 | 日本総合住生活(株) | 駐車場 | 敷地内にあり 料金:6,000円/月 |
| ペット | 可 | 小学校区 | 第一小学校(700m) |
| 中学校区 | 第一中学校(350m) | 取引態様 | 媒介 |
| リフォーム |
|
||
| 設備 | 公営水道、本下水、都市ガス | ||
| 備考・制限等 | ペット飼育可(飼育細則あり) | ||
こだわり項目
- ※価格は物件の代金総額を表示しており、消費税が課税される場合は税込み価格です。(1,000円未満は切り上げ。)
税率は引き渡し時期により異なりますので、各物件の詳細につきましてはお問い合わせください。 - ※敷地権利が借地権のものは価格に権利金を含みます。
- ※制作中に内容が変更される場合もありますので、あらかじめご了承ください。
- ※購入の前には物件内容や契約条件についてご自身で十分な確認をしていただくようにお願いいたします。
- ※完成予想図はいずれも外構、植栽、外観等実際のものとは多少異なることがあります。
- ※CG合成の画像の場合、実際とは多少異なる場合があります。
周辺地図
周辺施設一覧
- ショッピングセンター
- スーパー
- コンビニ
- ドラッグストア
- ホームセンター
- 飲食店
- その他店舗
- 商店街
- 大学
- 専門学校
- 高校・高専
- 中学校
- 小学校
- 保育園
- 幼稚園
- 公民館・児童館
- 病院
- 郵便局
- 役所
- 図書館
- 金融機関
- 警察・消防
- 趣味・娯楽施設
- 公園・運動施設
- 周辺の街並み
- 駅
- その他
お問い合せ先
- 株式会社エステート白馬 国分寺店
- お電話でのお問い合わせは
0120-846-898「ホームページを見た」とお問い合わせください - 東京都国分寺市本町4-19-10 ビッググラッド国分寺1F
- 営業時間:9:30~18:30
- 定休日:年中無休
- 免許番号:国土交通大臣免許(6)第5817号
- HOME
- 中古マンションをエリアから探す
- 東大和市
- 高木
- ホームタウン宮前住宅 6号棟






