- HOME
- 一戸建てをエリアから探す
- 川口市
- 西川口
- 川口市西川口5丁目
中古住宅
川口市西川口5丁目
情報更新日:2026/04/18 次回更新予定日:2026/05/02
価 格5,280万円
所在地埼玉県川口市西川口5丁目[周辺地図]
交 通京浜東北・根岸線「西川口」駅徒歩15分






エステート白馬の5大サポート
1.無料FP相談
2.設備保証の延長
3.注文住宅「白馬の家」
4.見学時、建築士同行
5.IT活用での打ち合わせ
1.無料FP相談
2.設備保証の延長
3.注文住宅「白馬の家」
4.見学時、建築士同行
5.IT活用での打ち合わせ
物件詳細情報
物件No.20000350609
| 所在地 | 埼玉県川口市西川口5丁目 | ||
|---|---|---|---|
| 交通 | 京浜東北・根岸線「西川口」駅徒歩15分 埼京線「戸田公園」駅徒歩31分 京浜東北・根岸線「川口」駅徒歩19分 |
||
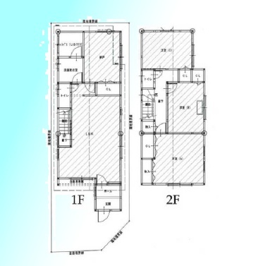
| 間取 | 3SLDK | ||
| 土地面積 | 88.65m² 実測 | ||
| 建物面積 | 101.51m² 実測 | ||
| 構造・規模 | 木造 2階建て | 築年月 | 2017年6月築 |
| 国土法届出 | 不要 | 地目 | 宅地 |
| 用途地域 | 第二種低層住居専用地域 | 建ぺい率 | 60% |
| 容積率 | 160% | 都市計画 | 市街化区域 |
| 現況 | 居住中 | 引渡時期 | 相談 |
| 権利種類 | 所有権 | 接道 | 南東側3.3M公道に3.5M接道 |
| 取引態様 | 媒介 | ||
| 設備 | 公営水道 | ||
こだわり項目
角地整形地平坦地緑豊かな住宅地閑静な住宅地床下収納複層ガラス浄水器ガスコンロシステムキッチンカウンターキッチン3口以上コンロトイレ2ヶ所温水洗浄便座シャワー付洗面台浴室乾燥機浴室暖房追焚機能浴室1坪以上浴室に窓オートバス全居室フローリングリビング階段TVモニタ付インターホン陽当り良好通風良好隣家との間隔が大きい
- ※価格は物件の代金総額を表示しており、消費税が課税される場合は税込み価格です。(1,000円未満は切り上げ。)
税率は引き渡し時期により異なりますので、各物件の詳細につきましてはお問い合わせください。 - ※敷地権利が借地権のものは価格に権利金を含みます。
- ※制作中に内容が変更される場合もありますので、あらかじめご了承ください。
- ※購入の前には物件内容や契約条件についてご自身で十分な確認をしていただくようにお願いいたします。
- ※完成予想図はいずれも外構、植栽、外観等実際のものとは多少異なることがあります。
- ※CG合成の画像の場合、実際とは多少異なる場合があります。
周辺地図
周辺施設一覧
- ショッピングセンター
- スーパー
- コンビニ
- ドラッグストア
- ホームセンター
- 飲食店
- その他店舗
- 商店街
- 大学
- 専門学校
- 高校・高専
- 中学校
- 小学校
- 保育園
- 幼稚園
- 公民館・児童館
- 病院
- 郵便局
- 役所
- 図書館
- 金融機関
- 警察・消防
- 趣味・娯楽施設
- 公園・運動施設
- 周辺の街並み
- 駅
- その他
お問い合せ先
- 株式会社エステート白馬 南浦和店
- お電話でのお問い合わせは
0120-934-879「ホームページを見た」とお問い合わせください - 埼玉県さいたま市南区南浦和2-38-1 北原ビル1F
- 営業時間:9:30~18:30
- 定休日:年中無休
- 免許番号:国土交通大臣免許(6)第5817号






