- HOME
- 土地をエリアから探す
- 東村山市
- 恩多町
- 東村山市恩多町4丁目 土地
土地
東村山市恩多町4丁目 土地
情報更新日:2026/04/16 次回更新予定日:2026/04/30
価 格1,650万円
所在地東京都東村山市恩多町4丁目[周辺地図]
交 通西武新宿線「東村山」駅徒歩18分





◎こころとカラダに、うれしい暮らし
HAKUBAグループでは、土地や住まいの売買から設計、建築、
医療、介護そして保険や金融、税金対策、資産形成まで
さまざまなスペシャリストが集い、連携してサービス提供をしております。
専門知識や経験をかけあわせることで、お客様ひとりひとりにあった健康的な暮らしをお届けし、
人生が「プラス」の方向に進んでいくお手伝いをさせて頂きます。
HAKUBAグループでは、土地や住まいの売買から設計、建築、
医療、介護そして保険や金融、税金対策、資産形成まで
さまざまなスペシャリストが集い、連携してサービス提供をしております。
専門知識や経験をかけあわせることで、お客様ひとりひとりにあった健康的な暮らしをお届けし、
人生が「プラス」の方向に進んでいくお手伝いをさせて頂きます。
すべての画像
現地のご見学予約もスタートしました。周辺で売りに出ている物件も沢山御座います。まとめてご見学ができますのでお気軽にお申しつけください。
周辺のエリアで他にも沢山売りに出ている物件があります。インターネット掲載前の情報などもありますのでお気軽にお問合せください。まとめてご見学できます。
安心して暮らすことのできる住宅街。 住宅地の道路は一般に交通量が少なく車などの騒音が少ないため、住民にとって静かな生活環境が提供されます。
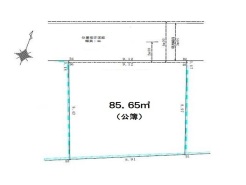
区画図
白馬グループの白馬建設にて、プラン作成、イメージパース作成を数日で行えます。 希望の間取りはどの位の大きさか?、一体どの位の広さの土地が適切か?まずはたたき台のプランと見積りを作りましょう、担当者へお申しつけください。
現地ご見学の際、スタッフが様々なご質問に対応いたします、周辺環境、前面道路、建築可能な建物について、ぜひご相談ください。
建築条件なしの敷地。弊社グループ「白馬建設」にて建物プランをご提案できます。実際の陽当たりやサイズ感を現地でお確かめください。
周辺は住宅が建ち並ぶ閑静な住宅街です。
担当スタッフより

- 長谷川 佳行
- 夏に涼しく、冬に暖かい。一年中快適に過ごすことができる高気密高断熱の「白馬の家」。参考プランの作成も無料でできます。お気軽にお問合せください。モデルハウスのご見学も受付中です。他にも色々なエリアで土地の情報がありますので、まとめてご見学頂き比較してください。
物件詳細情報
物件No.20000409836
| 所在地 | 東京都東村山市恩多町4丁目 | ||
|---|---|---|---|
| 交通 | 西武新宿線「東村山」駅徒歩18分 西武国分寺線「東村山」駅徒歩18分 西武新宿線「久米川」駅徒歩18分 |
||
| 土地面積 | 85.65m² 公簿 (私道319.6m²別に有、私道持分比率:505/9668、セットバック1.6m²) | ||
| 販売区画数 | 1区画 | 総区画数 | 全1区画 |
| 用途地域 | 第一種低層住居専用地域 | 建ぺい率 | 50% |
| 容積率 | 100% | 都市計画 | 市街化区域 |
| 国土法届出 | 不要 | 建築条件 | 建築条件なし |
| 地目 | 宅地 | 最適用途 | 住宅用地 |
| 現況 | 更地 | 引渡時期 | 相談 |
| 権利種類 | 所有権 | 接道 | 北西側4M私道に9.12M接道 |
| 小学校区 | 大岱小学校(350m) | 中学校区 | 東村山第五中学校(500m) |
| 取引態様 | 媒介 | ||
| 設備 | 公営水道、本下水、都市ガス | ||
| その他制限事項 | 景観法、航空法、準防火地域 | ||
| 備考・制限等 | 分筆及び地積更正登記はいたしません(現況土地面積:84.53平米、有効宅地面積:82.93平米)。 | ||
こだわり項目
始発駅整形地閑静な住宅地小学校800m以内保育園・幼稚園800m以内公園800m以内
- ※価格は物件の代金総額を表示しており、消費税が課税される場合は税込み価格です。(1,000円未満は切り上げ。)
税率は引き渡し時期により異なりますので、各物件の詳細につきましてはお問い合わせください。 - ※敷地権利が借地権のものは価格に権利金を含みます。
- ※制作中に内容が変更される場合もありますので、あらかじめご了承ください。
- ※購入の前には物件内容や契約条件についてご自身で十分な確認をしていただくようにお願いいたします。
- ※完成予想図はいずれも外構、植栽、外観等実際のものとは多少異なることがあります。
- ※CG合成の画像の場合、実際とは多少異なる場合があります。
周辺地図
周辺施設一覧
- ショッピングセンター
- スーパー
- コンビニ
- ドラッグストア
- ホームセンター
- 飲食店
- その他店舗
- 商店街
- 大学
- 専門学校
- 高校・高専
- 中学校
- 小学校
- 保育園
- 幼稚園
- 公民館・児童館
- 病院
- 郵便局
- 役所
- 図書館
- 金融機関
- 警察・消防
- 趣味・娯楽施設
- 公園・運動施設
- 周辺の街並み
- 駅
- その他
お問い合せ先
- 株式会社エステート白馬 国分寺店
- お電話でのお問い合わせは
0120-846-898「ホームページを見た」とお問い合わせください - 東京都国分寺市本町4-19-10 ビッググラッド国分寺1F
- 営業時間:9:30~18:30
- 定休日:年中無休
- 免許番号:国土交通大臣免許(6)第5817号





