- HOME
- 一戸建てをエリアから探す
- 世田谷区
- 南烏山
- 世田谷区南烏山1丁目 戸建
世田谷区南烏山1丁目 戸建
情報更新日:2026/04/16 次回更新予定日:2026/04/30
価 格7,099万円(税込)
所在地東京都世田谷区南烏山1丁目[周辺地図]
交 通京王線「芦花公園」駅徒歩5分





HAKUBAグループでは、土地や住まいの売買から設計、建築、
医療、介護そして保険や金融、税金対策、資産形成まで
さまざまなスペシャリストが集い、連携してサービス提供をしております。
専門知識や経験をかけあわせることで、お客様ひとりひとりにあった健康的な暮らしをお届けし、
人生が「プラス」の方向に進んでいくお手伝いをさせて頂きます。
すべての画像
本画像はCGで作成しており、実際に現地に家具は置かれておりません。また、価格に家具は含まれておりません。
現地のご見学予約もスタートしました。周辺で売りに出ている物件も沢山御座います。まとめてご見学ができますのでお気軽にお申しつけください。
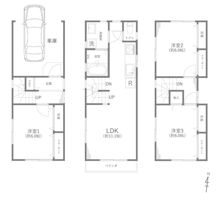
間取り
本画像はCGで作成しており、実際に現地に家具は置かれておりません。また、価格に家具は含まれておりません。
キッチンは、カウンターや壁付けタイプ、アイランドタイプ様々なパターンが御座います。 お好みも分かれる所ではありますが、壁付け対応は閉鎖的にならずに明るいキッチンスペースとしてご希望を頂く事も多いタイプ。
一日の疲れを癒してくれるゆったりとしたバスルームです。
三面鏡に洗面台。 コンセントに照明機能、多機能性を備えた設備です。
窓からの眺望です。実際に現地で眺望もご確認ください。
本画像はCGで作成しており、実際に現地に家具は置かれておりません。また、価格に家具は含まれておりません。
安心して暮らすことのできる住宅街。 住宅地の道路は一般に交通量が少なく車などの騒音が少ないため、住民にとって静かな生活環境が提供されます。
周辺の街並みの中で適度な主張、生活に溶け込むシンプルなデザインの外観が魅力の一戸建です。
家族が食事するダイニングスペースをキッチンから見渡せる設計に。お料理をしながら家族とのコミュニケーションが増えそうな予感。
リビングの真ん中に階段がある人気のリビング階段。自然と家族のコミュニケーションが増えます。
キッチンは、カウンターや壁付けタイプ、アイランドタイプ様々なパターンが御座います。 お好みも分かれる所ではありますが、壁付け対応は閉鎖的にならずに明るいキッチンスペースとしてご希望を頂く事も多いタイプ。
キッチンコンロスペースの近くには、空気の入れ替えが可能な開口部を設置!! お料理をする際には、換気扇を回しながら匂いが籠らない様に開放してお料理もお楽しみ頂けます。
毎日の家事をサポートしてくれる食洗器も標準に装備。ちょっと嬉しい設備です
トイレにはウォシュレット機能を標準装備。
三面鏡に洗面台。 コンセントに照明機能、多機能性を備えた設備です。
使いやすいタイプの洗面化粧台のあるランドリースペース
スタイリッシュなデザインと快適な居住性を兼ね備えた洋室。広々とした空間は、自分らしいインテリアを楽しむことができるほか、リラックスした時間を過ごすことができそうです。
洋室はモダンなデザインと機能性を備え、快適な生活空間に。明るい窓から差し込む自然光が広々とした空間をさらに明るく開放的に感じさせます。
スマートなデザインと賢い収納が生活を快適にします。広々とした雰囲気を演出する工夫が施され、生活空間の魅力を引き出します。
実際に室内をご見学頂くと生活のイメージが広がると思います。家具を置いたイメージや窓からの景色など。周辺で販売に出している物件も一緒にまとめてご見学頂き、比較する事もできます。お気軽に担当スタッフまでお申しつけください。
豊富な収納スペースもこの物件の特長の一つ。各所に収納が完備されており、生活をスッキリと整えることができます。
スタイリッシュなデザインと快適な居住性を兼ね備えた洋室。広々とした空間は、自分らしいインテリアを楽しむことができるほか、リラックスした時間を過ごすことができそうです。
季節の変化や天気の良い日には、バルコニーでの時間が心地よく、気分をリフレッシュさせることができます。
窓からの眺望です。実際に現地で眺望もご確認ください。
実際に室内をご見学頂くと生活のイメージが広がると思います。家具を置いたイメージや窓からの景色など。周辺で販売に出している物件も一緒にまとめてご見学頂き、比較する事もできます。お気軽に担当スタッフまでお申しつけください。
靴が沢山ある方には嬉しいシューズクローク。ベビーカーやゴルフバッグなども置けそうなスペースに
玄関は家の第一印象を左右する重要な場所。ほどよい広さとスタイリッシュな色遣いが印象的です。
周辺のエリアで他にも沢山売りに出ている物件があります。インターネット掲載前の情報などもありますのでお気軽にお問合せください。まとめてご見学できます。
現地のご見学予約もスタートしました。周辺で売りに出ている物件も沢山御座います。まとめてご見学ができますのでお気軽にお申しつけください。
担当スタッフより

- 長谷川 佳行
- 現地ご見学予約スタートしました。他にもインターネットに掲載していない情報も沢山ありますので、まとめてご見学可能です。また、年中無休(年末年始を除く)で営業しております。火曜日水曜日も営業しておりますのでお気軽にお問合せください。
物件詳細情報
物件No.20000422438
| 所在地 | 東京都世田谷区南烏山1丁目 | ||
|---|---|---|---|
| 交通 | 京王線「芦花公園」駅徒歩5分 京王線「八幡山」駅徒歩7分 京王井の頭線「高井戸」駅徒歩22分 |
||
| 間取 | 3LDK | ||
| 土地面積 | 50.05m² 公簿 (私道0.4m²別に有、私道持分比率:1/2) | ||
| 建物面積 | 88.02m² 公簿 | ||
| 構造・規模 | 木造 3階建て | 築年月 | 1998年1月築 |
| バルコニー | 南向き | 国土法届出 | 不要 |
| 地目 | 宅地 | 用途地域 | 第一種中高層住居専用地域 |
| 建ぺい率 | 60% | 容積率 | 160% |
| 都市計画 | 市街化区域 | 駐車スペース | あり(車庫) |
| 現況 | 空家 | 引渡時期 | 相談 |
| 引渡条件 | 現況渡し | 権利種類 | 所有権 |
| 接道 | 北側3.8M私道に4.3M接道 | 小学校区 | 区立芦花小学校(1000m) |
| 中学校区 | 区立芦花中学校(500m) | 取引態様 | 媒介 |
| リフォーム |
|
||
| 設備 | 公営水道、本下水、都市ガス | ||
こだわり項目
- ※価格は物件の代金総額を表示しており、消費税が課税される場合は税込み価格です。(1,000円未満は切り上げ。)
税率は引き渡し時期により異なりますので、各物件の詳細につきましてはお問い合わせください。 - ※敷地権利が借地権のものは価格に権利金を含みます。
- ※制作中に内容が変更される場合もありますので、あらかじめご了承ください。
- ※購入の前には物件内容や契約条件についてご自身で十分な確認をしていただくようにお願いいたします。
- ※完成予想図はいずれも外構、植栽、外観等実際のものとは多少異なることがあります。
- ※CG合成の画像の場合、実際とは多少異なる場合があります。
周辺地図
周辺施設一覧
- ショッピングセンター
- スーパー
- コンビニ
- ドラッグストア
- ホームセンター
- 飲食店
- その他店舗
- 商店街
- 大学
- 専門学校
- 高校・高専
- 中学校
- 小学校
- 保育園
- 幼稚園
- 公民館・児童館
- 病院
- 郵便局
- 役所
- 図書館
- 金融機関
- 警察・消防
- 趣味・娯楽施設
- 公園・運動施設
- 周辺の街並み
- 駅
- その他
お問い合せ先
- 株式会社エステート白馬 国分寺店
- お電話でのお問い合わせは
0120-846-898「ホームページを見た」とお問い合わせください - 東京都国分寺市本町4-19-10 ビッググラッド国分寺1F
- 営業時間:9:30~18:30
- 定休日:年中無休
- 免許番号:国土交通大臣免許(6)第5817号
- HOME
- 一戸建てをエリアから探す
- 世田谷区
- 南烏山
- 世田谷区南烏山1丁目 戸建







