- HOME
- 一戸建てをエリアから探す
- 東久留米市
- 南沢
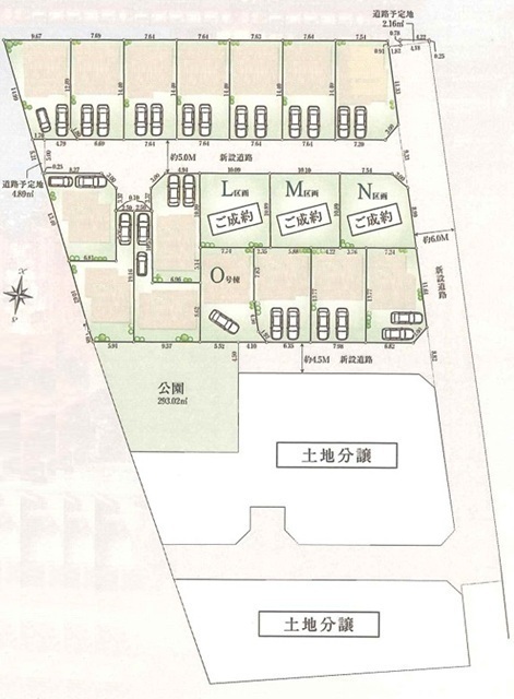
- 東久留米市南沢4丁目 戸建 O号棟
新築一戸建て
東久留米市南沢4丁目 戸建 O号棟
情報更新日:2026/04/12 次回更新予定日:2026/04/24
価 格4,650万円(税込)
所在地東京都東久留米市南沢4丁目[周辺地図]
交 通西武池袋線「ひばりヶ丘」駅バス8分 停歩5分





南側道路、公園につき陽当り良好。LDK17.7帖。リビング階段。水廻り集中。全居室2面採光・収納付。イオンモール東久留米店徒歩約5分
物件詳細情報
物件No.20000423025
| 所在地 | 東京都東久留米市南沢4丁目 | ||
|---|---|---|---|
| 交通 | 西武池袋線「ひばりヶ丘」駅バス8分 バス停「南沢四丁目」停歩5分 | ||
| 間取 | 4LDK | ||
| 土地面積 | 110.05m² 公簿 | ||
| 建物面積 | 86.94m² 実測 | ||
| 販売戸数 | 1戸 | 総戸数 | 全18戸 |
| 構造・規模 | 木造 2階建て | 築年・入居 | 2025年11月下旬 |
| バルコニー | 南向き | 建物現況 | 完成済 |
| 建築確認番号 | 第HPA-25-08711-1号 | 駐車スペース | 1台(カースペース) |
| 引渡時期 | 即引渡可 | 国土法届出 | 不要 |
| 地目 | 田・畑 | 用途地域 | 第一種低層住居専用地域 |
| 建ぺい率 | 40% | 容積率 | 80% |
| 都市計画 | 市街化区域 | 権利種類 | 所有権 |
| 接道 | 南側4.5M公道に接道 | 小学校区 | 第五小学校(330m) |
| 中学校区 | 南中学校(980m) | 取引態様 | 媒介 |
| 設備 | 公営水道、本下水、都市ガス | ||
- ※価格は物件の代金総額を表示しており、消費税が課税される場合は税込み価格です。(1,000円未満は切り上げ。)
税率は引き渡し時期により異なりますので、各物件の詳細につきましてはお問い合わせください。 - ※敷地権利が借地権のものは価格に権利金を含みます。
- ※制作中に内容が変更される場合もありますので、あらかじめご了承ください。
- ※購入の前には物件内容や契約条件についてご自身で十分な確認をしていただくようにお願いいたします。
- ※完成予想図はいずれも外構、植栽、外観等実際のものとは多少異なることがあります。
- ※CG合成の画像の場合、実際とは多少異なる場合があります。
周辺地図
周辺施設一覧
- ショッピングセンター
- スーパー
- コンビニ
- ドラッグストア
- ホームセンター
- 飲食店
- その他店舗
- 商店街
- 大学
- 専門学校
- 高校・高専
- 中学校
- 小学校
- 保育園
- 幼稚園
- 公民館・児童館
- 病院
- 郵便局
- 役所
- 図書館
- 金融機関
- 警察・消防
- 趣味・娯楽施設
- 公園・運動施設
- 周辺の街並み
- 駅
- その他
お問い合せ先
- 株式会社エステート白馬 国分寺店
- お電話でのお問い合わせは
0120-846-898「ホームページを見た」とお問い合わせください - 東京都国分寺市本町4-19-10 ビッググラッド国分寺1F
- 営業時間:9:30~18:30
- 定休日:年中無休
- 免許番号:国土交通大臣免許(6)第5817号
- HOME
- 一戸建てをエリアから探す
- 東久留米市
- 南沢
- 東久留米市南沢4丁目 戸建 O号棟





