- HOME
- 一戸建てをエリアから探す
- 所沢市
- 小手指元町
- 所沢市小手指元町2丁目全8棟 新築戸建
所沢市小手指元町2丁目全8棟 新築戸建
情報更新日:2026/04/14 次回更新予定日:2026/04/28 取引条件有効期限:2026/04/28
所在地埼玉県所沢市小手指元町2丁目[周辺地図]
交 通西武池袋線「小手指」駅徒歩10分






・カースペース2台可能です
- すべて(51)
- 外観・パース(13)
- 内観(31)
- 間取・区画(6)
- その他(0)
- 動画
すべての画像
1号棟 セカンドカーや来客時にも便利なカースペース2台分ございます。 2026/03/08m
7号棟 五感で感じる、現地でしかわからない事も沢山ございます。周辺環境なども一緒にご案内いたしますのでお気軽にお問合せください。 2025/10/31m
8号棟 セカンドカーや来客時にも便利なカースペース2台分ございます。
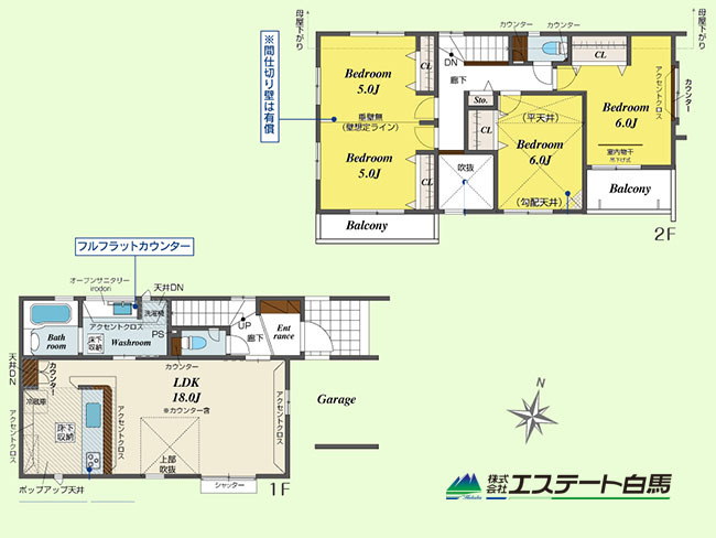
1号棟 間取り
7号棟 間取り図
8号棟 間取り図
1号棟 区画図
7号棟 区画図
8号棟 区画図
1号棟 セカンドカーや来客時にも便利なカースペース2台分ございます。 2026/03/08m
7号棟 前面道路は広く、駐車がしやすいです。駐車スペース2台分ございます。 2025/10/31m
8号棟 吹き抜けのある明るいリビング 2026/03/26m
1号棟 家族の集うリビングには色々な方向から光が差し込む設計に。家族のコミュニケーションが弾むスポットだから明るい雰囲気であってほしい。 2026/03/08m
7号棟 6m幅員の道路に面しておりお車の運転が苦手な方でも安心して出入りいただけます。 2025/10/31m
8号棟 家族や友人、両親、親戚とこれから沢山の時間を紡ぐのだろう。そこを彩るのは窓から見える青い空、心地よい緑。そんなイメージが膨らむリビングスペース。 2026/03/26m
1号棟 どんな家具にでも相性が良い清潔感ある白色調のクロスを採用。主張しすぎない配色、耐久性にも優れた床材は日々のメンテナンスも楽に、快適に過ごして頂けるよう考えられています。 2026/03/08m
7号棟 戸建てが立ち並ぶ静かな住宅街。四季折々の移り変わりを感じながら自然と楽しみ、暮らす、そんな毎日を日々の中で感じられる住環境 2025/10/31m
8号棟 家族団欒のリビング。陽光差し込む食卓には家族の会話とスマイルが溢れます。いつまでもここで食卓を囲みたくなる、そう感じさせてくれるスペース。 2026/03/26m
1号棟 リビングは家具の配置も思いのまま。自由度が高い設計です。 2026/03/08m
7号棟 当日ご案内可能です!物件だけでなく、周辺の環境や他にご希望の物件もまとめてご案内可能です。 2025/10/31m
8号棟 明るく開放的な玄関、靴の脱ぎ履きもしやすく、収納も豊富でご家族皆様の靴をスッキリ収納できます。 2026/03/26m
1号棟 家族が一番集まる場所だから広々としつつも素敵な空間であって欲しい。皆がくつろぐリビングからキッチンまでが一つに繋がる空間。 2026/03/08m
7号棟 商業施設が徒歩圏内に充実、日々のお買い物も安心な環境です。 2025/10/31m
8号棟 明るく開放的な玄関、靴の脱ぎ履きもしやすく、収納も豊富でご家族皆様の靴をスッキリ収納できます。 2026/03/26m
1号棟 家事時間を短縮できる食洗器付き、毎日の負担を減らしてお料理を楽しめる嬉しい設備です。 2026/03/08m
7号棟 商業施設が徒歩圏内に充実、日々のお買い物も安心な環境です。
8号棟 リビングにいる家族の顔が見渡せるカウンターキッチン。お料理もより一層おいしく、楽しく。食器棚を背面に設置しても十分な広さを確保しています。 2026/03/26m
1号棟 時短に活躍する食器洗浄機や一杯の水も楽しめる浄水器があるシステムキッチン。 2026/03/08m
7号棟 ゴミ置き場 2025/10/31m
8号棟 家族団欒のリビング。陽光差し込む食卓には家族の会話とスマイルが溢れます。いつまでもここで食卓を囲みたくなる、そう感じさせてくれるスペース。 2026/03/26m
1号棟 キッチン収納棚 2026/03/08m
7号棟 前面道路は広く、駐車がしやすいです。駐車スペース2台分ございます。 2025/10/31m
8号棟 家事時間を短縮できる食洗器付き、毎日の負担を減らしてお料理を楽しめる嬉しい設備です。 2026/03/26m
1号棟 6.0帖+5.25帖の大型居室 2026/03/08m
7号棟 当日ご案内可能です!物件だけでなく、周辺の環境や他にご希望の物件もまとめてご案内可能です。 2025/10/31m
8号棟 お出かけ前の身だしなみに一歩差がつく三面鏡。ミラー裏にはたっぷり収納もございます。 2026/03/26m
1号棟 将来的に2部屋へ変更可能です 2026/03/08m
8号棟 ゆとりの洗面スペースで朝の身支度もスムーズに行えます。 2026/03/26m
1号棟 お出かけ前の身だしなみに一歩差がつく三面鏡。ミラー裏にはたっぷり収納もございます。 2026/03/08m
8号棟 花粉や雨の日、寒い冬の時期に嬉しい浴室乾燥機。換気機能で入浴時に湿気を換気しカビの防止にもなります。 2026/03/26m
1号棟 花粉や雨の日、寒い冬の時期に嬉しい浴室乾燥機。換気機能で入浴時に湿気を換気しカビの防止にもなります。 2026/03/08m
8号棟 ご家族様の成長に合わせて、仕切りをつけれる洋室です。 2026/03/26m
1号棟 明るく開放的な玄関、靴の脱ぎ履きもしやすく、収納も豊富でご家族皆様の靴をスッキリ収納できます。 2026/03/08m
8号棟 ご家族様の成長に合わせて、仕切りをつけれる洋室です。 2026/03/26m
1号棟 土間収納付きでベビーカーやゴルフバック、お子様のおもちゃもスッキリ収納できます。 2026/03/08m
8号棟 約10帖の洋室 2026/03/26m
1号棟 室内物干し 2026/03/08m
8号棟 室内物干し 2026/03/26m
担当スタッフより

- 大野康博
- 全8棟の分譲地です、始発の小手指駅まで徒歩約10分と通勤通学便利です、ス―パーやコンビニや小中学校が640m以内(徒歩約8分以内)にあり暮らしやすい環境です、お気軽にお問い合わせ下さい
各棟情報
物件詳細情報
物件No.20000429472
| 所在地 | 埼玉県所沢市小手指元町2丁目 | ||
|---|---|---|---|
| 交通 | 西武池袋線「小手指」駅徒歩10分 西武池袋線「西所沢」駅徒歩27分 西武狭山線「下山口」駅徒歩26分 |
||
| 間取 | 3LDK~3LDK | ||
| 土地面積 | 120.54m² ~ 123.02m² 実測 (協定部分有(路地状部分)) | ||
| 建物面積 | 97.08m² ~ 105.81m² 実測 | ||
| 販売戸数 | 3戸 | 総戸数 | 全8戸 |
| 構造・規模 | 木造 2階建て | 築年・入居 | 2026年3月 |
| 建物現況 | 完成済 | 建築確認番号 | 第25UDI1W建08372号、他 |
| 駐車スペース | 2台 | 引渡時期 | 即引渡可 |
| 国土法届出 | 不要 | 地目 | 宅地 |
| 用途地域 | 第一種低層住居専用地域 | 建ぺい率 | 50% |
| 容積率 | 80% | 都市計画 | 市街化区域 |
| 権利種類 | 所有権 | 接道 | 北側5.4M公道に接道 東側4.1M公道に接道 |
| 小学校区 | 小手指小学校(360m) | 中学校区 | 小手指中学校(650m) |
| 取引態様 | 媒介 | ||
| 設備 | 公営水道、本下水、都市ガス | ||
| 省エネ性能表示 | エネルギー消費性能:★★★~★★★ 断熱性能:5段階~5段階 |
||
| 備考・制限等 | 開発許可番号第29R070170号、ゴミ置場持分1.96平米の内1/8有、景観法、航空法、協定部分あり(地役権設定あり、1から4号棟)、不整形地(2.3号棟)、3号棟南側ブロック越境あり、地中よりガラが出ている為可能な範囲で撤去していますが場所によっては掘削するとガラがでる可能性あります。 | ||
こだわり項目
- ※価格は物件の代金総額を表示しており、消費税が課税される場合は税込み価格です。(1,000円未満は切り上げ。)
税率は引き渡し時期により異なりますので、各物件の詳細につきましてはお問い合わせください。 - ※敷地権利が借地権のものは価格に権利金を含みます。
- ※制作中に内容が変更される場合もありますので、あらかじめご了承ください。
- ※購入の前には物件内容や契約条件についてご自身で十分な確認をしていただくようにお願いいたします。
- ※完成予想図はいずれも外構、植栽、外観等実際のものとは多少異なることがあります。
- ※CG合成の画像の場合、実際とは多少異なる場合があります。
周辺地図
周辺施設一覧
- ショッピングセンター
- スーパー
- コンビニ
- ドラッグストア
- ホームセンター
- 飲食店
- その他店舗
- 商店街
- 大学
- 専門学校
- 高校・高専
- 中学校
- 小学校
- 保育園
- 幼稚園
- 公民館・児童館
- 病院
- 郵便局
- 役所
- 図書館
- 金融機関
- 警察・消防
- 趣味・娯楽施設
- 公園・運動施設
- 周辺の街並み
- 駅
- その他
お問い合せ先
- 株式会社エステート白馬 所沢店
- お電話でのお問い合わせは
0120-417-898「ホームページを見た」とお問い合わせください - 埼玉県所沢市東住吉12-21 白馬ビルディング
- 営業時間:9:00~18:30
- 定休日:年中無休
- 免許番号:国土交通大臣免許(6)第5817号
- HOME
- 一戸建てをエリアから探す
- 所沢市
- 小手指元町
- 所沢市小手指元町2丁目全8棟 新築戸建















