- HOME
- 一戸建てをエリアから探す
- 立川市
- 柏町
- 立川市柏町1丁目 戸建
立川市柏町1丁目 戸建
情報更新日:2026/04/09 次回更新予定日:2026/04/23
価 格9,000万円
所在地東京都立川市柏町1丁目[周辺地図]
交 通多摩モノレール「泉体育館」駅徒歩11分





HAKUBAグループでは、土地や住まいの売買から設計、建築、
医療、介護そして保険や金融、税金対策、資産形成まで
さまざまなスペシャリストが集い、連携してサービス提供をしております。
専門知識や経験をかけあわせることで、お客様ひとりひとりにあった健康的な暮らしをお届けし、
人生が「プラス」の方向に進んでいくお手伝いをさせて頂きます。
すべての画像
本画像はCGで作成しており、実際に現地に家具は置かれておりません。また、価格に家具は含まれておりません。
現地のご見学予約もスタートしました。周辺で売りに出ている物件も沢山御座います。まとめてご見学ができますのでお気軽にお申しつけください。
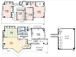
間取り
本画像はCGで作成しており、実際に現地に家具は置かれておりません。また、価格に家具は含まれておりません。
お料理をしながらリビングの家族やゲストとの会話が楽しめるカウンタータイプのキッチン。毎日のお料理を楽しく快適に。
一日の疲れを癒してくれるゆったりとしたバスルームです。
使いやすいタイプの洗面化粧台のあるランドリースペース
窓からの眺望です。実際に現地で眺望もご確認ください。
本画像はCGで作成しており、実際に現地に家具は置かれておりません。また、価格に家具は含まれておりません。
安心して暮らすことのできる住宅街。 住宅地の道路は一般に交通量が少なく車などの騒音が少ないため、住民にとって静かな生活環境が提供されます。
周辺のエリアで他にも沢山売りに出ている物件があります。インターネット掲載前の情報などもありますのでお気軽にお問合せください。まとめてご見学できます。
家族の集まるリビングは気持ちの良い自然光が差し込む団欒空間。室内のご見学予約も随時、受付中ですのでお気軽にお問合せください。
家族みんなが集まるリビング。広さを重視した家族全員が集まれるリビングは、住む上で大事な空間になります。
家族が食事するダイニングスペースをキッチンから見渡せる設計に。お料理をしながら家族とのコミュニケーションが増えそうな予感。
カウンターキッチンならではの開放的な見通し、全体が見渡せることでご家族の団欒スペースもより明るく笑顔が溢れる空間となります。
お料理をしながらリビングの家族やゲストとの会話が楽しめるカウンタータイプのキッチン。毎日のお料理を楽しく快適に。
トイレにはウォシュレット機能を標準装備。
使いやすいタイプの洗面化粧台のあるランドリースペース
洋室はモダンなデザインと機能性を備え、快適な生活空間に。明るい窓から差し込む自然光が広々とした空間をさらに明るく開放的に感じさせます。
スタイリッシュなデザインと快適な居住性を兼ね備えた洋室。広々とした空間は、自分らしいインテリアを楽しむことができるほか、リラックスした時間を過ごすことができそうです。
実際に室内をご見学頂くと生活のイメージが広がると思います。家具を置いたイメージや窓からの景色など。周辺で販売に出している物件も一緒にまとめてご見学頂き、比較する事もできます。お気軽に担当スタッフまでお申しつけください。
スマートなデザインと賢い収納が生活を快適にします。広々とした雰囲気を演出する工夫が施され、生活空間の魅力を引き出します。
和室がある間取り。畳の香りとともにどこか落ち着く空間です。
豊富な収納スペースもこの物件の特長の一つ。各所に収納が完備されており、生活をスッキリと整えることができます。
各お部屋に収納が設置されています。
季節の変化や天気の良い日には、バルコニーでの時間が心地よく、気分をリフレッシュさせることができます。
窓からの眺望です。実際に現地で眺望もご確認ください。
実際に室内をご見学頂くと生活のイメージが広がると思います。家具を置いたイメージや窓からの景色など。周辺で販売に出している物件も一緒にまとめてご見学頂き、比較する事もできます。お気軽に担当スタッフまでお申しつけください。
約29帖の広々とした地下室
現地のご見学予約もスタートしました。周辺で売りに出ている物件も沢山御座います。まとめてご見学ができますのでお気軽にお申しつけください。
周辺の街並みの中で適度な主張、生活に溶け込むシンプルなデザインの外観が魅力の一戸建です。
この街を選ぶ理由や想像している生活のイメージを担当者と共有してもらえると嬉しいです。 今後の暮らしがどのようなものになるか、その想像が現実になるためのステップを一緒に考えましょう。
担当スタッフより

- 吉田 勇人
- 現地ご見学予約スタートしました。他にもインターネットに掲載していない情報も沢山ありますので、まとめてご見学可能です。また、年中無休(年末年始を除く)で営業しております。火曜日水曜日も営業しておりますのでお気軽にお問合せください。
物件詳細情報
物件No.20000434270
| 所在地 | 東京都立川市柏町1丁目 | ||
|---|---|---|---|
| 交通 | 多摩モノレール「泉体育館」駅徒歩11分 中央線「立川」駅バス14分 バス停「十小裏」停歩5分 南武線「立川」駅バス14分 バス停「十小裏」停歩5分 |
||
| 間取 | 6LDK | ||
| 土地面積 | 216.42m² 公簿 (私道25.28m²別に有) | ||
| 建物面積 | 221.13m² | ||
| 構造・規模 | 鉄筋コンクリート造 2階建て 地下1階 | 築年月 | 1991年7月築 |
| バルコニー | 南向き | 国土法届出 | 不要 |
| 地目 | 宅地 | 用途地域 | 第一種低層住居専用地域 |
| 建ぺい率 | 40% | 容積率 | 80% |
| 都市計画 | 市街化区域 | 駐車スペース | あり(カースペース) |
| 現況 | 空家 | 引渡時期 | 即引渡可 |
| 権利種類 | 所有権 | 接道 | 東側5M公道に接道 西側4M私道に接道 |
| 小学校区 | 第十小学校(260m) | 中学校区 | 立川第六中学校(750m) |
| 取引態様 | 媒介 | ||
| 設備 | 公営水道、本下水、都市ガス | ||
こだわり項目
- ※価格は物件の代金総額を表示しており、消費税が課税される場合は税込み価格です。(1,000円未満は切り上げ。)
税率は引き渡し時期により異なりますので、各物件の詳細につきましてはお問い合わせください。 - ※敷地権利が借地権のものは価格に権利金を含みます。
- ※制作中に内容が変更される場合もありますので、あらかじめご了承ください。
- ※購入の前には物件内容や契約条件についてご自身で十分な確認をしていただくようにお願いいたします。
- ※完成予想図はいずれも外構、植栽、外観等実際のものとは多少異なることがあります。
- ※CG合成の画像の場合、実際とは多少異なる場合があります。
周辺地図
周辺施設一覧
- ショッピングセンター
- スーパー
- コンビニ
- ドラッグストア
- ホームセンター
- 飲食店
- その他店舗
- 商店街
- 大学
- 専門学校
- 高校・高専
- 中学校
- 小学校
- 保育園
- 幼稚園
- 公民館・児童館
- 病院
- 郵便局
- 役所
- 図書館
- 金融機関
- 警察・消防
- 趣味・娯楽施設
- 公園・運動施設
- 周辺の街並み
- 駅
- その他
お問い合せ先
- 株式会社エステート白馬 国分寺店
- お電話でのお問い合わせは
0120-846-898「ホームページを見た」とお問い合わせください - 東京都国分寺市本町4-19-10 ビッググラッド国分寺1F
- 営業時間:9:30~18:30
- 定休日:年中無休
- 免許番号:国土交通大臣免許(6)第5817号
- HOME
- 一戸建てをエリアから探す
- 立川市
- 柏町
- 立川市柏町1丁目 戸建




















