- HOME
- 中古マンションをエリアから探す
- 川口市
- 元郷
- レーベンハイム川口元郷サザンテラス
中古マンション
レーベンハイム川口元郷サザンテラス
情報更新日:2026/04/10 次回更新予定日:2026/04/24
価 格4,190万円(税込)
所在地埼玉県川口市元郷1丁目[周辺地図]
交 通埼玉高速鉄道「川口元郷」駅徒歩9分





◆エステート白馬の5大サポート◆
1.FP相談サポート
社外のファイナンシャルプランナーと資金相談が出来ます。無料で何度でもお気軽に
2.設備保証の延長サービス
新築住宅は2年、中古住宅は半年の設備修理サービスを無料で付帯しています
3.注文住宅「白馬の家」
高気密・高断熱のフルオーダー住宅「白馬の家」のご提案もできます。ご興味のある土地にプランを作るのもお任せください
4.見学時、建築士同行サービス
見学に建築士が同行し、目視検査やリフォーム費用をお伝えするなどの無料サービスを行っています
5.ご売却不動産の買取保証
一定期間で不動産売却ができなかった場合、予め定めた金額で弊社が買取いたします
1.FP相談サポート
社外のファイナンシャルプランナーと資金相談が出来ます。無料で何度でもお気軽に
2.設備保証の延長サービス
新築住宅は2年、中古住宅は半年の設備修理サービスを無料で付帯しています
3.注文住宅「白馬の家」
高気密・高断熱のフルオーダー住宅「白馬の家」のご提案もできます。ご興味のある土地にプランを作るのもお任せください
4.見学時、建築士同行サービス
見学に建築士が同行し、目視検査やリフォーム費用をお伝えするなどの無料サービスを行っています
5.ご売却不動産の買取保証
一定期間で不動産売却ができなかった場合、予め定めた金額で弊社が買取いたします
物件詳細情報
物件No.20000434388
| 所在地 | 埼玉県川口市元郷1丁目 | ||
|---|---|---|---|
| 交通 | 埼玉高速鉄道「川口元郷」駅徒歩9分 京浜東北・根岸線「川口」駅徒歩23分 埼玉高速鉄道「南鳩ヶ谷」駅徒歩27分 |
||
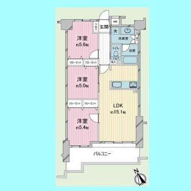
| 間取 | 3LDK (LDK15.1帖、洋室5.6帖、洋室5.4帖、洋室5.0帖) | ||
| 専有面積 | 68.59m² (壁芯) | ||
| バルコニー面積 | 13m² 南西向き | ||
| 販売戸数 | 1戸 | 総戸数 | 全46戸 |
| 構造・規模 | 鉄筋コンクリート造 8階建て 8階部分 |
築年・入居 | 2002年7月築 |
| 現況 | 空室 | 引渡時期 | 即引渡可 |
| 権利種類 | 所有権 | 管理費 | 9,500円/月 |
| 修繕積立金 | 11,800円/月 | 管理形態 | 日勤 全部委託 |
| 駐輪場料金 | 500円/月 | ペット | 可 |
| 町会費 | 3,600円/年 | 取引態様 | 媒介 |
| リフォーム |
|
||
| 設備 | 都市ガス | ||
| 備考・制限等 | ペット飼育可(犬または猫どちらか1頭まで・体長50cm以内・体重10kg以内) | ||
こだわり項目
LDK15帖以上南向き最上階リフォーム済み全居室収納浄水器ガスコンロシステムキッチンカウンターキッチン3口以上コンロ温水洗浄便座シャワー付洗面台浴室乾燥機浴室暖房追焚機能オートバス室内洗濯機置き場洗濯機置き場TVモニタ付インターホンエレベーター駐輪場小学校800m以内コンビニ400m以内公園800m以内
- ※価格は物件の代金総額を表示しており、消費税が課税される場合は税込み価格です。(1,000円未満は切り上げ。)
税率は引き渡し時期により異なりますので、各物件の詳細につきましてはお問い合わせください。 - ※敷地権利が借地権のものは価格に権利金を含みます。
- ※制作中に内容が変更される場合もありますので、あらかじめご了承ください。
- ※購入の前には物件内容や契約条件についてご自身で十分な確認をしていただくようにお願いいたします。
- ※完成予想図はいずれも外構、植栽、外観等実際のものとは多少異なることがあります。
- ※CG合成の画像の場合、実際とは多少異なる場合があります。
周辺地図
周辺施設一覧
- ショッピングセンター
- スーパー
- コンビニ
- ドラッグストア
- ホームセンター
- 飲食店
- その他店舗
- 商店街
- 大学
- 専門学校
- 高校・高専
- 中学校
- 小学校
- 保育園
- 幼稚園
- 公民館・児童館
- 病院
- 郵便局
- 役所
- 図書館
- 金融機関
- 警察・消防
- 趣味・娯楽施設
- 公園・運動施設
- 周辺の街並み
- 駅
- その他
お問い合せ先
- 株式会社エステート白馬 南浦和店
- お電話でのお問い合わせは
0120-934-879「ホームページを見た」とお問い合わせください - 埼玉県さいたま市南区南浦和2-38-1 北原ビル1F
- 営業時間:9:30~18:30
- 定休日:年中無休
- 免許番号:国土交通大臣免許(6)第5817号
- HOME
- 中古マンションをエリアから探す
- 川口市
- 元郷
- レーベンハイム川口元郷サザンテラス










