- HOME
- 一戸建てをエリアから探す
- 調布市
- 布田
- 調布市布田5丁目 戸建
調布市布田5丁目 戸建
情報更新日:2026/04/16 次回更新予定日:2026/04/30
価 格7,980万円
所在地東京都調布市布田5丁目[周辺地図]
交 通京王線「調布」駅徒歩13分





HAKUBAグループでは、土地や住まいの売買から設計、建築、
医療、介護そして保険や金融、税金対策、資産形成まで
さまざまなスペシャリストが集い、連携してサービス提供をしております。
専門知識や経験をかけあわせることで、お客様ひとりひとりにあった健康的な暮らしをお届けし、
人生が「プラス」の方向に進んでいくお手伝いをさせて頂きます。
すべての画像
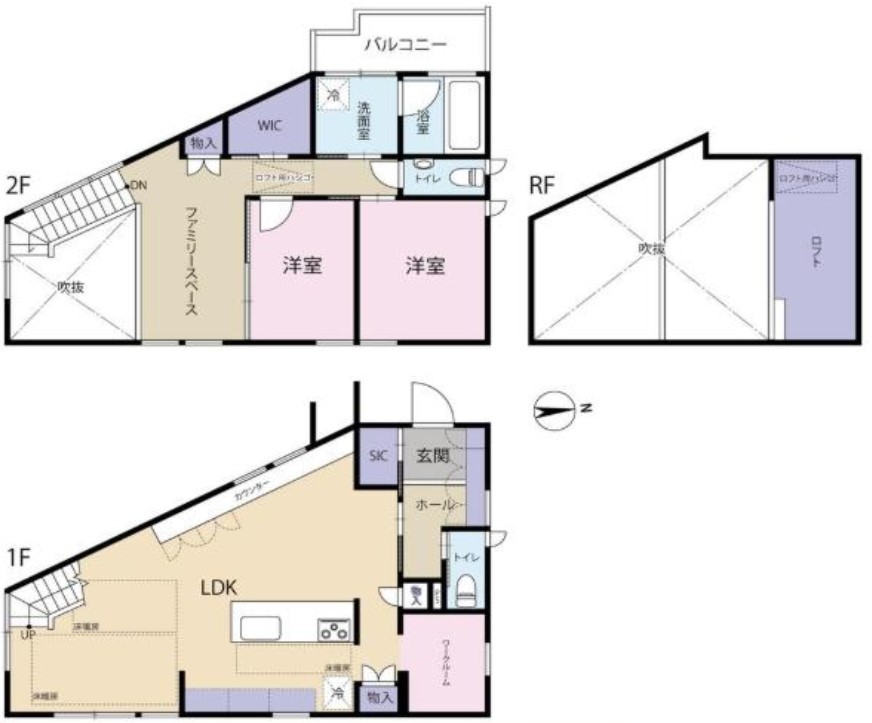
床暖房完備、スケルトン階段のLDK空間は開放的なワンフロアー
現地のご見学予約もスタートしました。周辺で売りに出ている物件も沢山御座います。まとめてご見学ができますのでお気軽にお申しつけください。
2LDKの間取り、3LDKとしても対応可能(別途工事要)
家族が食事するダイニングスペースをキッチンから見渡せる設計に。お料理をしながら家族とのコミュニケーションが増えそうな予感。
回遊性のあるアイランドキッチンを採用、間接照明も効果的に配置されたホテルライクな雰囲気
一日の疲れを癒してくれるゆったりとしたバスルームです。
使いやすいタイプの洗面化粧台のあるランドリースペース
季節の変化や天気の良い日には、バルコニーでの時間が心地よく、気分をリフレッシュさせることができます。
本画像はCGで作成しており、実際に現地に家具は置かれておりません。また、価格に家具は含まれておりません。
安心して暮らすことのできる住宅街。 住宅地の道路は一般に交通量が少なく車などの騒音が少ないため、住民にとって静かな生活環境が提供されます。
周辺の街並みの中で適度な主張、生活に溶け込むシンプルなデザインの外観が魅力の一戸建です。
吹抜けの空間を意識した開放感のあるリビング。
家族の集まるリビングは気持ちの良い自然光が差し込む団欒空間。室内のご見学予約も随時、受付中ですのでお気軽にお問合せください。
実際に室内をご見学頂くと生活のイメージが広がると思います。家具を置いたイメージや窓からの景色など。周辺で販売に出している物件も一緒にまとめてご見学頂き、比較する事もできます。お気軽に担当スタッフまでお申しつけください。
お料理をしながらリビングの家族やゲストとの会話が楽しめるタイプのキッチン。毎日のお料理を楽しく快適に。
アイランドキッチンならではの開放的な見通し、全体が見渡せることでご家族の団欒スペースもより明るく笑顔が溢れる空間となります。
キッチン側とリビング側に分かれてお店間隔でのお食事も可能!! お休みの日には、いろいろな楽しみ方を家族みんなでお楽しみください
毎日の家事をサポートしてくれる食洗器も標準に装備。ちょっと嬉しい設備です
お料理をしながらリビングの家族やゲストとの会話が楽しめるタイプのキッチン。毎日のお料理を楽しく快適に。
タンクレストイレはスッキリ広々空間を演出。 圧迫感のない憩いのスペースです。
トイレにはウォシュレット機能を標準装備。
使いやすいタイプの洗面化粧台のあるランドリースペース
吹抜けの空間を意識した開放感のある間取り。
実際に室内をご見学頂くと生活のイメージが広がると思います。家具を置いたイメージや窓からの景色など。周辺で販売に出している物件も一緒にまとめてご見学頂き、比較する事もできます。お気軽に担当スタッフまでお申しつけください。
視覚的に広がる空間設計が、ゆったりとした時間を育みます
モダンなデザインが、洗練された日常を演出します
本画像はCGで作成しており、実際に現地に家具は置かれておりません。また、価格に家具は含まれておりません。
沢山のお洋服などを収納できそうなウォークインクローゼット。
季節の変化や天気の良い日には、バルコニーでの時間が心地よく、気分をリフレッシュさせることができます。
日々の忙しさやストレスから離れ、バルコニーで静かに深呼吸、心が穏やかになります。
玄関は家の第一印象を左右する重要な場所。ほどよい広さとスタイリッシュな色遣いが印象的です。
使い勝手の良い玄関スペース。明るいデザインと、収納スペースを効果的に配置することで、使い勝手を最大限に引き出しています。
担当スタッフより

- 長谷川 佳行
- 現地ご見学予約スタートしました。他にもインターネットに掲載していない情報も沢山ありますので、まとめてご見学可能です。また、年中無休(年末年始を除く)で営業しております。火曜日水曜日も営業しておりますのでお気軽にお問合せください。
物件詳細情報
物件No.20000434552
| 所在地 | 東京都調布市布田5丁目 | ||
|---|---|---|---|
| 交通 | 京王線「調布」駅徒歩13分 京王線「布田」駅徒歩15分 京王相模原線「京王多摩川」駅徒歩12分 |
||
| 間取 | 2LDK | ||
| 土地面積 | 130.89m² 公簿 (私道517m²別に有、私道持分比率:416128/131500000) | ||
| 建物面積 | 92.99m² 公簿 | ||
| 構造・規模 | 木造 2階建て | 築年月 | 2018年12月築 |
| バルコニー | 西向き | 国土法届出 | 不要 |
| 地目 | 宅地 | 用途地域 | 第一種低層住居専用地域 |
| 建ぺい率 | 40% | 容積率 | 80% |
| 都市計画 | 市街化区域 | 現況 | 空家 |
| 引渡時期 | 相談 | 引渡条件 | 現況渡し |
| 権利種類 | 所有権 | 接道 | 西側5M私道に10.29M接道 |
| 取引態様 | 媒介 | ||
| 設備 | 公営水道、本下水、都市ガス | ||
こだわり項目
- ※価格は物件の代金総額を表示しており、消費税が課税される場合は税込み価格です。(1,000円未満は切り上げ。)
税率は引き渡し時期により異なりますので、各物件の詳細につきましてはお問い合わせください。 - ※敷地権利が借地権のものは価格に権利金を含みます。
- ※制作中に内容が変更される場合もありますので、あらかじめご了承ください。
- ※購入の前には物件内容や契約条件についてご自身で十分な確認をしていただくようにお願いいたします。
- ※完成予想図はいずれも外構、植栽、外観等実際のものとは多少異なることがあります。
- ※CG合成の画像の場合、実際とは多少異なる場合があります。
周辺地図
周辺施設一覧
- ショッピングセンター
- スーパー
- コンビニ
- ドラッグストア
- ホームセンター
- 飲食店
- その他店舗
- 商店街
- 大学
- 専門学校
- 高校・高専
- 中学校
- 小学校
- 保育園
- 幼稚園
- 公民館・児童館
- 病院
- 郵便局
- 役所
- 図書館
- 金融機関
- 警察・消防
- 趣味・娯楽施設
- 公園・運動施設
- 周辺の街並み
- 駅
- その他
お問い合せ先
- 株式会社エステート白馬 国分寺店
- お電話でのお問い合わせは
0120-846-898「ホームページを見た」とお問い合わせください - 東京都国分寺市本町4-19-10 ビッググラッド国分寺1F
- 営業時間:9:30~18:30
- 定休日:年中無休
- 免許番号:国土交通大臣免許(6)第5817号
- HOME
- 一戸建てをエリアから探す
- 調布市
- 布田
- 調布市布田5丁目 戸建





