- HOME
- 一戸建てをエリアから探す
- 狛江市
- 岩戸南
- 狛江市岩戸南1丁目 戸建
中古住宅
狛江市岩戸南1丁目 戸建
情報更新日:2026/04/16 次回更新予定日:2026/04/30
価 格9,990万円
所在地東京都狛江市岩戸南1丁目[周辺地図]
交 通小田急小田原線「狛江」駅徒歩10分





◎こころとカラダに、うれしい暮らし
HAKUBAグループでは、土地や住まいの売買から設計、建築、
医療、介護そして保険や金融、税金対策、資産形成まで
さまざまなスペシャリストが集い、連携してサービス提供をしております。
専門知識や経験をかけあわせることで、お客様ひとりひとりにあった健康的な暮らしをお届けし、
人生が「プラス」の方向に進んでいくお手伝いをさせて頂きます。
HAKUBAグループでは、土地や住まいの売買から設計、建築、
医療、介護そして保険や金融、税金対策、資産形成まで
さまざまなスペシャリストが集い、連携してサービス提供をしております。
専門知識や経験をかけあわせることで、お客様ひとりひとりにあった健康的な暮らしをお届けし、
人生が「プラス」の方向に進んでいくお手伝いをさせて頂きます。
すべての画像
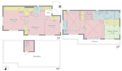
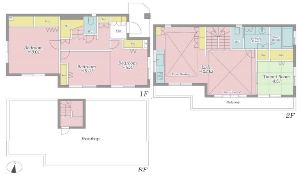
間取り
本画像は、入居者様の家具をCGで消去し、CGで家具を作成しております。実際の現地に家具はなく、価格にも家具は含まれていません。また、現況と異なる可能性がございます。
現地のご見学予約もスタートしました。周辺で売りに出ている物件も沢山御座います。まとめてご見学ができますのでお気軽にお申しつけください。
本画像は入居者様の家具をCGで消した画像であり、現況と異なる可能性がございます。
一日の疲れを癒してくれるゆったりとしたバスルームです。
本画像は入居者様の家具をCGで消した画像であり、現況と異なる可能性がございます。
本画像は入居者様の家具をCGで消した画像であり、現況と異なる可能性がございます。
本画像は、入居者様の家具をCGで消去し、CGで家具を作成しております。実際の現地に家具はなく、価格にも家具は含まれていません。また、現況と異なる可能性がございます。
担当スタッフより

- 長谷川 佳行
- 現地ご見学予約スタートしました。他にもインターネットに掲載していない情報も沢山ありますので、まとめてご見学可能です。また、年中無休(年末年始を除く)で営業しております。火曜日水曜日も営業しておりますのでお気軽にお問合せください。
物件詳細情報
物件No.20000435215
| 所在地 | 東京都狛江市岩戸南1丁目 | ||
|---|---|---|---|
| 交通 | 小田急小田原線「狛江」駅徒歩10分 小田急小田原線「和泉多摩川」駅徒歩14分 小田急小田原線「喜多見」駅徒歩15分 |
||
| 間取 | 3LDK | ||
| 土地面積 | 144.13m² 公簿 | ||
| 建物面積 | 107.99m² 公簿 | ||
| 構造・規模 | 軽量鉄骨造 2階建て | 築年月 | 2011年3月築 |
| バルコニー | 南向き | 国土法届出 | 不要 |
| 地目 | 宅地 | 用途地域 | 第一種低層住居専用地域 |
| 建ぺい率 | 40% | 容積率 | 80% |
| 都市計画 | 市街化区域 | 駐車スペース | 2台可(カースペース) |
| 現況 | 居住中 | 引渡時期 | 相談 |
| 引渡条件 | 現況渡し | 権利種類 | 所有権 |
| 接道 | 北側4M公道に13.6M接道 | 小学校区 | 狛江第三小学校(200m) |
| 中学校区 | 狛江第二中学校(400m) | 取引態様 | 媒介 |
| 設備 | 公営水道、本下水、都市ガス | ||
こだわり項目
閑静な住宅地LDK15帖以上南向き全室南向き庭全居室収納屋上2面以上バルコニー床暖房システムキッチン3口以上コンロトイレ2ヶ所浴室に窓リビング階段小学校800m以内コンビニ400m以内陽当り良好
- ※価格は物件の代金総額を表示しており、消費税が課税される場合は税込み価格です。(1,000円未満は切り上げ。)
税率は引き渡し時期により異なりますので、各物件の詳細につきましてはお問い合わせください。 - ※敷地権利が借地権のものは価格に権利金を含みます。
- ※制作中に内容が変更される場合もありますので、あらかじめご了承ください。
- ※購入の前には物件内容や契約条件についてご自身で十分な確認をしていただくようにお願いいたします。
- ※完成予想図はいずれも外構、植栽、外観等実際のものとは多少異なることがあります。
- ※CG合成の画像の場合、実際とは多少異なる場合があります。
周辺地図
周辺施設一覧
- ショッピングセンター
- スーパー
- コンビニ
- ドラッグストア
- ホームセンター
- 飲食店
- その他店舗
- 商店街
- 大学
- 専門学校
- 高校・高専
- 中学校
- 小学校
- 保育園
- 幼稚園
- 公民館・児童館
- 病院
- 郵便局
- 役所
- 図書館
- 金融機関
- 警察・消防
- 趣味・娯楽施設
- 公園・運動施設
- 周辺の街並み
- 駅
- その他
お問い合せ先
- 株式会社エステート白馬 国分寺店
- お電話でのお問い合わせは
0120-846-898「ホームページを見た」とお問い合わせください - 東京都国分寺市本町4-19-10 ビッググラッド国分寺1F
- 営業時間:9:30~18:30
- 定休日:年中無休
- 免許番号:国土交通大臣免許(6)第5817号
- HOME
- 一戸建てをエリアから探す
- 狛江市
- 岩戸南
- 狛江市岩戸南1丁目 戸建


