- HOME
- 一戸建てをエリアから探す
- 川口市
- 飯塚
- 川口市飯塚第2 3号棟 全3棟
新築一戸建て
川口市飯塚第2 3号棟 全3棟
情報更新日:2026/04/03 次回更新予定日:2026/04/17
価 格6,090万円(税込)
所在地埼玉県川口市飯塚1丁目[周辺地図]
交 通京浜東北・根岸線「川口」駅徒歩10分





◆エステート白馬の5大サポート◆
1.FP相談サポート
社外のファイナンシャルプランナーと資金相談が出来ます。無料で何度でもお気軽に
2.設備保証の延長サービス
新築住宅は2年、中古住宅は半年の設備修理サービスを無料で付帯しています
3.注文住宅「白馬の家」
高気密・高断熱のフルオーダー住宅「白馬の家」のご提案もできます。ご興味のある土地にプランを作るのもお任せください
4.見学時、建築士同行サービス
見学に建築士が同行し、目視検査やリフォーム費用をお伝えするなどの無料サービスを行っています
5.ご売却不動産の買取保証
一定期間で不動産売却ができなかった場合、予め定めた金額で弊社が買取いたします
1.FP相談サポート
社外のファイナンシャルプランナーと資金相談が出来ます。無料で何度でもお気軽に
2.設備保証の延長サービス
新築住宅は2年、中古住宅は半年の設備修理サービスを無料で付帯しています
3.注文住宅「白馬の家」
高気密・高断熱のフルオーダー住宅「白馬の家」のご提案もできます。ご興味のある土地にプランを作るのもお任せください
4.見学時、建築士同行サービス
見学に建築士が同行し、目視検査やリフォーム費用をお伝えするなどの無料サービスを行っています
5.ご売却不動産の買取保証
一定期間で不動産売却ができなかった場合、予め定めた金額で弊社が買取いたします
- すべて(13)
- 外観・パース(12)
- 内観(0)
- 間取・区画(1)
- その他(0)
- 動画
物件詳細情報
物件No.20000436353
| 所在地 | 埼玉県川口市飯塚1丁目 | ||
|---|---|---|---|
| 交通 | 京浜東北・根岸線「川口」駅徒歩10分 埼玉高速鉄道「川口元郷」駅徒歩22分 京浜東北・根岸線「西川口」駅徒歩30分 |
||
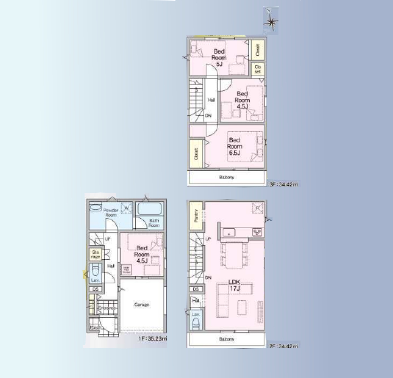
| 間取 | 4LDK (LDK17帖、洋室4.5帖、洋室6.5帖、洋室4.5帖、洋室5帖) | ||
| 土地面積 | 62.15m² 実測 | ||
| 建物面積 | 104.07m² 実測 (建物面積に車庫部分約10.93米含む) | ||
| 販売戸数 | 2戸 | 総戸数 | 全1戸 |
| 構造・規模 | 木造 3階建て | 築年・入居 | 2026年3月上旬 |
| 建築確認番号 | KBI-SGM25-10-4368号 | 引渡時期 | 期日指定有(2026年3月下旬) |
| 施工会社 | アーネストワン | 国土法届出 | 不要 |
| 地目 | 宅地 | 用途地域 | 準工業地域 |
| 建ぺい率 | 70% | 容積率 | 200% |
| 都市計画 | 市街化区域 | 権利種類 | 所有権 |
| 接道 | 北側3.3M公道に接道 南側11.3M公道に接道 |
取引態様 | 媒介 |
| 設備 | 公営水道、本下水、都市ガス | ||
| 備考・制限等 | 密集市街地整備法,宅地造成工事規制区域,建蔽率:準防火地域内の準耐火建築物等による 日影規制5h-3h/4m 特別工業地区 建物面積に車庫部分約10.93米含む | ||
こだわり項目
南側道路LDK15帖以上設計住宅性能評価付システムキッチンカウンターキッチントイレ2ヶ所温水洗浄便座シャワー付洗面台浴室乾燥機リビング階段TVモニタ付インターホンビルトガレージ
- ※価格は物件の代金総額を表示しており、消費税が課税される場合は税込み価格です。(1,000円未満は切り上げ。)
税率は引き渡し時期により異なりますので、各物件の詳細につきましてはお問い合わせください。 - ※敷地権利が借地権のものは価格に権利金を含みます。
- ※制作中に内容が変更される場合もありますので、あらかじめご了承ください。
- ※購入の前には物件内容や契約条件についてご自身で十分な確認をしていただくようにお願いいたします。
- ※完成予想図はいずれも外構、植栽、外観等実際のものとは多少異なることがあります。
- ※CG合成の画像の場合、実際とは多少異なる場合があります。
周辺地図
周辺施設一覧
- ショッピングセンター
- スーパー
- コンビニ
- ドラッグストア
- ホームセンター
- 飲食店
- その他店舗
- 商店街
- 大学
- 専門学校
- 高校・高専
- 中学校
- 小学校
- 保育園
- 幼稚園
- 公民館・児童館
- 病院
- 郵便局
- 役所
- 図書館
- 金融機関
- 警察・消防
- 趣味・娯楽施設
- 公園・運動施設
- 周辺の街並み
- 駅
- その他
お問い合せ先
- 株式会社エステート白馬 南浦和店
- お電話でのお問い合わせは
0120-934-879「ホームページを見た」とお問い合わせください - 埼玉県さいたま市南区南浦和2-38-1 北原ビル1F
- 営業時間:9:30~18:30
- 定休日:年中無休
- 免許番号:国土交通大臣免許(6)第5817号
- HOME
- 一戸建てをエリアから探す
- 川口市
- 飯塚
- 川口市飯塚第2 3号棟 全3棟









