- HOME
- 一戸建てをエリアから探す
- 西東京市
- 新町
- 西東京市新町五丁目 戸建
西東京市新町五丁目 戸建
情報更新日:2026/05/29 次回更新予定日:2026/06/12
価 格4,599万円(税込)
所在地東京都西東京市新町5丁目[周辺地図]
交 通西武新宿線「田無」駅徒歩23分






シンプルスタイリッシュなホワイト調の外壁です。ご見学予約スタートしました。
すべての画像
約16帖のLDKスペース。床暖房もあり足元から暖かい空間に。
3層の空間を意識した都市型住宅。室内のご見学予約スタートしました。
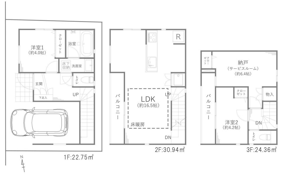
間取り図
キッチンにはアクセントクロス。お洒落な雰囲気のスペースに。
植栽もあり明るい雰囲気の玄関まわり
毎日の家事をサポートしてくれる食洗器も標準に装備。ちょっと嬉しい設備です
使いやすいタイプの洗面化粧台のあるランドリースペース
勾配天井の2階のお部屋。この勾配の角度がお洒落な雰囲気を感じさせてくれます。
バルコニースペース
一日の疲れを癒してくれるゆったりとしたバスルームです。
トイレにはウォシュレット機能を標準装備。
広々としたキッチンスペース
窓も多く明るい雰囲気のダイニングスペース
お料理をしながらリビングの家族やゲストとの会話が楽しめるカウンタータイプのキッチン。毎日のお料理を楽しく快適に。
家族が一番集まる場所だから広々としつつも素敵な空間であって欲しい。みんながくつろぐリビングからキッチンまでが一つの空間のように繋がる間取り。
その他
周辺のエリアで他にも沢山売りに出ている物件があります。インターネット掲載前の情報などもありますのでお気軽にお問合せください。まとめてご見学できます。
シンプルなホワイト調の外壁です
白の外壁にダーク系の玄関ドアが素敵なコントラストに
周辺のエリアで他にも沢山売りに出ている物件があります。インターネット掲載前の情報などもありますのでお気軽にお問合せください。まとめてご見学できます。
周辺のエリアで他にも沢山売りに出ている物件があります。インターネット掲載前の情報などもありますのでお気軽にお問合せください。まとめてご見学できます。
ビルトインガレージタイプのカースペース
室内のご見学予約スタートしました。
その他
担当スタッフより

- 加藤義平
- 現地ご見学予約スタートしました。他にもインターネットに掲載していない情報も沢山ありますので、まとめてご見学可能です。また、年中無休(年末年始を除く)で営業しております。火曜日水曜日も営業しておりますのでお気軽にお問合せください。
物件詳細情報
物件No.20000436995
| 所在地 | 東京都西東京市新町5丁目 | ||
|---|---|---|---|
| 交通 | 西武新宿線「田無」駅徒歩23分 中央線「武蔵境」駅徒歩28分 中央線「東小金井」駅徒歩29分 |
||
| 間取 | 2SLDK | ||
| 土地面積 | 51.63m² 公簿 | ||
| 建物面積 | 78.05m² 公簿 | ||
| 構造・規模 | 木造 3階建て | 築年月 | 2016年9月築 |
| バルコニー | 南西向き | 国土法届出 | 不要 |
| 地目 | 宅地 | 用途地域 | 第一種中高層住居専用地域 |
| 建ぺい率 | 60% | 容積率 | 200% |
| 都市計画 | 市街化区域 | 駐車スペース | 1台(車庫) |
| 現況 | 空家 | 引渡時期 | 相談 |
| 権利種類 | 所有権 | 接道 | 西側7M公道に8.4M接道 |
| 取引態様 | 媒介 | ||
| リフォーム |
|
||
| 設備 | 公営水道、本下水、都市ガス | ||
こだわり項目
- ※価格は物件の代金総額を表示しており、消費税が課税される場合は税込み価格です。(1,000円未満は切り上げ。)
税率は引き渡し時期により異なりますので、各物件の詳細につきましてはお問い合わせください。 - ※敷地権利が借地権のものは価格に権利金を含みます。
- ※制作中に内容が変更される場合もありますので、あらかじめご了承ください。
- ※購入の前には物件内容や契約条件についてご自身で十分な確認をしていただくようにお願いいたします。
- ※完成予想図はいずれも外構、植栽、外観等実際のものとは多少異なることがあります。
- ※CG合成の画像の場合、実際とは多少異なる場合があります。
周辺地図
周辺施設一覧
- ショッピングセンター
- スーパー
- コンビニ
- ドラッグストア
- ホームセンター
- 飲食店
- その他店舗
- 商店街
- 大学
- 専門学校
- 高校・高専
- 中学校
- 小学校
- 保育園
- 幼稚園
- 公民館・児童館
- 病院
- 郵便局
- 役所
- 図書館
- 金融機関
- 警察・消防
- 趣味・娯楽施設
- 公園・運動施設
- 周辺の街並み
- 駅
- その他
お問い合せ先
- 株式会社エステート白馬 国分寺店
- お電話でのお問い合わせは
0120-846-898「ホームページを見た」とお問い合わせください - 東京都国分寺市本町4-19-10 ビッググラッド国分寺1F
- 営業時間:9:30~18:30
- 定休日:年中無休
- 免許番号:国土交通大臣免許(6)第5817号
- HOME
- 一戸建てをエリアから探す
- 西東京市
- 新町
- 西東京市新町五丁目 戸建




















