- HOME
- 一戸建てをエリアから探す
- 久喜市
- 青毛
- 久喜市青毛3丁目 第3
新築一戸建て
久喜市青毛3丁目 第3
情報更新日:2026/04/17 次回更新予定日:2026/05/01 取引条件有効期限:2026/05/01
所在地埼玉県久喜市青毛3丁目[周辺地図]
交 通東武日光線「幸手」駅徒歩18分


埼玉・東京に全7店舗、白馬グループで年間10,000人以上の方にご利用頂いています。
ご購入・ご売却から建築・リフォーム・資金計画のプロが、より良いご提案をいたします。
ご購入・ご売却から建築・リフォーム・資金計画のプロが、より良いご提案をいたします。
担当スタッフより

- 吉岡 輝久
- ~人気のリモート見学・リモート相談サービス~
・小さいお子様や家事で外出できない、天気が悪く外出したくない時
・LINEやZOOMなど無料のアプリですぐにご利用いただけます
・リモート見学はスタッフがご興味ある物件の現地から映像をお届けします
・写真では伝わりにくい「空気感」や違うアングルからみたかったリビングの「見え方」などもしっかり確認できます
・リモート相談は第三者による住宅ローンや家計相談を専門のファイナンシャルプランナーと1対1で
・バーチャル背景でプライバシーも安心
・忙しいパートナーに変わって予め確認も
・別々の場所から家族みんなで参加もできます
・お気軽にご相談下さい
~営業時間~
9:30~18:30
こちらのお時間でしたらお電話でのお問合せがスムーズです
お気軽にお問合せください
各棟情報
物件詳細情報
物件No.20000438368
| 所在地 | 埼玉県久喜市青毛3丁目 | ||
|---|---|---|---|
| 交通 | 東武日光線「幸手」駅徒歩18分 宇都宮線「久喜」駅徒歩35分 湘南新宿ライン宇須「東鷲宮」駅徒歩48分 |
||
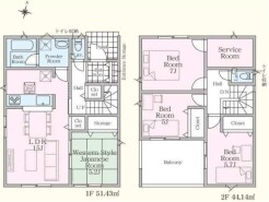
| 間取 | 4LDK~4SLDK | ||
| 土地面積 | 149.19m² ~ 149.21m² 実測 | ||
| 建物面積 | 95.57m² ~ 95.57m² 実測 | ||
| 販売戸数 | 2戸 | 総戸数 | 全3戸 |
| 構造・規模 | 木造 2階建て | 築年・入居 | 2026年5月 |
| 建築確認番号 | 第KBI-SGM25-10-4860号、他 | 駐車スペース | あり(カースペース) |
| 引渡時期 | 期日指定有(2026年5月下旬) | 地目 | 宅地 |
| 用途地域 | 第一種低層住居専用地域 | 建ぺい率 | 50% |
| 容積率 | 100% | 都市計画 | 市街化区域 |
| 権利種類 | 所有権 | 接道 | 北側5.9M公道に8.5M接道 |
| 小学校区 | 久喜市立青毛小学校(727m) | 中学校区 | 久喜市立久喜東中学校(579m) |
| 取引態様 | 媒介 | ||
| 設備 | 公営水道、本下水、都市ガス | ||
| 備考・制限等 | 道路斜線制限 北側斜線制限 日影規制有 高さ制限10m 外壁後退制限1m以上 敷地面積制限最低限度120平米 景観法 | ||
こだわり項目
整形地平坦地閑静な住宅地LDK15帖以上床下収納全居室収納複層ガラス浄水器省エネ給湯器システムキッチンカウンターキッチン3口以上コンロトイレ2ヶ所温水洗浄便座シャワー付洗面台浴室乾燥機浴室暖房追焚機能浴室1坪以上浴室に窓TVモニタ付インターホン防犯カメラ24時間換気システム小学校800m以内スーパー400m以内コンビニ400m以内陽当り良好フラット35Sに対応フラット35・S適合証明書
- ※価格は物件の代金総額を表示しており、消費税が課税される場合は税込み価格です。(1,000円未満は切り上げ。)
税率は引き渡し時期により異なりますので、各物件の詳細につきましてはお問い合わせください。 - ※敷地権利が借地権のものは価格に権利金を含みます。
- ※制作中に内容が変更される場合もありますので、あらかじめご了承ください。
- ※購入の前には物件内容や契約条件についてご自身で十分な確認をしていただくようにお願いいたします。
- ※完成予想図はいずれも外構、植栽、外観等実際のものとは多少異なることがあります。
- ※CG合成の画像の場合、実際とは多少異なる場合があります。
周辺地図
周辺施設一覧
- ショッピングセンター
- スーパー
- コンビニ
- ドラッグストア
- ホームセンター
- 飲食店
- その他店舗
- 商店街
- 大学
- 専門学校
- 高校・高専
- 中学校
- 小学校
- 保育園
- 幼稚園
- 公民館・児童館
- 病院
- 郵便局
- 役所
- 図書館
- 金融機関
- 警察・消防
- 趣味・娯楽施設
- 公園・運動施設
- 周辺の街並み
- 駅
- その他
お問い合せ先
- 株式会社エステート白馬 東大宮店
- お電話でのお問い合わせは
0120-953-325「ホームページを見た」とお問い合わせください - 埼玉県さいたま市見沼区東大宮5-31-9 NYビル1F
- 営業時間:9:00~20:00
- 定休日:年中無休
- 免許番号:国土交通大臣免許(6)第5817号
- HOME
- 一戸建てをエリアから探す
- 久喜市
- 青毛
- 久喜市青毛3丁目 第3












