- HOME
- 一戸建てをエリアから探す
- 西東京市
- 北町
- 1号棟 西東京市北町5丁目(保谷第22期)全15棟
新築一戸建て
1号棟 西東京市北町5丁目(保谷第22期)全15棟
情報更新日:2026/04/14 次回更新予定日:2026/04/28
所在地東京都西東京市北町5丁目[周辺地図]
交 通西武池袋線「保谷」駅徒歩16分


・家事のしやすい食洗機付きのキッチン
・電気自動車用200V電源あります
・固定階段で昇降できるグルニエあります
・電気自動車用200V電源あります
・固定階段で昇降できるグルニエあります
担当スタッフより
- 物件担当より
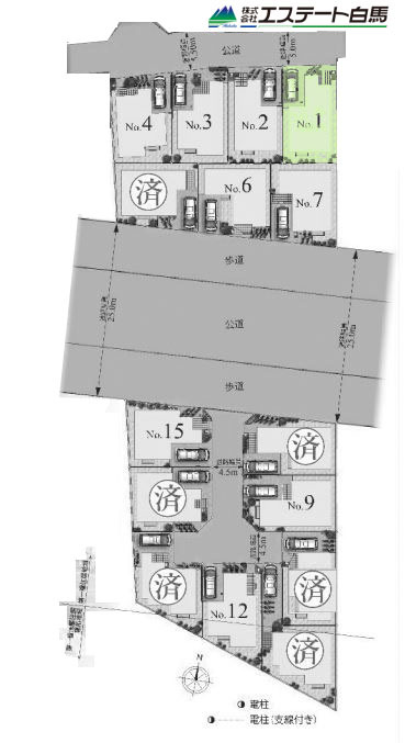
- 全15棟の分譲地です、太陽光発電と蓄電池のある家、公園や幼稚園が800m以内(徒歩約10分以内)にあり子育てしやすい住環境、始発の保谷駅利用で通期通学便利です、お気軽にお問い合わせ下さい、
各棟情報
物件詳細情報
物件No.20000440015-001
| 所在地 | 東京都西東京市北町5丁目 | ||
|---|---|---|---|
| 交通 | 西武池袋線「保谷」駅徒歩16分 西武池袋線「ひばりヶ丘」駅徒歩24分 西武池袋線「大泉学園」駅徒歩33分 |
||
| 間取 | 3LDK | ||
| 土地面積 | 107.97m² 実測 | ||
| 建物面積 | 101.42m² 実測 | ||
| 販売戸数 | 4戸 | 総戸数 | 全15戸 |
| 構造・規模 | 木造 2階建て | 築年・入居 | 2026年2月 |
| 建物現況 | 完成済 | 建築確認番号 | 第R07SHC110946号 |
| 駐車スペース | 1台(カースペース) | 引渡時期 | 即引渡可 |
| 国土法届出 | 不要 | 地目 | 宅地 |
| 用途地域 | 第一種住居地域 | 建ぺい率 | 60% |
| 容積率 | 200% | 都市計画 | 市街化区域 |
| 権利種類 | 所有権 | 接道 | 北側5M公道に接道 |
| 取引態様 | 媒介 | ||
| 設備 | 公営水道、本下水、都市ガス | ||
| その他制限事項 | 高度地区、準防火地域 | ||
| 備考・制限等 | 開発許可番号:6多建開二開第152号 新東京所沢線北町五丁目周辺地区地区計画、太陽光発電諸条件あり(エネカリ契約、月額利用料あり)、準防火地域、第1種高度地区、第2種高度地区 | ||
こだわり項目
区画整理及び分譲地整形地平坦地閑静な住宅地LDK15帖以上耐震構造全室2面採光床下収納全居室収納小屋裏収納複層ガラス食器洗浄機浄水器省エネ給湯器ガスコンロシステムキッチンカウンターキッチン3口以上コンロパントリー(食器・食品の収納庫)トイレ2ヶ所温水洗浄便座シャワー付洗面台浴室乾燥機浴室暖房追焚機能浴室1坪以上浴室に窓全居室フローリングリビング階段TVモニタ付インターホン太陽光発電システムEV車充電設備24時間換気システム保育園・幼稚園800m以内公園800m以内フラット35Sに対応
- ※価格は物件の代金総額を表示しており、消費税が課税される場合は税込み価格です。(1,000円未満は切り上げ。)
税率は引き渡し時期により異なりますので、各物件の詳細につきましてはお問い合わせください。 - ※敷地権利が借地権のものは価格に権利金を含みます。
- ※制作中に内容が変更される場合もありますので、あらかじめご了承ください。
- ※購入の前には物件内容や契約条件についてご自身で十分な確認をしていただくようにお願いいたします。
- ※完成予想図はいずれも外構、植栽、外観等実際のものとは多少異なることがあります。
- ※CG合成の画像の場合、実際とは多少異なる場合があります。
周辺地図
周辺施設一覧
- ショッピングセンター
- スーパー
- コンビニ
- ドラッグストア
- ホームセンター
- 飲食店
- その他店舗
- 商店街
- 大学
- 専門学校
- 高校・高専
- 中学校
- 小学校
- 保育園
- 幼稚園
- 公民館・児童館
- 病院
- 郵便局
- 役所
- 図書館
- 金融機関
- 警察・消防
- 趣味・娯楽施設
- 公園・運動施設
- 周辺の街並み
- 駅
- その他
お問い合せ先
- 株式会社エステート白馬 所沢店
- お電話でのお問い合わせは
0120-417-898「ホームページを見た」とお問い合わせください - 埼玉県所沢市東住吉12-21 白馬ビルディング
- 営業時間:9:00~18:30
- 定休日:年中無休
- 免許番号:国土交通大臣免許(6)第5817号
- HOME
- 一戸建てをエリアから探す
- 西東京市
- 北町
- 1号棟 西東京市北町5丁目(保谷第22期)全15棟






