- HOME
- 一戸建てをエリアから探す
- 狭山市
- 中央
- 狭山市中央第8全3棟 新築戸建
狭山市中央第8全3棟 新築戸建
情報更新日:2026/04/13 次回更新予定日:2026/04/27 取引条件有効期限:2026/04/27
所在地埼玉県狭山市中央2丁目[周辺地図]
交 通西武新宿線「狭山市」駅徒歩23分





- すべて(24)
- 外観・パース(17)
- 内観(0)
- 間取・区画(6)
- その他(0)
- 動画
すべての画像
1号棟 商業施設が徒歩圏内に充実、日々のお買い物も安心な環境です。
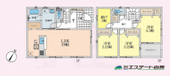
1号棟 間取り図
1号棟 区画図
1号棟 五感で感じる、現地でしかわからない事も沢山ございます。周辺環境なども一緒にご案内いたしますのでお気軽にお問合せください。
1号棟 戸建てが立ち並ぶ静かな住宅街。四季折々の移り変わりを感じながら自然と楽しみ、暮らす、そんな毎日を日々の中で感じられる住環境
1号棟 6m幅員の道路に面しておりお車の運転が苦手な方でも安心して出入りいただけます。
1号棟 当日ご案内可能です!物件だけでなく、周辺の環境や他にご希望の物件もまとめてご案内可能です。
2号棟 戸建てが立ち並ぶ静かな住宅街。四季折々の移り変わりを感じながら自然と楽しみ、暮らす、そんな毎日を日々の中で感じられる住環境
2号棟 間取り図
2号棟 区画図
2号棟 五感で感じる、現地でしかわからない事も沢山ございます。周辺環境なども一緒にご案内いたしますのでお気軽にお問合せください。
2号棟 カースペースは1台駐車できます。車庫の出し入れのしやすさなど、実際に現地にてご確認ください。
2号棟 当日ご案内可能です!物件だけでなく、周辺の環境や他にご希望の物件もまとめてご案内可能です。
2号棟 商業施設が徒歩圏内に充実、日々のお買い物も安心な環境です。
2号棟 南道路に面しており日中もたくさんの陽が入ります。風通りや周辺環境など実際に現地にてご確認ください。
3号棟 南道路に面しており日中もたくさんの陽が入ります。風通りや周辺環境など実際に現地にてご確認ください。
3号棟 間取り図
3号棟 区画図
3号棟 五感で感じる、現地でしかわからない事も沢山ございます。周辺環境なども一緒にご案内いたしますのでお気軽にお問合せください。
3号棟 商業施設が徒歩圏内に充実、日々のお買い物も安心な環境です。
3号棟 五感で感じる、現地でしかわからない事も沢山ございます。周辺環境なども一緒にご案内いたしますのでお気軽にお問合せください。
3号棟 当日ご案内可能です!物件だけでなく、周辺の環境や他にご希望の物件もまとめてご案内可能です。
3号棟 戸建てが立ち並ぶ静かな住宅街。四季折々の移り変わりを感じながら自然と楽しみ、暮らす、そんな毎日を日々の中で感じられる住環境
省エネ性能ラベル
販売住戸が複数の場合、本ラベルは特定の住戸の性能を示すものであり、全ての住戸の性能を示すものではありません。
担当スタッフより

- 山崎華
- 開放感のあるルーフバルコニー、建物の揺れを吸収する家、安心の防犯カメラ搭載、セブンイレブンまで徒歩約1分(60m)、お気軽にお問い合わせ下さい
各棟情報
物件詳細情報
物件No.20000440382
| 所在地 | 埼玉県狭山市中央2丁目 | ||
|---|---|---|---|
| 交通 | 西武新宿線「狭山市」駅徒歩23分 西武新宿線「新狭山」駅徒歩28分 西武新宿線「入曽」駅徒歩38分 |
||
| 間取 | 3SLDK~4LDK | ||
| 土地面積 | 114.56m² ~ 153.26m² 実測 (協定部分(路地状部分)を含む) | ||
| 建物面積 | 93.15m² ~ 95.58m² 実測 (バルコニー面積を除く) | ||
| 販売戸数 | 3戸 | 総戸数 | 全3戸 |
| 構造・規模 | 木造 2階建て | 築年・入居 | 2026年4月 |
| 建物現況 | 建築中 | 建築確認番号 | 第KBI-SGM25-10-5441号、他 |
| 駐車スペース | 1台(カースペース) | 引渡時期 | 期日指定有(2026年4月) |
| 施工会社 | 株式会社アーネストワン | 国土法届出 | 不要 |
| 地目 | 宅地 | 用途地域 | 第二種住居地域 |
| 建ぺい率 | 60% | 容積率 | 200% |
| 都市計画 | 市街化区域 | 権利種類 | 所有権 |
| 接道 | 東側5M公道に接道 南側16M公道に接道 |
小学校区 | 富士見小学校(1300m) |
| 中学校区 | 狭山台中学校(910m) | 取引態様 | 媒介 |
| 設備 | 公営水道、本下水、都市ガス | ||
| 省エネ性能表示 | エネルギー消費性能:★★★~★★★ 断熱性能:5段階~5段階 |
||
| その他制限事項 | 景観法、航空法、不整形地 | ||
| 備考・制限等 | 法22条区域 景観法 航空法 宅地造成及び特定盛土等規制法 不整形地(2・3号棟) | ||
こだわり項目
- ※価格は物件の代金総額を表示しており、消費税が課税される場合は税込み価格です。(1,000円未満は切り上げ。)
税率は引き渡し時期により異なりますので、各物件の詳細につきましてはお問い合わせください。 - ※敷地権利が借地権のものは価格に権利金を含みます。
- ※制作中に内容が変更される場合もありますので、あらかじめご了承ください。
- ※購入の前には物件内容や契約条件についてご自身で十分な確認をしていただくようにお願いいたします。
- ※完成予想図はいずれも外構、植栽、外観等実際のものとは多少異なることがあります。
- ※CG合成の画像の場合、実際とは多少異なる場合があります。
周辺地図
周辺施設一覧
- ショッピングセンター
- スーパー
- コンビニ
- ドラッグストア
- ホームセンター
- 飲食店
- その他店舗
- 商店街
- 大学
- 専門学校
- 高校・高専
- 中学校
- 小学校
- 保育園
- 幼稚園
- 公民館・児童館
- 病院
- 郵便局
- 役所
- 図書館
- 金融機関
- 警察・消防
- 趣味・娯楽施設
- 公園・運動施設
- 周辺の街並み
- 駅
- その他
お問い合せ先
- 株式会社エステート白馬 所沢店
- お電話でのお問い合わせは
0120-417-898「ホームページを見た」とお問い合わせください - 埼玉県所沢市東住吉12-21 白馬ビルディング
- 営業時間:9:00~18:30
- 定休日:年中無休
- 免許番号:国土交通大臣免許(6)第5817号
- HOME
- 一戸建てをエリアから探す
- 狭山市
- 中央
- 狭山市中央第8全3棟 新築戸建










