- HOME
- 一戸建てをエリアから探す
- 東久留米市
- 小山
- 東久留米市小山5丁目 戸建 3号棟
新築一戸建て
東久留米市小山5丁目 戸建 3号棟
情報更新日:2026/04/23 次回更新予定日:2026/05/07
価 格6,080万円(税込)
所在地東京都東久留米市小山5丁目[周辺地図]
交 通西武池袋線「清瀬」駅徒歩12分





◎こころとカラダに、うれしい暮らし
HAKUBAグループでは、土地や住まいの売買から設計、建築、
医療、介護そして保険や金融、税金対策、資産形成まで
さまざまなスペシャリストが集い、連携してサービス提供をしております。
専門知識や経験をかけあわせることで、お客様ひとりひとりにあった健康的な暮らしをお届けし、
人生が「プラス」の方向に進んでいくお手伝いをさせて頂きます。
HAKUBAグループでは、土地や住まいの売買から設計、建築、
医療、介護そして保険や金融、税金対策、資産形成まで
さまざまなスペシャリストが集い、連携してサービス提供をしております。
専門知識や経験をかけあわせることで、お客様ひとりひとりにあった健康的な暮らしをお届けし、
人生が「プラス」の方向に進んでいくお手伝いをさせて頂きます。
すべての画像
現地のご見学予約もスタートしました。周辺で売りに出ている物件も沢山御座います。まとめてご見学ができますのでお気軽にお申しつけください。
周辺のエリアで他にも沢山売りに出ている物件があります。インターネット掲載前の情報などもありますのでお気軽にお問合せください。まとめてご見学できます。
周辺の街並みの中で適度な主張、生活に溶け込むシンプルなデザインの外観が魅力の一戸建です。
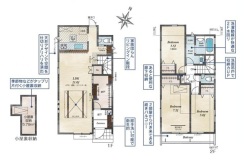
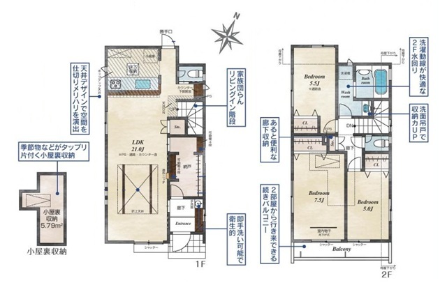
間取り
全体区画図
この街を選ぶ理由や想像している生活のイメージを担当者と共有してもらえると嬉しいです。 今後の暮らしがどのようなものになるか、その想像が現実になるためのステップを一緒に考えましょう。
周辺のエリアで他にも沢山売りに出ている物件があります。インターネット掲載前の情報などもありますのでお気軽にお問合せください。まとめてご見学できます。
現地のご見学予約もスタートしました。周辺で売りに出ている物件も沢山御座います。まとめてご見学ができますのでお気軽にお申しつけください。
担当スタッフより

- 吉田 勇人
- 現地のご見学予約スタートしました。当日のご見学予約も大歓迎です。モデルハウスのご見学も可能です。他にもインターネットに掲載していない情報も沢山ありますので、まとめてご見学可能です。また、年中無休(年末年始を除く)で営業しております。火曜日水曜日も営業しておりますのでお気軽にお問合せください。
物件詳細情報
物件No.20000440948
| 所在地 | 東京都東久留米市小山5丁目 | ||
|---|---|---|---|
| 交通 | 西武池袋線「清瀬」駅徒歩12分 | ||
| 間取 | 3SLDK | ||
| 土地面積 | 123.46m² 実測 | ||
| 建物面積 | 95.63m² 実測 | ||
| 販売戸数 | 1戸 | 総戸数 | 全5戸 |
| 構造・規模 | 木造 2階建て | 築年・入居 | 2026年4月上旬 |
| バルコニー | 南東向き | 建物現況 | 建築中 |
| 建築確認番号 | 第R07SHC125532号 | 駐車スペース | 2台可(カースペース:並列) |
| 引渡時期 | 期日指定有(2026年5月上旬) | 国土法届出 | 不要 |
| 地目 | 宅地 | 用途地域 | 第一種中高層住居専用地域 |
| 建ぺい率 | 40% | 容積率 | 100% |
| 都市計画 | 市街化区域 | 権利種類 | 所有権 |
| 接道 | 南東側5M公道に接道 | 小学校区 | 小山小学校(72m) |
| 中学校区 | 久留米中学校(606m) | 取引態様 | 媒介 |
| 設備 | 公営水道、本下水、都市ガス | ||
| 省エネ性能表示 | 再エネ設備:あり エネルギー消費性能:★★★★★★ 断熱性能:5段階 |
||
こだわり項目
LDK15帖以上耐震構造制震構造省エネ・エコ住宅BELS/省エネ基準適合(認定書あり)長期優良住宅全室2面採光床下収納全居室収納小屋裏収納複層ガラス設計住宅性能評価付建設住宅性能評価付(新築時)食器洗浄機浄水器省エネ給湯器システムキッチンカウンターキッチン3口以上コンロトイレ2ヶ所温水洗浄便座節水型トイレシャワー付洗面台浴室乾燥機浴室に窓全居室フローリングリビング階段TVモニタ付インターホン太陽光発電システム24時間換気システム小学校800m以内保育園・幼稚園800m以内コンビニ400m以内公園800m以内陽当り良好
- ※価格は物件の代金総額を表示しており、消費税が課税される場合は税込み価格です。(1,000円未満は切り上げ。)
税率は引き渡し時期により異なりますので、各物件の詳細につきましてはお問い合わせください。 - ※敷地権利が借地権のものは価格に権利金を含みます。
- ※制作中に内容が変更される場合もありますので、あらかじめご了承ください。
- ※購入の前には物件内容や契約条件についてご自身で十分な確認をしていただくようにお願いいたします。
- ※完成予想図はいずれも外構、植栽、外観等実際のものとは多少異なることがあります。
- ※CG合成の画像の場合、実際とは多少異なる場合があります。
周辺地図
周辺施設一覧
- ショッピングセンター
- スーパー
- コンビニ
- ドラッグストア
- ホームセンター
- 飲食店
- その他店舗
- 商店街
- 大学
- 専門学校
- 高校・高専
- 中学校
- 小学校
- 保育園
- 幼稚園
- 公民館・児童館
- 病院
- 郵便局
- 役所
- 図書館
- 金融機関
- 警察・消防
- 趣味・娯楽施設
- 公園・運動施設
- 周辺の街並み
- 駅
- その他
お問い合せ先
- 株式会社エステート白馬 国分寺店
- お電話でのお問い合わせは
0120-846-898「ホームページを見た」とお問い合わせください - 東京都国分寺市本町4-19-10 ビッググラッド国分寺1F
- 営業時間:9:30~18:30
- 定休日:年中無休
- 免許番号:国土交通大臣免許(6)第5817号
- HOME
- 一戸建てをエリアから探す
- 東久留米市
- 小山
- 東久留米市小山5丁目 戸建 3号棟






