- HOME
- 一戸建てをエリアから探す
- 小平市
- 大沼町
- 小平市大沼町4丁目 新築戸建
小平市大沼町4丁目 新築戸建
情報更新日:2026/04/17 次回更新予定日:2026/05/01
価 格5,999万円(税込)
所在地東京都小平市大沼町4丁目[周辺地図]
交 通西武新宿線「小平」駅徒歩23分





すべての画像
現地のご見学予約もスタートしました。周辺で売りに出ている物件も沢山御座います。まとめてご見学ができますのでお気軽にお申しつけください。
周辺のエリアで他にも沢山売りに出ている物件があります。インターネット掲載前の情報などもありますのでお気軽にお問合せください。まとめてご見学できます。
安心して暮らすことのできる住宅街。 住宅地の道路は一般に交通量が少なく車などの騒音が少ないため、住民にとって静かな生活環境が提供されます。
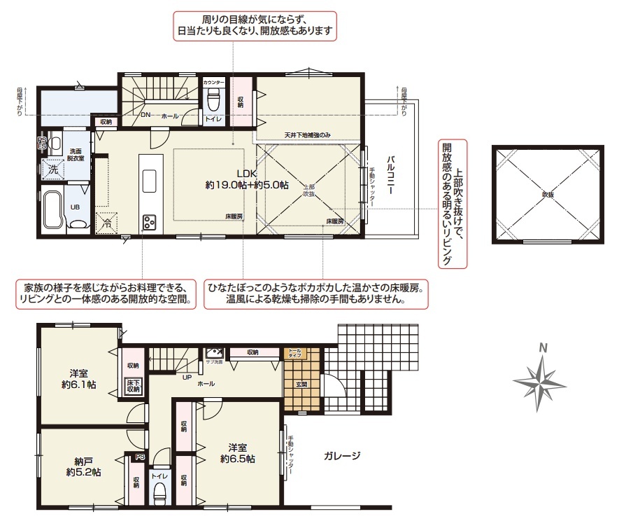
間取図
区画図
現在建物を建築中です、建築中の物件については現地確認の他、同施工会社の完成施工例のご案内、担当者のプレゼンテーションにてご検討ください。適切なご検討の方法をご説明させて頂きます。
建物のモデルハウスのご見学予約もスタートしました。当日のご見学予約も大歓迎ですので、お気軽にお問合せください。
個々の優先事項や好みに基づいて考慮することが重要、 様々なライフスタイル、自分や家族にとってマッチする街並みを選ぶことが大切です。
現地のご見学予約もスタートしました。周辺で売りに出ている物件も沢山御座います。まとめてご見学ができますのでお気軽にお申しつけください。
周辺のエリアで他にも沢山売りに出ている物件があります。インターネット掲載前の情報などもありますのでお気軽にお問合せください。まとめてご見学できます。
建物のモデルハウスのご見学予約もスタートしました。当日のご見学予約も大歓迎ですので、お気軽にお問合せください。
安心して暮らすことのできる住宅街。 住宅地の道路は一般に交通量が少なく車などの騒音が少ないため、住民にとって静かな生活環境が提供されます。
この街を選ぶ理由や想像している生活のイメージを担当者と共有してもらえると嬉しいです。 今後の暮らしがどのようなものになるか、その想像が現実になるためのステップを一緒に考えましょう。
西武新宿線「小平」駅 1840m
担当スタッフより

- 加藤義平
- 現地のご見学予約スタートしました。当日のご見学予約も大歓迎です。モデルハウスのご見学も可能です。他にもインターネットに掲載していない情報も沢山ありますので、まとめてご見学可能です。また、年中無休(年末年始を除く)で営業しております。火曜日水曜日も営業しておりますのでお気軽にお問合せください。
物件詳細情報
物件No.20000441234
| 所在地 | 東京都小平市大沼町4丁目 | ||
|---|---|---|---|
| 交通 | 西武新宿線「小平」駅徒歩23分 西武新宿線「花小金井」駅徒歩37分 西武多摩湖線「萩山」駅徒歩34分 |
||
| 間取 | 2SLDK | ||
| 土地面積 | 103.58m² 実測 | ||
| 建物面積 | 122.55m² 実測 (車庫部分14.49平米含む) | ||
| 販売戸数 | 1戸 | 総戸数 | 全1戸 |
| 構造・規模 | 木造 2階建て | 築年・入居 | 2026年4月上旬 |
| バルコニー | 東向き | 建物現況 | 建築中 |
| 建築確認番号 | 第25UDI1W建07488号 | 駐車スペース | あり(車庫) |
| 引渡時期 | 期日指定有(2026年4月下旬) | 国土法届出 | 不要 |
| 地目 | 宅地 | 用途地域 | 第一種低層住居専用地域 |
| 建ぺい率 | 60% | 容積率 | 150% |
| 都市計画 | 市街化区域 | 権利種類 | 所有権 |
| 接道 | 東側6M公道に6.9M接道 | 取引態様 | 媒介 |
| 設備 | 公営水道、本下水、都市ガス | ||
| 省エネ性能表示 | エネルギー消費性能:★★★ 断熱性能:5段階 |
||
| その他制限事項 | 準防火地域、日影制限有 | ||
こだわり項目
- ※価格は物件の代金総額を表示しており、消費税が課税される場合は税込み価格です。(1,000円未満は切り上げ。)
税率は引き渡し時期により異なりますので、各物件の詳細につきましてはお問い合わせください。 - ※敷地権利が借地権のものは価格に権利金を含みます。
- ※制作中に内容が変更される場合もありますので、あらかじめご了承ください。
- ※購入の前には物件内容や契約条件についてご自身で十分な確認をしていただくようにお願いいたします。
- ※完成予想図はいずれも外構、植栽、外観等実際のものとは多少異なることがあります。
- ※CG合成の画像の場合、実際とは多少異なる場合があります。
周辺地図
周辺施設一覧
- ショッピングセンター
- スーパー
- コンビニ
- ドラッグストア
- ホームセンター
- 飲食店
- その他店舗
- 商店街
- 大学
- 専門学校
- 高校・高専
- 中学校
- 小学校
- 保育園
- 幼稚園
- 公民館・児童館
- 病院
- 郵便局
- 役所
- 図書館
- 金融機関
- 警察・消防
- 趣味・娯楽施設
- 公園・運動施設
- 周辺の街並み
- 駅
- その他
お問い合せ先
- 株式会社エステート白馬 国分寺店
- お電話でのお問い合わせは
0120-846-898「ホームページを見た」とお問い合わせください - 東京都国分寺市本町4-19-10 ビッググラッド国分寺1F
- 営業時間:9:30~18:30
- 定休日:年中無休
- 免許番号:国土交通大臣免許(6)第5817号
- HOME
- 一戸建てをエリアから探す
- 小平市
- 大沼町
- 小平市大沼町4丁目 新築戸建





