- HOME
- 土地をエリアから探す
- さいたま市西区
- 大字佐知川
- 3号地 西区佐知川
土地
3号地 西区佐知川
情報更新日:2026/04/09 次回更新予定日:2026/04/23
所在地埼玉県さいたま市西区大字佐知川[周辺地図]
交 通京浜東北・根岸線「大宮」駅バス13分 停歩3分






当店は東大宮駅東口から徒歩3分。電車でもお車でもご来店しやすい店舗です。お気軽にお立ち寄り下さい。
- すべて(14)
- 外観・パース(13)
- 内観(0)
- 間取・区画(1)
- その他(0)
- 動画
担当スタッフより

- 森村 恵
- ~人気のリモート見学・リモート相談サービス~
・小さいお子様や家事で外出できない、天気が悪く外出したくない時
・LINEやZOOMなど無料のアプリですぐにご利用いただけます
・リモート見学はスタッフがご興味ある物件の現地から映像をお届けします
・写真では伝わりにくい「空気感」や違うアングルからみたかったリビングの「見え方」などもしっかり確認できます
・リモート相談は第三者による住宅ローンや家計相談を専門のファイナンシャルプランナーと1対1で
・バーチャル背景でプライバシーも安心
・忙しいパートナーに変わって予め確認も
・別々の場所から家族みんなで参加もできます
・お気軽にご相談下さい
~営業時間~
9:30~18:30
こちらのお時間でしたらお電話でのお問合せがスムーズです
お気軽にお問合せください
各棟情報
物件詳細情報
物件No.20000443552-013
| 所在地 | 埼玉県さいたま市西区大字佐知川 | ||
|---|---|---|---|
| 交通 | 京浜東北・根岸線「大宮」駅バス13分 バス停「金山神社」停歩3分 川越線「指扇」駅バス5分 バス停「金山神社」停歩3分 川越線「西大宮」駅徒歩34分 |
||
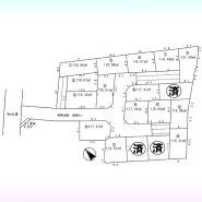
| 土地面積 | 119.3m² 公簿 | ||
| 販売区画数 | 12区画 | 総区画数 | 全18区画 |
| 開発面積 | 2948.54m² | 用途地域 | 第一種低層住居専用地域 |
| 建ぺい率 | 50% | 容積率 | 100% |
| 都市計画 | 市街化区域 | 建築条件 | 建築条件なし |
| 地目 | 宅地 | 現況 | 更地 |
| 引渡時期 | 相談 | 権利種類 | 所有権 |
| 接道 | 南西側6M私道に接道 | 小学校区 | さいたま市立栄小学校(720m) |
| 中学校区 | さいたま市立馬宮中学校(800m) | 売主名称 | 株式会社サンシティホーム |
| 売主免許番号 | 埼玉県知事免許(8)第15036号 | 取引態様 | 媒介 |
| 設備 | 公営水道、本下水、都市ガス | ||
| 備考・制限等 | 準防火地域 高度地区15m 検査済番号:第完-N2025016号 ゴミ置場持分:6.42平米×持分1/21 | ||
こだわり項目
小学校800m以内コンビニ400m以内
- ※価格は物件の代金総額を表示しており、消費税が課税される場合は税込み価格です。(1,000円未満は切り上げ。)
税率は引き渡し時期により異なりますので、各物件の詳細につきましてはお問い合わせください。 - ※敷地権利が借地権のものは価格に権利金を含みます。
- ※制作中に内容が変更される場合もありますので、あらかじめご了承ください。
- ※購入の前には物件内容や契約条件についてご自身で十分な確認をしていただくようにお願いいたします。
- ※完成予想図はいずれも外構、植栽、外観等実際のものとは多少異なることがあります。
- ※CG合成の画像の場合、実際とは多少異なる場合があります。
周辺地図
周辺施設一覧
- ショッピングセンター
- スーパー
- コンビニ
- ドラッグストア
- ホームセンター
- 飲食店
- その他店舗
- 商店街
- 大学
- 専門学校
- 高校・高専
- 中学校
- 小学校
- 保育園
- 幼稚園
- 公民館・児童館
- 病院
- 郵便局
- 役所
- 図書館
- 金融機関
- 警察・消防
- 趣味・娯楽施設
- 公園・運動施設
- 周辺の街並み
- 駅
- その他
お問い合せ先
- 株式会社エステート白馬 東大宮店
- お電話でのお問い合わせは
0120-953-325「ホームページを見た」とお問い合わせください - 埼玉県さいたま市見沼区東大宮5-31-9 NYビル1F
- 営業時間:9:00~20:00
- 定休日:年中無休
- 免許番号:国土交通大臣免許(6)第5817号











