- HOME
- 中古マンションをエリアから探す
- 小平市
- 栄町
- アップルウェイ小平パートII
アップルウェイ小平パートII
情報更新日:2026/04/10 次回更新予定日:2026/04/24
価 格2,390万円(税込)
所在地東京都小平市栄町2丁目29-5[周辺地図]
交 通西武拝島線「小川」駅徒歩19分





水回りや床、照明など室内リフォーム後のお引渡しです。
小型犬飼育OKです
◎こころとカラダに、うれしい暮らし
HAKUBAグループでは、土地や住まいの売買から設計、建築、
医療、介護そして保険や金融、税金対策、資産形成まで
さまざまなスペシャリストが集い、連携してサービス提供をしております。
専門知識や経験をかけあわせることで、お客様ひとりひとりにあった健康的な暮らしをお届けし、
人生が「プラス」の方向に進んでいくお手伝いをさせて頂きます。
すべての画像
本画像はCGで作成しており、実際に現地に家具は置かれておりません。また、価格に家具は含まれておりません。
現地のご見学予約もスタートしました。周辺で売りに出ている物件も沢山御座います。まとめてご見学ができますのでお気軽にお申しつけください。
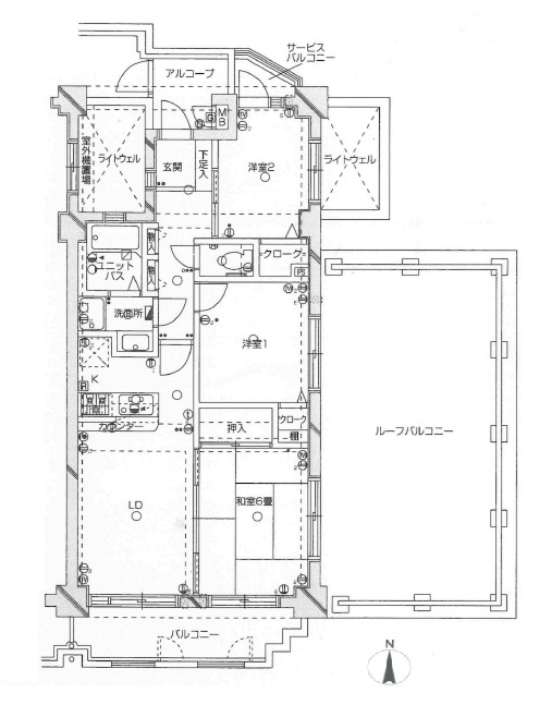
最上階の角部屋ルーフバルコニー付き
本画像は、入居者様の家具をCGで消去し、CGで家具を作成しております。実際の現地に家具はなく、価格にも家具は含まれていません。また、現況と異なる可能性がございます。
お料理をしながらリビングの家族やゲストとの会話が楽しめるカウンタータイプのキッチン。毎日のお料理を楽しく快適に。
一日の疲れを癒してくれるゆったりとしたバスルームです。
使いやすいタイプの洗面化粧台のあるランドリースペース
広がる空の下開放感あふれる心地よい空間
本画像はCGで作成しており、実際に現地に家具は置かれておりません。また、価格に家具は含まれておりません。
現地のご見学予約もスタートしました。周辺で売りに出ている物件も沢山御座います。まとめてご見学ができますのでお気軽にお申しつけください。
現地のご見学予約もスタートしました。周辺で売りに出ている物件も沢山御座います。まとめてご見学ができますのでお気軽にお申しつけください。
家族の集まるリビングは気持ちの良い自然光が差し込む団欒空間。室内のご見学予約も随時、受付中ですのでお気軽にお問合せください。
家族が食事するダイニングスペースをキッチンから見渡せる設計に。お料理をしながら家族とのコミュニケーションが増えそうな予感。
家族が一番集まる場所だから広々としつつも素敵な空間であって欲しい。みんながくつろぐリビングからキッチンまでが一つの空間のように繋がる間取り。
カウンターキッチンならではの開放的な見通し、全体が見渡せることでご家族の団欒スペースもより明るく笑顔が溢れる空間となります。
お料理をしながらリビングの家族やゲストとの会話が楽しめるカウンタータイプのキッチン。毎日のお料理を楽しく快適に。
使いやすいタイプの洗面化粧台のあるランドリースペース
実際に室内をご見学頂くと生活のイメージが広がると思います。家具を置いたイメージや窓からの景色など。周辺で販売に出している物件も一緒にまとめてご見学頂き、比較する事もできます。お気軽に担当スタッフまでお申しつけください。
洋室はモダンなデザインと機能性を備え、快適な生活空間に。明るい窓から差し込む自然光が広々とした空間をさらに明るく開放的に感じさせます。
スタイリッシュなデザインと快適な居住性を兼ね備えた洋室。広々とした空間は、自分らしいインテリアを楽しむことができるほか、リラックスした時間を過ごすことができそうです。
スマートなデザインと賢い収納が生活を快適にします。広々とした雰囲気を演出する工夫が施され、生活空間の魅力を引き出します。
畳の香りと柔らかな光がリラックスした空間を作ります。
和室がある間取り。畳の香りとともにどこか落ち着く空間です。
各お部屋に収納が設置されています。
各所に効率的に配置された収納スペースがあり、日常のモノをすっきりと収納できます。
豊富な収納スペースもこの物件の特長の一つ。各所に収納が完備されており、生活をスッキリと整えることができます。
広がる空を心地よい風と共にお楽しみください
日々の忙しさやストレスから離れ、バルコニーで静かに深呼吸、心が穏やかになります。
開放感あふれる眺望と広々とした心地よい空間
朝のひと時にコーヒーを飲みながら新鮮な空気を吸う、バルコニーでの過ごし方は様々です。自分だけの小さなオアシスとして、日常の喧騒を忘れる場所になるかもしれません。
季節の変化や天気の良い日には、バルコニーでの時間が心地よく、気分をリフレッシュさせることができます。
バルコニーからの眺望です。実際に現地で眺望もご確認ください。
玄関は家の第一印象を左右する重要な場所。ほどよい広さとスタイリッシュな色遣いが印象的です。
実際に室内をご見学頂くと生活のイメージが広がると思います。家具を置いたイメージや窓からの景色など。周辺で販売に出している物件も一緒にまとめてご見学頂き、比較する事もできます。お気軽に担当スタッフまでお申しつけください。
現地のご見学予約もスタートしました。周辺で売りに出ている物件も沢山御座います。まとめてご見学ができますのでお気軽にお申しつけください。
周辺のエリアで他にも沢山売りに出ている物件があります。インターネット掲載前の情報などもありますのでお気軽にお問合せください。まとめてご見学できます。
現地のご見学予約もスタートしました。周辺で売りに出ている物件も沢山御座います。まとめてご見学ができますのでお気軽にお申しつけください。
周辺のエリアで他にも沢山売りに出ている物件があります。インターネット掲載前の情報などもありますのでお気軽にお問合せください。まとめてご見学できます。
現地のご見学予約もスタートしました。周辺で売りに出ている物件も沢山御座います。まとめてご見学ができますのでお気軽にお申しつけください。
周辺のエリアで他にも沢山売りに出ている物件があります。インターネット掲載前の情報などもありますのでお気軽にお問合せください。まとめてご見学できます。
担当スタッフより

- 原 毅
- 現地ご見学予約スタートしました。他にもインターネットに掲載していない情報も沢山ありますので、まとめてご見学可能です。また、年中無休(年末年始を除く)で営業しております。火曜日水曜日も営業しておりますのでお気軽にお問合せください。
物件詳細情報
物件No.20000443603
| 所在地 | 東京都小平市栄町2丁目29-5 | ||
|---|---|---|---|
| 交通 | 西武拝島線「小川」駅徒歩19分 西武拝島線「東大和市」駅徒歩21分 西武多摩湖線「八坂」駅徒歩28分 |
||
| 間取 | 3LDK | ||
| 専有面積 | 56.94m² (壁芯) | ||
| バルコニー面積 | 8.25m² 南向き | ||
| 販売戸数 | 1戸 | 総戸数 | 全19戸 |
| 構造・規模 | 鉄筋コンクリート造 5階建て 5階部分 |
築年・入居 | 1997年8月築 |
| 現況 | 空室 | 引渡時期 | 相談 |
| 権利種類 | 所有権 | 管理費 | 15,000円/月 |
| 修繕積立金 | 15,000円/月 | 管理形態 | 巡回 全部委託 |
| 管理会社 | 日本ハウズイング株式会社 | 駐車場 | 敷地内に空なし 料金:11,000円/月 |
| 駐輪場料金 | 100円/月 | バイク置場料金 | 200円/月 |
| ペット | 相談 | 取引態様 | 媒介 |
| 設備 | 公営水道、本下水、都市ガス | ||
| 備考・制限等 | ペット相談:小型犬可、猫可 |
||
こだわり項目
- ※価格は物件の代金総額を表示しており、消費税が課税される場合は税込み価格です。(1,000円未満は切り上げ。)
税率は引き渡し時期により異なりますので、各物件の詳細につきましてはお問い合わせください。 - ※敷地権利が借地権のものは価格に権利金を含みます。
- ※制作中に内容が変更される場合もありますので、あらかじめご了承ください。
- ※購入の前には物件内容や契約条件についてご自身で十分な確認をしていただくようにお願いいたします。
- ※完成予想図はいずれも外構、植栽、外観等実際のものとは多少異なることがあります。
- ※CG合成の画像の場合、実際とは多少異なる場合があります。
周辺地図
周辺施設一覧
- ショッピングセンター
- スーパー
- コンビニ
- ドラッグストア
- ホームセンター
- 飲食店
- その他店舗
- 商店街
- 大学
- 専門学校
- 高校・高専
- 中学校
- 小学校
- 保育園
- 幼稚園
- 公民館・児童館
- 病院
- 郵便局
- 役所
- 図書館
- 金融機関
- 警察・消防
- 趣味・娯楽施設
- 公園・運動施設
- 周辺の街並み
- 駅
- その他
お問い合せ先
- 株式会社エステート白馬 国分寺店
- お電話でのお問い合わせは
0120-846-898「ホームページを見た」とお問い合わせください - 東京都国分寺市本町4-19-10 ビッググラッド国分寺1F
- 営業時間:9:30~18:30
- 定休日:年中無休
- 免許番号:国土交通大臣免許(6)第5817号
- HOME
- 中古マンションをエリアから探す
- 小平市
- 栄町
- アップルウェイ小平パートII





