- HOME
- 中古マンションをエリアから探す
- 三鷹市
- 下連雀
- オーベル吉祥寺 WEST
オーベル吉祥寺 WEST
情報更新日:2026/04/16 次回更新予定日:2026/04/24
価 格7,880万円(税込)
所在地東京都三鷹市下連雀8丁目[周辺地図]
交 通中央線「吉祥寺」駅バス10分 停歩4分





HAKUBAグループでは、土地や住まいの売買から設計、建築、
医療、介護そして保険や金融、税金対策、資産形成まで
さまざまなスペシャリストが集い、連携してサービス提供をしております。
専門知識や経験をかけあわせることで、お客様ひとりひとりにあった健康的な暮らしをお届けし、
人生が「プラス」の方向に進んでいくお手伝いをさせて頂きます。
すべての画像
家族の集まるリビングは気持ちの良い自然光が差し込む団欒空間。室内のご見学予約も随時、受付中ですのでお気軽にお問合せください。
現地のご見学予約もスタートしました。周辺で売りに出ている物件も沢山御座います。まとめてご見学ができますのでお気軽にお申しつけください。
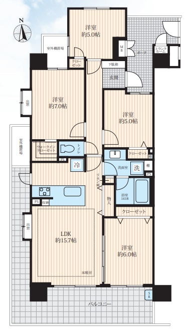
間取り
家族が食事するダイニングスペースをキッチンから見渡せる設計に。お料理をしながら家族とのコミュニケーションが増えそうな予感。
お料理をしながらリビングの家族やゲストとの会話が楽しめるカウンタータイプのキッチン。毎日のお料理を楽しく快適に。
一日の疲れを癒してくれるゆったりとしたバスルームです。
三面鏡に洗面台。 コンセントに照明機能、多機能性を備えた設備です。
窓からの眺望です。実際に現地で眺望もご確認ください。
本画像はCGで作成しており、実際に現地に家具は置かれておりません。また、価格に家具は含まれておりません。
周辺のエリアで他にも沢山売りに出ている物件があります。インターネット掲載前の情報などもありますのでお気軽にお問合せください。まとめてご見学できます。
現地のご見学予約もスタートしました。周辺で売りに出ている物件も沢山御座います。まとめてご見学ができますのでお気軽にお申しつけください。
家族が一番集まる場所だから広々としつつも素敵な空間であって欲しい。みんながくつろぐリビングからキッチンまでが一つの空間のように繋がる間取り。
家族が食事するダイニングスペースをキッチンから見渡せる設計に。お料理をしながら家族とのコミュニケーションが増えそうな予感。
家族が食事するダイニングスペースをキッチンから見渡せる設計に。お料理をしながら家族とのコミュニケーションが増えそうな予感。
実際に室内をご見学頂くと生活のイメージが広がると思います。家具を置いたイメージや窓からの景色など。周辺で販売に出している物件も一緒にまとめてご見学頂き、比較する事もできます。お気軽に担当スタッフまでお申しつけください。
家族みんなが集まるリビング。広さを重視した家族全員が集まれるリビングは、住む上で大事な空間になります。
穏やかな色合いと洗練されたデザインが調和する空間は、住まう人の感性を豊かに育む場所。くつろぎと心地よさが、日々の暮らしにさりげない彩りを与えてくれます。
家族が集まる温かなひとときを育む空間です。
お料理をしながらリビングの家族やゲストとの会話が楽しめるカウンタータイプのキッチン。毎日のお料理を楽しく快適に。
カウンターキッチンならではの開放的な見通し、全体が見渡せることでご家族の団欒スペースもより明るく笑顔が溢れる空間となります。
キッチンコンロスペースの近くには、空気の入れ替えが可能な開口部を設置!! お料理をする際には、換気扇を回しながら匂いが籠らない様に開放してお料理もお楽しみ頂けます。
トイレにはウォシュレット機能を標準装備。
使いやすいタイプの洗面化粧台のあるランドリースペース
爽やかな印象の水回りで毎日の始まりを軽やかに。
洋室はモダンなデザインと機能性を備え、快適な生活空間に。明るい窓から差し込む自然光が広々とした空間をさらに明るく開放的に感じさせます。
スタイリッシュなデザインと快適な居住性を兼ね備えた洋室。広々とした空間は、自分らしいインテリアを楽しむことができるほか、リラックスした時間を過ごすことができそうです。
スマートなデザインと賢い収納が生活を快適にします。広々とした雰囲気を演出する工夫が施され、生活空間の魅力を引き出します。
各所に効率的に配置された収納スペースがあり、日常のモノをすっきりと収納できます。
季節の変化や天気の良い日には、バルコニーでの時間が心地よく、気分をリフレッシュさせることができます。
日々の忙しさやストレスから離れ、バルコニーで静かに深呼吸、心が穏やかになります。
バルコニーからの眺望です。実際に現地で眺望もご確認ください。
玄関は家の第一印象を左右する重要な場所。ほどよい広さとスタイリッシュな色遣いが印象的です。
周辺のエリアで他にも沢山売りに出ている物件があります。インターネット掲載前の情報などもありますのでお気軽にお問合せください。まとめてご見学できます。
心落ち着く緑に囲まれゆったりと過ごせます。
周辺のエリアで他にも沢山売りに出ている物件があります。インターネット掲載前の情報などもありますのでお気軽にお問合せください。まとめてご見学できます。
現地のご見学予約もスタートしました。周辺で売りに出ている物件も沢山御座います。まとめてご見学ができますのでお気軽にお申しつけください。
周辺のエリアで他にも沢山売りに出ている物件があります。インターネット掲載前の情報などもありますのでお気軽にお問合せください。まとめてご見学できます。
現地のご見学予約もスタートしました。周辺で売りに出ている物件も沢山御座います。まとめてご見学ができますのでお気軽にお申しつけください。
JR中央線「吉祥寺」駅 2820m
担当スタッフより

- 原 毅
- 現地ご見学予約スタートしました。他にもインターネットに掲載していない情報も沢山ありますので、まとめてご見学可能です。また、年中無休(年末年始を除く)で営業しております。火曜日水曜日も営業しておりますのでお気軽にお問合せください。
物件詳細情報
物件No.20000444370
| 所在地 | 東京都三鷹市下連雀8丁目 | ||
|---|---|---|---|
| 交通 | 中央線「吉祥寺」駅バス10分 バス停「新川」停歩4分 中央線「三鷹」駅バス13分 バス停「新川通り」停歩4分 京王井の頭線「吉祥寺」駅徒歩37分 |
||
| 間取 | 4LDK | ||
| 専有面積 | 85.22m² (壁芯) | ||
| バルコニー面積 | 21.6m² 南向き | ||
| 販売戸数 | 1戸 | 総戸数 | 全75戸 |
| 構造・規模 | 鉄筋コンクリート造 9階建て 6階部分 |
築年・入居 | 2004年2月築 |
| 施工会社 | 長谷工コーポレーション(株) | 現況 | 空室 |
| 引渡時期 | 相談 | 権利種類 | 所有権 |
| 管理費 | 13,240円/月 | 修繕積立金 | 24,340円/月 |
| 管理形態 | 日勤 全部委託 | 管理会社 | 大成有楽不動産(株) |
| ペット | 可 | インターネット使用料 | 935円/月 |
| CATV維持管理費 | 330円/月 | 取引態様 | 媒介 |
| リフォーム |
|
||
| 設備 | 公営水道、本下水、都市ガス | ||
| 備考・制限等 | ペット飼育可(飼育細則あり) | ||
こだわり項目
- ※価格は物件の代金総額を表示しており、消費税が課税される場合は税込み価格です。(1,000円未満は切り上げ。)
税率は引き渡し時期により異なりますので、各物件の詳細につきましてはお問い合わせください。 - ※敷地権利が借地権のものは価格に権利金を含みます。
- ※制作中に内容が変更される場合もありますので、あらかじめご了承ください。
- ※購入の前には物件内容や契約条件についてご自身で十分な確認をしていただくようにお願いいたします。
- ※完成予想図はいずれも外構、植栽、外観等実際のものとは多少異なることがあります。
- ※CG合成の画像の場合、実際とは多少異なる場合があります。
周辺地図
周辺施設一覧
- ショッピングセンター
- スーパー
- コンビニ
- ドラッグストア
- ホームセンター
- 飲食店
- その他店舗
- 商店街
- 大学
- 専門学校
- 高校・高専
- 中学校
- 小学校
- 保育園
- 幼稚園
- 公民館・児童館
- 病院
- 郵便局
- 役所
- 図書館
- 金融機関
- 警察・消防
- 趣味・娯楽施設
- 公園・運動施設
- 周辺の街並み
- 駅
- その他
お問い合せ先
- 株式会社エステート白馬 国分寺店
- お電話でのお問い合わせは
0120-846-898「ホームページを見た」とお問い合わせください - 東京都国分寺市本町4-19-10 ビッググラッド国分寺1F
- 営業時間:9:30~18:30
- 定休日:年中無休
- 免許番号:国土交通大臣免許(6)第5817号
- HOME
- 中古マンションをエリアから探す
- 三鷹市
- 下連雀
- オーベル吉祥寺 WEST



















