- HOME
- 土地をエリアから探す
- 狛江市
- 岩戸南
- 狛江市岩戸南4丁目 土地
土地
狛江市岩戸南4丁目 土地
情報更新日:2026/04/09 次回更新予定日:2026/04/23
価 格2,080万円
所在地東京都狛江市岩戸南4丁目[周辺地図]
交 通小田急小田原線「狛江」駅徒歩22分






◎こころとカラダに、うれしい暮らし
HAKUBAグループでは、土地や住まいの売買から設計、建築、
医療、介護そして保険や金融、税金対策、資産形成まで
さまざまなスペシャリストが集い、連携してサービス提供をしております。
専門知識や経験をかけあわせることで、お客様ひとりひとりにあった健康的な暮らしをお届けし、
人生が「プラス」の方向に進んでいくお手伝いをさせて頂きます。
HAKUBAグループでは、土地や住まいの売買から設計、建築、
医療、介護そして保険や金融、税金対策、資産形成まで
さまざまなスペシャリストが集い、連携してサービス提供をしております。
専門知識や経験をかけあわせることで、お客様ひとりひとりにあった健康的な暮らしをお届けし、
人生が「プラス」の方向に進んでいくお手伝いをさせて頂きます。
すべての画像
現地のご見学予約もスタートしました。周辺で売りに出ている物件も沢山御座います。まとめてご見学ができますのでお気軽にお申しつけください。
周辺のエリアで他にも沢山売りに出ている物件があります。インターネット掲載前の情報などもありますのでお気軽にお問合せください。まとめてご見学できます。
安心して暮らすことのできる住宅街。 住宅地の道路は一般に交通量が少なく車などの騒音が少ないため、住民にとって静かな生活環境が提供されます。
区画図
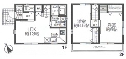
建物面積 52.64平米
現地ご見学の際、スタッフが様々なご質問に対応いたします、周辺環境、前面道路、建築可能な建物について、ぜひご相談ください。
白馬の家は、断熱性と気密性に優れた「冬に暖かく、夏に涼しい」オーダーメイド住宅、ご希望に合わせたプランニングを行います。
土地物件にはご確認頂くポイントがたくさんございます、土地だけのご見学の際もご遠慮せず、ぜひお気軽に担当スタッフにお申しつけくださいませ。
担当スタッフより

- 吉田 勇人
- 夏に涼しく、冬に暖かい。一年中快適に過ごすことができる高気密高断熱の「白馬の家」。参考プランの作成も無料でできます。お気軽にお問合せください。モデルハウスのご見学も受付中です。他にも色々なエリアで土地の情報がありますので、まとめてご見学頂き比較してください。
物件詳細情報
物件No.20000444380
| 所在地 | 東京都狛江市岩戸南4丁目 | ||
|---|---|---|---|
| 交通 | 小田急小田原線「狛江」駅徒歩22分 小田急小田原線「喜多見」駅徒歩20分 小田急小田原線「和泉多摩川」駅徒歩21分 |
||
| 土地面積 | 72.52m² 実測 (私道13.23m²別に有) | ||
| 販売区画数 | 1区画 | 総区画数 | 全1区画 |
| 用途地域 | 第一種低層住居専用地域 | 建ぺい率 | 40% |
| 容積率 | 80% | 都市計画 | 市街化区域 |
| 国土法届出 | 不要 | 建築条件 | 建築条件なし |
| 地目 | 宅地 | 最適用途 | 住宅用地 |
| 現況 | 古家付 | 引渡時期 | 相談 |
| 引渡条件 | 現況渡し | 権利種類 | 所有権 |
| 接道 | 北側4M私道に接道 西側4M私道に接道 |
取引態様 | 媒介 |
| 設備 | 公営水道、本下水、都市ガス | ||
| 備考・制限等 | 本物件は建築基準法上の道路に接しておりませんが、売主が43条2項2号の許可を受け、令和7年12月8日付けの建築確認済を取得しております。 他プランでも再建築が可能と考えられます。 既存建物:昭和48年築 木造2階建 76.18平米(間取り 4K) |
||
こだわり項目
角地平坦地閑静な住宅地
- ※価格は物件の代金総額を表示しており、消費税が課税される場合は税込み価格です。(1,000円未満は切り上げ。)
税率は引き渡し時期により異なりますので、各物件の詳細につきましてはお問い合わせください。 - ※敷地権利が借地権のものは価格に権利金を含みます。
- ※制作中に内容が変更される場合もありますので、あらかじめご了承ください。
- ※購入の前には物件内容や契約条件についてご自身で十分な確認をしていただくようにお願いいたします。
- ※完成予想図はいずれも外構、植栽、外観等実際のものとは多少異なることがあります。
- ※CG合成の画像の場合、実際とは多少異なる場合があります。
周辺地図
周辺施設一覧
- ショッピングセンター
- スーパー
- コンビニ
- ドラッグストア
- ホームセンター
- 飲食店
- その他店舗
- 商店街
- 大学
- 専門学校
- 高校・高専
- 中学校
- 小学校
- 保育園
- 幼稚園
- 公民館・児童館
- 病院
- 郵便局
- 役所
- 図書館
- 金融機関
- 警察・消防
- 趣味・娯楽施設
- 公園・運動施設
- 周辺の街並み
- 駅
- その他
お問い合せ先
- 株式会社エステート白馬 国分寺店
- お電話でのお問い合わせは
0120-846-898「ホームページを見た」とお問い合わせください - 東京都国分寺市本町4-19-10 ビッググラッド国分寺1F
- 営業時間:9:30~18:30
- 定休日:年中無休
- 免許番号:国土交通大臣免許(6)第5817号



