- HOME
- 一戸建てをエリアから探す
- 狭山市
- 富士見
- 1号棟 狭山市富士見1丁目全3棟 新築戸建
新築一戸建て
1号棟 狭山市富士見1丁目全3棟 新築戸建
情報更新日:2026/04/13 次回更新予定日:2026/04/27
所在地埼玉県狭山市富士見1丁目[周辺地図]
交 通西武新宿線「狭山市」駅徒歩9分






整形地です。カースペース並列2台可能です。明るい全室二面採光です。ウォークインクローゼット有ります。土間収納有ります。
- すべて(23)
- 外観・パース(20)
- 内観(0)
- 間取・区画(2)
- その他(0)
- 動画
すべての画像
五感で感じる、現地でしかわからない事も沢山ございます。周辺環境なども一緒にご案内いたしますのでお気軽にお問合せください。
区画図
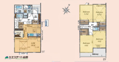
間取図
2026年6月下旬完成予定です。
前面道路は広く、駐車がしやすいです。駐車スペース2台分ございます。
戸建てが立ち並ぶ静かな住宅街。四季折々の移り変わりを感じながら自然と楽しみ、暮らす、そんな毎日を日々の中で感じられる住環境
前面道路
前面道路
担当スタッフより

- 大久保美晴
- 狭山市駅まで徒歩9分です。風の子保育園まで徒歩8分(約620m)セキ薬局まで徒歩11分(約800m)です。富士見1丁目公園まで徒歩5分(約400m)です。
各棟情報
物件詳細情報
物件No.20000444731-001
| 所在地 | 埼玉県狭山市富士見1丁目 | ||
|---|---|---|---|
| 交通 | 西武新宿線「狭山市」駅徒歩9分 西武池袋線「稲荷山公園」駅徒歩32分 西武新宿線「入曽」駅徒歩35分 |
||
| 間取 | 3LDK | ||
| 土地面積 | 122.05m² 公簿 | ||
| 建物面積 | 103.86m² 実測 | ||
| 販売戸数 | 3戸 | 総戸数 | 全3戸 |
| 構造・規模 | 木造 2階建て | 築年・入居 | 2026年7月 |
| 建物現況 | 建築中 | 建築確認番号 | 第25UDI1W建13501号 |
| 駐車スペース | 2台(並列) | 引渡時期 | 期日指定有(2026年7月下旬) |
| 国土法届出 | 不要 | 地目 | 宅地 |
| 用途地域 | 第一種住居地域 | 建ぺい率 | 60% |
| 容積率 | 200% | 都市計画 | 市街化区域 |
| 権利種類 | 所有権 | 接道 | 北側4.5M公道に接道 |
| 小学校区 | 富士見小学校(1200m) | 中学校区 | 狭山台中学校(2200m) |
| 取引態様 | 媒介 | ||
| 設備 | 公営水道、本下水、都市ガス | ||
| 省エネ性能表示 | エネルギー消費性能:★★★ 断熱性能:5段階 |
||
| その他制限事項 | 航空法 | ||
| 備考・制限等 | 航空法、重要土地調査法(届出不要) | ||
こだわり項目
整形地LDK15帖以上耐震構造制震構造BELS/省エネ基準適合(認定書あり)長期優良住宅全室2面採光床下収納全居室収納ワイドバルコニー複層ガラス設計住宅性能評価付食器洗浄機浄水器システムキッチンカウンターキッチン3口以上コンロトイレ2ヶ所温水洗浄便座浴室乾燥機浴室暖房追焚機能浴室に窓全居室フローリングウォークインクローゼットTVモニタ付インターホン24時間換気システム保育園・幼稚園800m以内公園800m以内
- ※価格は物件の代金総額を表示しており、消費税が課税される場合は税込み価格です。(1,000円未満は切り上げ。)
税率は引き渡し時期により異なりますので、各物件の詳細につきましてはお問い合わせください。 - ※敷地権利が借地権のものは価格に権利金を含みます。
- ※制作中に内容が変更される場合もありますので、あらかじめご了承ください。
- ※購入の前には物件内容や契約条件についてご自身で十分な確認をしていただくようにお願いいたします。
- ※完成予想図はいずれも外構、植栽、外観等実際のものとは多少異なることがあります。
- ※CG合成の画像の場合、実際とは多少異なる場合があります。
周辺地図
周辺施設一覧
- ショッピングセンター
- スーパー
- コンビニ
- ドラッグストア
- ホームセンター
- 飲食店
- その他店舗
- 商店街
- 大学
- 専門学校
- 高校・高専
- 中学校
- 小学校
- 保育園
- 幼稚園
- 公民館・児童館
- 病院
- 郵便局
- 役所
- 図書館
- 金融機関
- 警察・消防
- 趣味・娯楽施設
- 公園・運動施設
- 周辺の街並み
- 駅
- その他
お問い合せ先
- 株式会社エステート白馬 所沢店
- お電話でのお問い合わせは
0120-417-898「ホームページを見た」とお問い合わせください - 埼玉県所沢市東住吉12-21 白馬ビルディング
- 営業時間:9:00~18:30
- 定休日:年中無休
- 免許番号:国土交通大臣免許(6)第5817号
- HOME
- 一戸建てをエリアから探す
- 狭山市
- 富士見
- 1号棟 狭山市富士見1丁目全3棟 新築戸建























