- HOME
- 中古マンションをエリアから探す
- 小金井市
- 本町
- フラッツ小金井
中古マンション

フラッツ小金井
情報更新日:2026/04/25 次回更新予定日:2026/05/01
価 格2,190万円(税込)
所在地東京都小金井市本町3丁目[周辺地図]
交 通中央線「武蔵小金井」駅徒歩8分





◎こころとカラダに、うれしい暮らし
HAKUBAグループでは、土地や住まいの売買から設計、建築、
医療、介護そして保険や金融、税金対策、資産形成まで
さまざまなスペシャリストが集い、連携してサービス提供をしております。
専門知識や経験をかけあわせることで、お客様ひとりひとりにあった健康的な暮らしをお届けし、
人生が「プラス」の方向に進んでいくお手伝いをさせて頂きます。
HAKUBAグループでは、土地や住まいの売買から設計、建築、
医療、介護そして保険や金融、税金対策、資産形成まで
さまざまなスペシャリストが集い、連携してサービス提供をしております。
専門知識や経験をかけあわせることで、お客様ひとりひとりにあった健康的な暮らしをお届けし、
人生が「プラス」の方向に進んでいくお手伝いをさせて頂きます。
すべての画像
周辺のエリアで他にも沢山売りに出ている物件があります。インターネット掲載前の情報などもありますのでお気軽にお問合せください。まとめてご見学できます。
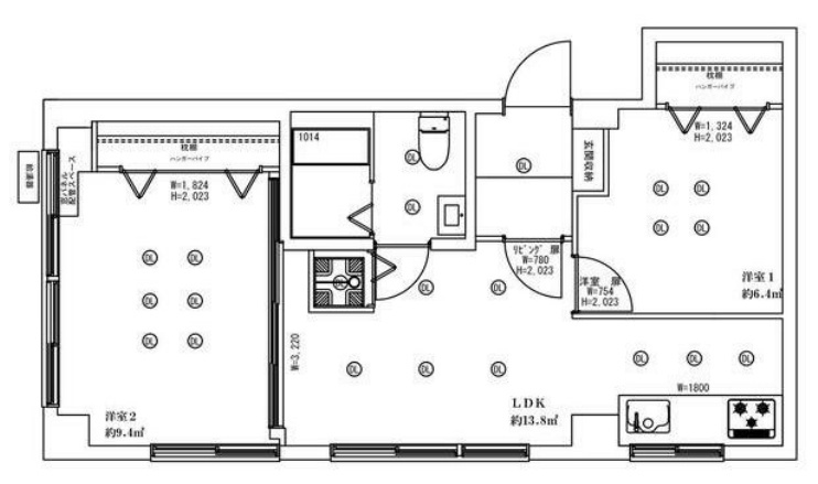
間取り
玄関は家の第一印象を左右する重要な場所。ほどよい広さとスタイリッシュな色遣いが印象的です。
家族が一番集まる場所だから広々としつつも素敵な空間であって欲しい。みんながくつろぐリビングからキッチンまでが一つの空間のように繋がる間取り。
実際に室内をご見学頂くと生活のイメージが広がると思います。家具を置いたイメージや窓からの景色など。周辺で販売に出している物件も一緒にまとめてご見学頂き、比較する事もできます。お気軽に担当スタッフまでお申しつけください。
周辺のエリアで他にも沢山売りに出ている物件があります。インターネット掲載前の情報などもありますのでお気軽にお問合せください。まとめてご見学できます。
実際に室内をご見学頂くと生活のイメージが広がると思います。家具を置いたイメージや窓からの景色など。周辺で販売に出している物件も一緒にまとめてご見学頂き、比較する事もできます。お気軽に担当スタッフまでお申しつけください。
キッチン
担当スタッフより

- 長谷川 佳行
- 現地ご見学予約スタートしました。他にもインターネットに掲載していない情報も沢山ありますので、まとめてご見学可能です。また、年中無休(年末年始を除く)で営業しております。火曜日水曜日も営業しておりますのでお気軽にお問合せください。
物件詳細情報
物件No.20000445818
| 所在地 | 東京都小金井市本町3丁目 | ||
|---|---|---|---|
| 交通 | 中央線「武蔵小金井」駅徒歩8分 中央線「東小金井」駅徒歩24分 西武新宿線「花小金井」駅徒歩29分 |
||
| 間取 | 1SLDK | ||
| 専有面積 | 44.37m² (壁芯) | ||
| バルコニー面積 | 9.7m² 南向き | ||
| 販売戸数 | 1戸 | 総戸数 | 全39戸 |
| 構造・規模 | 鉄筋コンクリート造 8階建て 7階部分 |
築年・入居 | 1971年2月築 |
| 施工会社 | 藤栄建設(株) | 現況 | 空室 |
| 引渡時期 | 相談 | 権利種類 | 所有権 |
| 管理費 | 11,340円/月 | 修繕積立金 | 11,340円/月 |
| 管理形態 | 巡回 一部委託 | 管理会社 | 日本ハウズイング株式会社 |
| 駐車場 | なし | 小学校区 | 小金井市立緑小学校(1070m) |
| 中学校区 | 小金井市立緑中学校(1565m) | 取引態様 | 媒介 |
| 設備 | 公営水道、本下水、都市ガス | ||
| 備考・制限等 | 管理組合あり、駐輪場なし、バイク置場なし | ||
こだわり項目
始発駅南向き角部屋全居室収納2面以上バルコニー浄水器システムキッチン3口以上コンロ温水洗浄便座シャワー付洗面台浴室乾燥機浴室暖房追焚機能オートバス室内洗濯機置き場TVモニタ付インターホンエレベーター全居室フローリングCATVコンビニ400m以内
- ※価格は物件の代金総額を表示しており、消費税が課税される場合は税込み価格です。(1,000円未満は切り上げ。)
税率は引き渡し時期により異なりますので、各物件の詳細につきましてはお問い合わせください。 - ※敷地権利が借地権のものは価格に権利金を含みます。
- ※制作中に内容が変更される場合もありますので、あらかじめご了承ください。
- ※購入の前には物件内容や契約条件についてご自身で十分な確認をしていただくようにお願いいたします。
- ※完成予想図はいずれも外構、植栽、外観等実際のものとは多少異なることがあります。
- ※CG合成の画像の場合、実際とは多少異なる場合があります。
周辺地図
周辺施設一覧
- ショッピングセンター
- スーパー
- コンビニ
- ドラッグストア
- ホームセンター
- 飲食店
- その他店舗
- 商店街
- 大学
- 専門学校
- 高校・高専
- 中学校
- 小学校
- 保育園
- 幼稚園
- 公民館・児童館
- 病院
- 郵便局
- 役所
- 図書館
- 金融機関
- 警察・消防
- 趣味・娯楽施設
- 公園・運動施設
- 周辺の街並み
- 駅
- その他
お問い合せ先
- 株式会社エステート白馬 国分寺店
- お電話でのお問い合わせは
0120-846-898「ホームページを見た」とお問い合わせください - 東京都国分寺市本町4-19-10 ビッググラッド国分寺1F
- 営業時間:9:30~18:30
- 定休日:年中無休
- 免許番号:国土交通大臣免許(6)第5817号





