- HOME
- 一戸建てをエリアから探す
- 東村山市
- 廻田町
- 東村山市廻田町4丁目(1期)全1棟 新築戸建
東村山市廻田町4丁目(1期)全1棟 新築戸建
情報更新日:2026/04/26 次回更新予定日:2026/05/03
価 格4,780万円(税込)
所在地東京都東村山市廻田町4丁目[周辺地図]
交 通西武新宿線「東村山」駅徒歩17分






・家族の顔が見えるリビングイン階段
・アクセントクロスと折り上げ天井のお洒落なリビング
すべての画像
夕食の時間。家族、友人、両親、親戚との会話がより料理を美味しくしてくれる。あっという間に時間が過ぎてしまう居心地の良さは、普段はほっとする空間としてここにあります。
いつも家族の集まるリビングは広々とした16.0 帖。通風・採光にも優れ、心安らぐ風と光がたえない空間。汎用性に富んだ居住スペースと、高揚感さえも与えてくれる住空間です。
家族団欒のリビング。陽光差し込む食卓には家族の会話とスマイルが溢れます。いつまでもここで食卓を囲みたくなる、そう感じさせてくれるスペース。
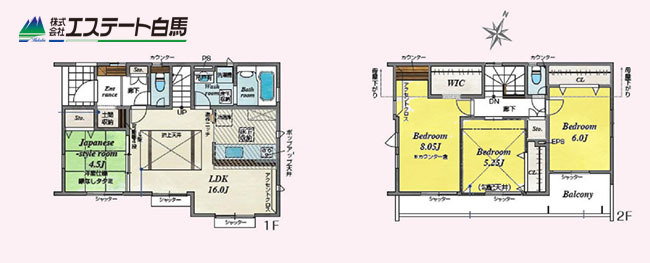
間取り
区画図
ゆとりの洗面スペースで朝の身支度もスムーズに行えます。
5m幅員の道路に面しておりお車の運転が苦手な方でも安心して出入りいただけます。
セカンドカーや来客時にも便利なカースペース2台分ございます。
土間収納付きでベビーカーやゴルフバック、お子様のおもちゃもスッキリ収納できます。
明るく開放的な玄関、靴の脱ぎ履きもしやすく、収納も豊富でご家族皆様の靴をスッキリ収納できます。
和室があるとやはりどこか心落ち着いてしまいます。客間としてもちょうど良い約4.5帖。
家族や友人、両親、親戚とこれから沢山の時間を紡ぐのだろう。そこを彩るのは窓から見える青い空、心地よい緑。そんなイメージが膨らむリビングスペース。
夕食の時間。家族、友人、両親、親戚との会話がより料理を美味しくしてくれる。あっという間に時間が過ぎてしまう居心地の良さは、普段はほっとする空間としてここにあります。
折り上げ天井
時短に活躍する食器洗浄機や一杯の水も楽しめる浄水器があるシステムキッチン。
お出かけ前の身だしなみに一歩差がつく三面鏡。ミラー裏にはたっぷり収納もございます。
ニッチスペース
今からここを誰のお部屋にしようか、そんな洋室。大きさは6.0帖です。
2階東南角部屋からは広めのバルコニーは風通しも良くお洗濯物もしっかりと干すことができます!
陽ざしが差込む明るいバルコニー。奥行きのあるバルコニーはお洗濯時に助かります。
今からここを誰のお部屋にしようか、そんな洋室。大きさは6.0帖です。
今からここを誰のお部屋にしようか、そんな洋室。大きさは6.0帖です。
洋室6.0帖 収納豊富な間取りで家の中がスッキリ片付きそうです。
二階の廊下の収納庫
今からここを誰のお部屋にしようか、そんな洋室。大きさは5.25帖です。
今からここを誰のお部屋にしようか、そんな洋室。大きさは5.25帖です。
今からここを誰のお部屋にしようか、そんな洋室。大きさは8.05帖です。
今からここを誰のお部屋にしようか、そんな洋室。大きさは8.05帖です。
収納で悩む時間をなくしたい。家族の衣服が多くても頼もしいWIC(ウォークインクローゼット)
お洒落な小物を置く、心安らぐ観葉植物を飾ってみる。もしくはパソコンを置いてみる。色々な用途に使えそうなリビングのカウンタースペース
今からここを誰のお部屋にしようか、そんな洋室。大きさは8.05帖です。
1日の疲れを取るゆとりある浴室です。
一緒にお風呂に入っている子供達の声がリビングまで聞こえてきそうな広々とした1坪バス
今からここを誰のお部屋にしようか、そんな洋室。大きさは8.05帖です。
陽ざしが差込む明るいバルコニー。奥行きのあるバルコニーはお洗濯時に助かります。
今からここを誰のお部屋にしようか、そんな洋室。大きさは8.05帖です。
玄関はおうちの顔とも呼ばれる重要な場所!明るくスッキリと見える空間で住まう人を見送り、出迎えてくれます。
ウォシュレット機能付きのトイレ。収納もあり実用性も兼ね備えた造り。
洗面台・洗面所
1.2階にそれぞれトレイがございます。朝の混雑時に分散して利用できるほか、ゲスト用としても使い分けることもできます。
担当スタッフより

- 金島宗治
- カースペース2台可能です(車種による)、整形地です、太陽光発電のある家、ファミリーマートまで約270m、お気軽にお問い合わせ下さい、
物件詳細情報
物件No.20000445819
| 所在地 | 東京都東村山市廻田町4丁目 | ||
|---|---|---|---|
| 交通 | 西武新宿線「東村山」駅徒歩17分 西武西武園線「西武園」駅徒歩13分 西武国分寺線「東村山」駅徒歩17分 |
||
| 間取 | 4LDK | ||
| 土地面積 | 119.61m² 実測 (私道309m²別に有、私道持分比率:1/11) | ||
| 建物面積 | 98m² 実測 | ||
| 販売戸数 | 1戸 | 総戸数 | 全1戸 |
| 構造・規模 | 木造 2階建て | 築年・入居 | 2026年3月 |
| 建物現況 | 完成済 | 建築確認番号 | 第R07SHC116043号 |
| 駐車スペース | 2台 | 引渡時期 | 即引渡可 |
| 国土法届出 | 不要 | 地目 | 宅地 |
| 用途地域 | 第一種低層住居専用地域/第二種低層住居専用地域 | 建ぺい率 | 50%/50% |
| 容積率 | 100%/100% | 都市計画 | 市街化区域 |
| 権利種類 | 所有権 | 接道 | 南西側5M私道に接道 |
| 小学校区 | 回田小学校(870m) | 中学校区 | 東村山第四中学校(280m) |
| 取引態様 | 媒介 | ||
| 設備 | 公営水道、本下水、都市ガス | ||
| 省エネ性能表示 | 再エネ設備:あり エネルギー消費性能:★★★★★ 断熱性能:5段階 |
||
| その他制限事項 | 航空法、高度地区、準防火地域、一部都市計画道路 | ||
| 備考・制限等 | 第1種高度地区、準防火地域、航空法、宅地造成及び特定盛土等規制法、別途持分フットバス12平米の内1//11あり、都市計画道路あり、太陽光発電は別途東京ガスとサービス契約要(期間10年、月額サービス料5400円、諸条件あり) | ||
こだわり項目
- ※価格は物件の代金総額を表示しており、消費税が課税される場合は税込み価格です。(1,000円未満は切り上げ。)
税率は引き渡し時期により異なりますので、各物件の詳細につきましてはお問い合わせください。 - ※敷地権利が借地権のものは価格に権利金を含みます。
- ※制作中に内容が変更される場合もありますので、あらかじめご了承ください。
- ※購入の前には物件内容や契約条件についてご自身で十分な確認をしていただくようにお願いいたします。
- ※完成予想図はいずれも外構、植栽、外観等実際のものとは多少異なることがあります。
- ※CG合成の画像の場合、実際とは多少異なる場合があります。
周辺地図
周辺施設一覧
- ショッピングセンター
- スーパー
- コンビニ
- ドラッグストア
- ホームセンター
- 飲食店
- その他店舗
- 商店街
- 大学
- 専門学校
- 高校・高専
- 中学校
- 小学校
- 保育園
- 幼稚園
- 公民館・児童館
- 病院
- 郵便局
- 役所
- 図書館
- 金融機関
- 警察・消防
- 趣味・娯楽施設
- 公園・運動施設
- 周辺の街並み
- 駅
- その他
お問い合せ先
- 株式会社エステート白馬 所沢店
- お電話でのお問い合わせは
0120-417-898「ホームページを見た」とお問い合わせください - 埼玉県所沢市東住吉12-21 白馬ビルディング
- 営業時間:9:00~18:30
- 定休日:年中無休
- 免許番号:国土交通大臣免許(6)第5817号
- HOME
- 一戸建てをエリアから探す
- 東村山市
- 廻田町
- 東村山市廻田町4丁目(1期)全1棟 新築戸建






























