- HOME
- 一戸建てをエリアから探す
- さいたま市浦和区
- 瀬ヶ崎
- さいたま市浦和区瀬ヶ崎第8 全5棟
さいたま市浦和区瀬ヶ崎第8 全5棟
情報更新日:2026/04/03 次回更新予定日:2026/04/17 取引条件有効期限:2026/04/17
所在地埼玉県さいたま市浦和区瀬ヶ崎1丁目[周辺地図]
交 通京浜東北・根岸線「北浦和」駅バス7分 停歩3分





1.FP相談サポート
社外のファイナンシャルプランナーと資金相談が出来ます。無料で何度でもお気軽に
2.設備保証の延長サービス
新築住宅は2年、中古住宅は半年の設備修理サービスを無料で付帯しています
3.注文住宅「白馬の家」
高気密・高断熱のフルオーダー住宅「白馬の家」のご提案もできます。ご興味のある土地にプランを作るのもお任せください
4.見学時、建築士同行サービス
見学に建築士が同行し、目視検査やリフォーム費用をお伝えするなどの無料サービスを行っています
5.ご売却不動産の買取保証
一定期間で不動産売却ができなかった場合、予め定めた金額で弊社が買取いたします
すべての画像
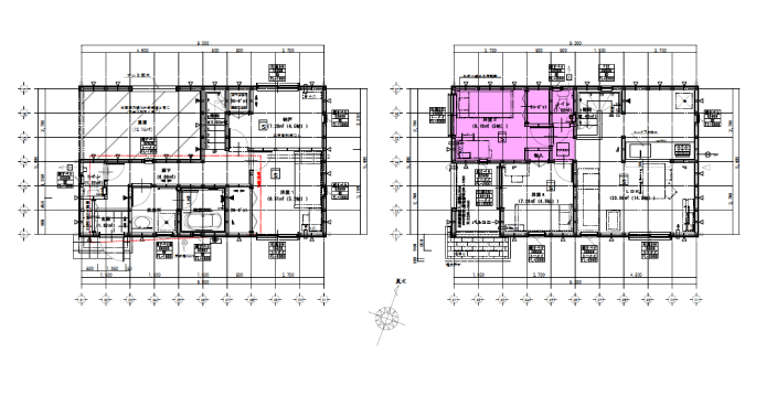
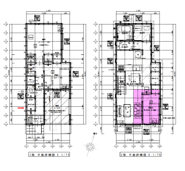
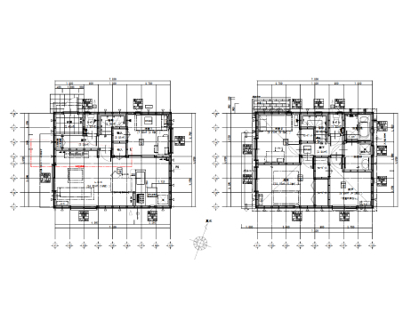
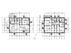
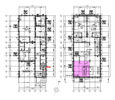
1号棟間取図 現況と図面が異なる場合は、現況を優先とさせていただきます。
2号棟間取図 現況と図面が異なる場合は、現況を優先とさせていただきます。
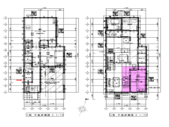
3号棟間取図 現況と図面が異なる場合は、現況を優先とさせていただきます。
4号棟間取図 現況と図面が異なる場合は、現況を優先とさせていただきます。
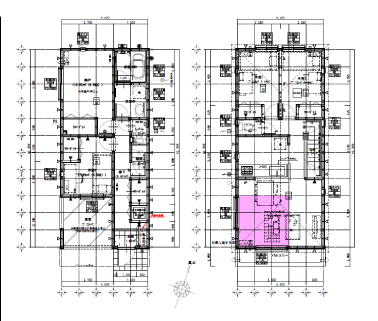
5号棟間取図 現況と図面が異なる場合は、現況を優先とさせていただきます。
1号棟 JR京浜東北・武蔵野線「南浦和」駅東口徒歩1分、提携駐車場もあります。エステート白馬南浦和店までお気軽にお問い合わせください。 2026/03/27m
2号棟 2区画 区画奥から南西方向 2026/03/27m
3号棟 JR京浜東北・武蔵野線「南浦和」駅東口徒歩1分、提携駐車場もあります。エステート白馬南浦和店までお気軽にお問い合わせください。 2026/03/27m
4号棟 JR京浜東北・武蔵野線「南浦和」駅東口徒歩1分、提携駐車場もあります。エステート白馬南浦和店までお気軽にお問い合わせください。 4区画 区画奥から南西方向 2026/03/27m
5号棟 JR京浜東北・武蔵野線「南浦和」駅東口徒歩1分、提携駐車場もあります。エステート白馬南浦和店までお気軽にお問い合わせください。 2026/03/27m
1号棟 現況と図面が異なる場合は、現況を優先とさせていただきます。
2号棟 現況と図面が異なる場合は、現況を優先とさせていただきます。
3号棟 現況と図面が異なる場合は、現況を優先とさせていただきます。
4号棟 4区画 北西方向 西側公道から 2026/03/27m
5号棟 5区画 公道から北東方向 2026/03/27m
1号棟 1区画 区画奥から南方向 2026/03/27m
2号棟 区画奥から方向 2026/03/27m
3号棟 3区画 区画奥から南方向 2026/03/27m
4号棟 現況と図面が異なる場合は、現況を優先とさせていただきます。
5号棟 現況と図面が異なる場合は、現況を優先とさせていただきます。
1号棟 1区画_北西方向 2026/03/27m
2号棟 2区画_北西方向 2026/03/27m
3号棟 3区画_北西方向(瓦礫は撤去予定) 2026/03/27m
4号棟 西側公道 4区画 北西方向 2026/03/27m
5号棟 5区画から分譲地全景 2026/03/27m
1号棟 1区画から分譲地全景 2026/03/27m
2号棟 2区画正面 公道から(瓦礫は撤去予定) 2026/03/27m
3号棟 3区画、4区画間 瓦礫撤去予定 2026/03/27m
4号棟 4,5区画_西側公道から 2026/03/27m
5号棟 5区画 公道から南東方向 2026/03/27m
1号棟 1区画正面 公道から 2026/03/27m
2号棟 2区画正面 公道から 2026/03/27m
3号棟 4区画から分譲地全体 2026/03/27m
4号棟 区画奥から、4,5区画_南方向 2026/03/27m
5号棟 5区画正面 公道側から 2026/03/27m
1号棟 1区画前 前面道路 西方向 2026/03/27m
2号棟 2区画前 前面道路 西方向 2026/03/27m
3号棟 5区画から分譲地全景 2026/03/27m
4号棟 4区画 北東方向 公道側から 2026/03/27m
5号棟 1区画から分譲地全景 2026/03/27m
各棟情報
物件詳細情報
物件No.20000446955
| 所在地 | 埼玉県さいたま市浦和区瀬ヶ崎1丁目 | ||
|---|---|---|---|
| 交通 | 京浜東北・根岸線「北浦和」駅バス7分 バス停「本太中学校」停歩3分 京浜東北・根岸線「浦和」駅徒歩28分 京浜東北・根岸線「与野」駅徒歩38分 |
||
| 間取 | 2SLDK~3SLDK | ||
| 土地面積 | 72.36m² ~ 79.31m² 実測 | ||
| 建物面積 | 84.24m² ~ 95.57m² 実測 (車庫部分含む) | ||
| 販売戸数 | 5戸 | 総戸数 | 全5戸 |
| 構造・規模 | 木造 2階建て | 築年・入居 | 2026年8月 |
| 建築確認番号 | 第25UDI1W建13425号、他 | 駐車スペース | あり |
| 引渡時期 | 期日指定有(2026年9月) | 施工会社 | 株式会社アーネストワン |
| 地目 | 宅地 | 用途地域 | 第一種住居地域 |
| 建ぺい率 | 60% | 容積率 | 160% |
| 都市計画 | 市街化区域 | 権利種類 | 所有権 |
| 接道 | 南東側4M私道に接道 | 取引態様 | 媒介 |
| 設備 | 公営水道、本下水、都市ガス | ||
| 備考・制限等 | 密集市街地整備法,宅地造成工事規制区域,容積率:前面道路幅員制限 高度地区(15m地区) 土地の全てが都市計画道路(3・4・19元町三室線)内に有り | ||
こだわり項目
- ※価格は物件の代金総額を表示しており、消費税が課税される場合は税込み価格です。(1,000円未満は切り上げ。)
税率は引き渡し時期により異なりますので、各物件の詳細につきましてはお問い合わせください。 - ※敷地権利が借地権のものは価格に権利金を含みます。
- ※制作中に内容が変更される場合もありますので、あらかじめご了承ください。
- ※購入の前には物件内容や契約条件についてご自身で十分な確認をしていただくようにお願いいたします。
- ※完成予想図はいずれも外構、植栽、外観等実際のものとは多少異なることがあります。
- ※CG合成の画像の場合、実際とは多少異なる場合があります。
周辺地図
周辺施設一覧
- ショッピングセンター
- スーパー
- コンビニ
- ドラッグストア
- ホームセンター
- 飲食店
- その他店舗
- 商店街
- 大学
- 専門学校
- 高校・高専
- 中学校
- 小学校
- 保育園
- 幼稚園
- 公民館・児童館
- 病院
- 郵便局
- 役所
- 図書館
- 金融機関
- 警察・消防
- 趣味・娯楽施設
- 公園・運動施設
- 周辺の街並み
- 駅
- その他
お問い合せ先
- 株式会社エステート白馬 南浦和店
- お電話でのお問い合わせは
0120-934-879「ホームページを見た」とお問い合わせください - 埼玉県さいたま市南区南浦和2-38-1 北原ビル1F
- 営業時間:9:30~18:30
- 定休日:年中無休
- 免許番号:国土交通大臣免許(6)第5817号
- HOME
- 一戸建てをエリアから探す
- さいたま市浦和区
- 瀬ヶ崎
- さいたま市浦和区瀬ヶ崎第8 全5棟










