- HOME
- 中古マンションをエリアから探す
- さいたま市大宮区
- 宮町
- グーディッシュ大宮
グーディッシュ大宮
情報更新日:2026/04/10 次回更新予定日:2026/04/24
価 格5,380万円
所在地埼玉県さいたま市大宮区宮町5丁目[周辺地図]
交 通京浜東北・根岸線「大宮」駅徒歩8分





すべての画像
ご家族みんながゆったりくつろげる広々リビング。
大宮駅徒歩8分の、6月上旬リフォーム完成予定の物件です。リフォーム前ではありますが、間取りのご確認いただけます。是非ご確認ください。
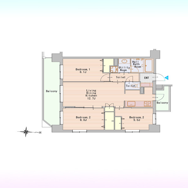
間取り
洗面所も新規交換になります。
浴室もユニットバス新規交換になります。
システムキッチン新規入れ替え予定です。
お手洗いも新しくなります。
12.7帖のリビング。実際に見るとかなり広く感じます。
リビングは家具の配置も思いのまま。自由度が高い設計です。
今は和室ですが、フローリングに交換予定です。
お隣のリビングと合わせると18.6帖に。広々と使えそうですね。
ゆとりの広さを確保したバルコニー。お布団を干すのも、この広さならラクラク。
6.1帖の洋室。窓から日が入ってきます。
太陽の恵みを感じる、温もりと明るさにあふれたお部屋。
ご家族の思い出も大切にしまっておけるたっぷり収納。
この部屋だれの部屋にしようかな、なんて会話を現地で楽しんでください。
5帖のお部屋。子供部屋にも趣味のお部屋にも最適ですね。
大容量の収納スペースで、住空間もスッキリ広々。
雨の日のお洗濯にも大活躍な、浴室乾燥機付き。
キッチンにはちょっとしたしたバルコニーがあります。
JR宇都宮線「東大宮」駅東口徒歩3分、提携駐車場もあります。エステート白馬東大宮店までお気軽にお問い合わせください。
マンション入り口は段差もなく、スムーズに出入りできます。
大宮駅徒歩8分、北大宮徒歩6分と、2路線使える物件です。
ゴミのないスッキリとしたエントランスです。
担当スタッフより

- 田中 綾
- ~人気のリモート見学・リモート相談サービス~
・小さいお子様や家事で外出できない、天気が悪く外出したくない時
・LINEやZOOMなど無料のアプリですぐにご利用いただけます
・リモート見学はスタッフがご興味ある物件の現地から映像をお届けします
・写真では伝わりにくい「空気感」や違うアングルからみたかったリビングの「見え方」などもしっかり確認できます
・リモート相談は第三者による住宅ローンや家計相談を専門のファイナンシャルプランナーと1対1で
・バーチャル背景でプライバシーも安心
・忙しいパートナーに変わって予め確認も
・別々の場所から家族みんなで参加もできます
・お気軽にご相談下さい
~営業時間~
9:30~18:30
こちらのお時間でしたらお電話でのお問合せがスムーズです
お気軽にお問合せください
物件詳細情報
物件No.20000447902
| 所在地 | 埼玉県さいたま市大宮区宮町5丁目 | ||
|---|---|---|---|
| 交通 | 京浜東北・根岸線「大宮」駅徒歩8分 東武野田線「北大宮」駅徒歩6分 ニューシャトル「鉄道博物館」駅徒歩16分 |
||
| 間取 | 3LDK (LDK12.7帖、洋室6.1帖、洋室6帖、洋室5帖) | ||
| 専有面積 | 64.8m² (壁芯) | ||
| バルコニー面積 | 14.71m² 南向き | ||
| 販売戸数 | 1戸 | 総戸数 | 全16戸 |
| 構造・規模 | 鉄骨鉄筋コンクリート造 6階建て 5階部分 |
築年・入居 | 2007年7月築 |
| 施工会社 | 勝村建設(株) | 現況 | 空室 |
| 引渡時期 | 相談 | 権利種類 | 所有権 |
| 管理費 | 17,500円/月 | 修繕積立金 | 20,440円/月 |
| 管理形態 | 日勤 全部委託 | 管理会社 | 日神管財(株) |
| ペット | 可 | 町内会費 | 85円/月 |
| CATV使用料 | 550円/月 | 小学校区 | さいたま市立大宮北小学校(450m) |
| 中学校区 | さいたま市立大宮北中学校(1400m) | 取引態様 | 媒介 |
| リフォーム |
|
||
| 設備 | 公営水道、都市ガス | ||
| 備考・制限等 | 駐車場:使用料、空き状況については要確認 ペット飼育:可 | ||
こだわり項目
- ※価格は物件の代金総額を表示しており、消費税が課税される場合は税込み価格です。(1,000円未満は切り上げ。)
税率は引き渡し時期により異なりますので、各物件の詳細につきましてはお問い合わせください。 - ※敷地権利が借地権のものは価格に権利金を含みます。
- ※制作中に内容が変更される場合もありますので、あらかじめご了承ください。
- ※購入の前には物件内容や契約条件についてご自身で十分な確認をしていただくようにお願いいたします。
- ※完成予想図はいずれも外構、植栽、外観等実際のものとは多少異なることがあります。
- ※CG合成の画像の場合、実際とは多少異なる場合があります。
周辺地図
周辺施設一覧
- ショッピングセンター
- スーパー
- コンビニ
- ドラッグストア
- ホームセンター
- 飲食店
- その他店舗
- 商店街
- 大学
- 専門学校
- 高校・高専
- 中学校
- 小学校
- 保育園
- 幼稚園
- 公民館・児童館
- 病院
- 郵便局
- 役所
- 図書館
- 金融機関
- 警察・消防
- 趣味・娯楽施設
- 公園・運動施設
- 周辺の街並み
- 駅
- その他
お問い合せ先
- 株式会社エステート白馬 東大宮店
- お電話でのお問い合わせは
0120-953-325「ホームページを見た」とお問い合わせください - 埼玉県さいたま市見沼区東大宮5-31-9 NYビル1F
- 営業時間:9:00~20:00
- 定休日:年中無休
- 免許番号:国土交通大臣免許(6)第5817号


















