- HOME
- 一戸建てをエリアから探す
- 東久留米市
- 前沢
- 東久留米市前沢5丁目 戸建 1-1
新築一戸建て

東久留米市前沢5丁目 戸建 1-1
情報更新日:2026/04/11 次回更新予定日:2026/04/25
価 格4,080万円(税込)
所在地東京都東久留米市前沢5丁目[周辺地図]
交 通西武新宿線「花小金井」駅バス9分 停歩2分


全室収納完備。WIC付。水廻り集中。シャワー付洗面化粧台。温水洗浄便座。ペアガラス。カースペース。コンビニ徒歩約4分、スーパー徒歩約8分
物件詳細情報
物件No.20000450020
| 所在地 | 東京都東久留米市前沢5丁目 | ||
|---|---|---|---|
| 交通 | 西武新宿線「花小金井」駅バス9分 バス停「滝山団地入口」停歩2分 | ||
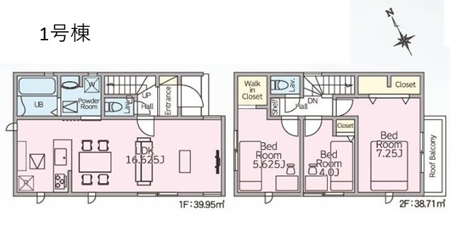
| 間取 | 3LDK | ||
| 土地面積 | 89.38m² 公簿 | ||
| 建物面積 | 78.66m² 公簿 | ||
| 販売戸数 | 1戸 | 総戸数 | 全3戸 |
| 構造・規模 | 木造 2階建て | 築年・入居 | 2026年6月 |
| バルコニー | 南東向き | 建物現況 | 建築中 |
| 建築確認番号 | 第25UDI1W建12964号 | 駐車スペース | 1台(カースペース) |
| 引渡時期 | 期日指定有(2026年7月) | 国土法届出 | 不要 |
| 地目 | 宅地 | 用途地域 | 第一種低層住居専用地域 |
| 建ぺい率 | 60% | 容積率 | 150% |
| 都市計画 | 市街化区域 | 権利種類 | 所有権 |
| 接道 | 南東側6M公道に2.8M接道 | 小学校区 | 第九小学校(310m) |
| 中学校区 | 西中学校(990m) | 取引態様 | 媒介 |
| 設備 | 公営水道、本下水、都市ガス | ||
| 省エネ性能表示 | エネルギー消費性能:★★★ 断熱性能:6段階 目安光熱費:約15.5万円/年 |
||
| 備考・制限等 | 土地面積:路地状部分約27平米含 | ||
こだわり項目
LDK15帖以上耐震構造省エネ・エコ住宅床下収納全居室収納複層ガラスガスコンロシステムキッチンカウンターキッチン3口以上コンロトイレ2ヶ所温水洗浄便座シャワー付洗面台浴室に窓ウォークインクローゼット小学校800m以内コンビニ400m以内公園800m以内
- ※価格は物件の代金総額を表示しており、消費税が課税される場合は税込み価格です。(1,000円未満は切り上げ。)
税率は引き渡し時期により異なりますので、各物件の詳細につきましてはお問い合わせください。 - ※敷地権利が借地権のものは価格に権利金を含みます。
- ※制作中に内容が変更される場合もありますので、あらかじめご了承ください。
- ※購入の前には物件内容や契約条件についてご自身で十分な確認をしていただくようにお願いいたします。
- ※完成予想図はいずれも外構、植栽、外観等実際のものとは多少異なることがあります。
- ※CG合成の画像の場合、実際とは多少異なる場合があります。
周辺地図
周辺施設一覧
- ショッピングセンター
- スーパー
- コンビニ
- ドラッグストア
- ホームセンター
- 飲食店
- その他店舗
- 商店街
- 大学
- 専門学校
- 高校・高専
- 中学校
- 小学校
- 保育園
- 幼稚園
- 公民館・児童館
- 病院
- 郵便局
- 役所
- 図書館
- 金融機関
- 警察・消防
- 趣味・娯楽施設
- 公園・運動施設
- 周辺の街並み
- 駅
- その他
お問い合せ先
- 株式会社エステート白馬 国分寺店
- お電話でのお問い合わせは
0120-846-898「ホームページを見た」とお問い合わせください - 東京都国分寺市本町4-19-10 ビッググラッド国分寺1F
- 営業時間:9:30~18:30
- 定休日:年中無休
- 免許番号:国土交通大臣免許(6)第5817号
- HOME
- 一戸建てをエリアから探す
- 東久留米市
- 前沢
- 東久留米市前沢5丁目 戸建 1-1






