- HOME
- 土地をエリアから探す
- 立川市
- 羽衣町
- 立川市羽衣町3丁目 土地 A区画
立川市羽衣町3丁目 土地 A区画
情報更新日:2026/04/12 次回更新予定日:2026/04/26
価 格3,300万円(土地のみの価格です)
所在地東京都立川市羽衣町3丁目[周辺地図]
交 通南武線「西国立」駅徒歩10分





HAKUBAグループでは、土地や住まいの売買から設計、建築、
医療、介護そして保険や金融、税金対策、資産形成まで
さまざまなスペシャリストが集い、連携してサービス提供をしております。
専門知識や経験をかけあわせることで、お客様ひとりひとりにあった健康的な暮らしをお届けし、
人生が「プラス」の方向に進んでいくお手伝いをさせて頂きます。
すべての画像
現地のご見学予約もスタートしました。周辺で売りに出ている物件も沢山御座います。まとめてご見学ができますのでお気軽にお申しつけください。
周辺のエリアで他にも沢山売りに出ている物件があります。インターネット掲載前の情報などもありますのでお気軽にお問合せください。まとめてご見学できます。
安心して暮らすことのできる住宅街。 住宅地の道路は一般に交通量が少なく車などの騒音が少ないため、住民にとって静かな生活環境が提供されます。
全体区画図
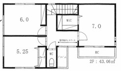
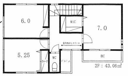
モデル間取り:建物価格 1,980万円、建物面積 86.12平米 (1Fのモデル間取りは区画図にございます)
現地ご見学の際、スタッフが様々なご質問に対応いたします、周辺環境、前面道路、建築可能な建物について、ぜひご相談ください。
土地物件にはご確認頂くポイントがたくさんございます、土地だけのご見学の際もご遠慮せず、ぜひお気軽に担当スタッフにお申しつけくださいませ。
現地のご見学予約もスタートしました。周辺で売りに出ている物件も沢山御座います。まとめてご見学ができますのでお気軽にお申しつけください。
周辺のエリアで他にも沢山売りに出ている物件があります。インターネット掲載前の情報などもありますのでお気軽にお問合せください。まとめてご見学できます。
土地物件にはご確認頂くポイントがたくさんございます、土地だけのご見学の際もご遠慮せず、ぜひお気軽に担当スタッフにお申しつけくださいませ。
安心して暮らすことのできる住宅街。 住宅地の道路は一般に交通量が少なく車などの騒音が少ないため、住民にとって静かな生活環境が提供されます。
この街を選ぶ理由や想像している生活のイメージを担当者と共有してもらえると嬉しいです。 今後の暮らしがどのようなものになるか、その想像が現実になるためのステップを一緒に考えましょう。
JR南武線「西国立」駅 800m
担当スタッフより

- 長谷川 佳行
- この土地は、土地売買契約締結後3カ月以内に、売主指定の建築会社と建物の建築請負契約を締結することを条件に販売します。この期間内に建築請負契約が締結されなかった場合は、土地売買契約は白紙となり、受領した手付金等の金銭は全てお返しします。
物件詳細情報
物件No.20000450047
| 所在地 | 東京都立川市羽衣町3丁目 | ||
|---|---|---|---|
| 交通 | 南武線「西国立」駅徒歩10分 南武線「矢川」駅徒歩10分 |
||
| 土地面積 | 108.38m² 実測 (セットバック9.46m²) | ||
| 販売区画数 | 1区画 | 総区画数 | 全2区画 |
| 用途地域 | 第一種低層住居専用地域 | 建ぺい率 | 40% |
| 容積率 | 80% | 都市計画 | 市街化区域 |
| 国土法届出 | 不要 | 建築条件 | 建築条件付 |
| 地目 | 宅地 | 最適用途 | 住宅用地 |
| 現況 | 更地 | 引渡時期 | 相談 |
| 引渡条件 | 現況渡し | 権利種類 | 所有権 |
| 接道 | 東側4M私道に10.7M接道 西側1.8M公道に8.77M接道 |
小学校区 | 立川市立第六小学校(1000m) |
| 中学校区 | 立川市立第三中学校(500m) | 取引態様 | 媒介 |
| 設備 | 公営水道、本下水、都市ガス | ||
こだわり項目
- ※価格は物件の代金総額を表示しており、消費税が課税される場合は税込み価格です。(1,000円未満は切り上げ。)
税率は引き渡し時期により異なりますので、各物件の詳細につきましてはお問い合わせください。 - ※敷地権利が借地権のものは価格に権利金を含みます。
- ※制作中に内容が変更される場合もありますので、あらかじめご了承ください。
- ※購入の前には物件内容や契約条件についてご自身で十分な確認をしていただくようにお願いいたします。
- ※完成予想図はいずれも外構、植栽、外観等実際のものとは多少異なることがあります。
- ※CG合成の画像の場合、実際とは多少異なる場合があります。
周辺地図
周辺施設一覧
- ショッピングセンター
- スーパー
- コンビニ
- ドラッグストア
- ホームセンター
- 飲食店
- その他店舗
- 商店街
- 大学
- 専門学校
- 高校・高専
- 中学校
- 小学校
- 保育園
- 幼稚園
- 公民館・児童館
- 病院
- 郵便局
- 役所
- 図書館
- 金融機関
- 警察・消防
- 趣味・娯楽施設
- 公園・運動施設
- 周辺の街並み
- 駅
- その他
お問い合せ先
- 株式会社エステート白馬 国分寺店
- お電話でのお問い合わせは
0120-846-898「ホームページを見た」とお問い合わせください - 東京都国分寺市本町4-19-10 ビッググラッド国分寺1F
- 営業時間:9:30~18:30
- 定休日:年中無休
- 免許番号:国土交通大臣免許(6)第5817号









