- HOME
- 中古マンションをエリアから探す
- 練馬区
- 関町南
- 関町南パーク・ホームズ
中古マンション

関町南パーク・ホームズ
情報更新日:2026/04/19 次回更新予定日:2026/05/03
価 格3,398万円(税込)
所在地東京都練馬区関町南4丁目[周辺地図]
交 通西武新宿線「東伏見」駅徒歩12分





デザインリフォーム内容(2026年4月)
キッチン交換、バスルーム交換、トイレ交換、クロス貼替、建具交換など
「吉祥寺」駅や「三鷹」駅までアクセスしやすい関町南アドレスに暮らす
ペットと一緒に暮らせるお部屋です
新耐震基準のマンションです。
キッチン交換、バスルーム交換、トイレ交換、クロス貼替、建具交換など
「吉祥寺」駅や「三鷹」駅までアクセスしやすい関町南アドレスに暮らす
ペットと一緒に暮らせるお部屋です
新耐震基準のマンションです。
担当スタッフより

- 加藤義平
- 現地ご見学予約スタートしました。他にもインターネットに掲載していない情報も沢山ありますので、まとめてご見学可能です。また、年中無休(年末年始を除く)で営業しております。火曜日水曜日も営業しておりますのでお気軽にお問合せください。
物件詳細情報
物件No.20000450145
| 所在地 | 東京都練馬区関町南4丁目 | ||
|---|---|---|---|
| 交通 | 西武新宿線「東伏見」駅徒歩12分 中央線「三鷹」駅徒歩36分 西武新宿線「武蔵関」駅徒歩18分 |
||
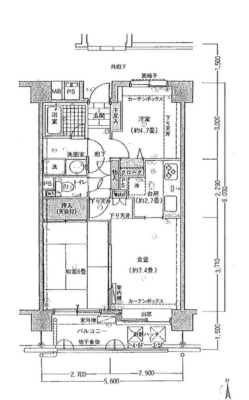
| 間取 | 2LDK | ||
| 専有面積 | 49.24m² (壁芯) | ||
| バルコニー面積 | 8.4m² 南向き | ||
| 販売戸数 | 1戸 | 総戸数 | 全19戸 |
| 構造・規模 | 鉄筋コンクリート造 7階建て 6階部分 |
築年・入居 | 1986年12月築 |
| 現況 | 空室 | 引渡時期 | 相談 |
| 権利種類 | 所有権 | 管理費 | 10,900円/月 |
| 修繕積立金 | 10,900円/月 | 管理形態 | 日勤 全部委託 |
| 取引態様 | 媒介 | ||
- ※価格は物件の代金総額を表示しており、消費税が課税される場合は税込み価格です。(1,000円未満は切り上げ。)
税率は引き渡し時期により異なりますので、各物件の詳細につきましてはお問い合わせください。 - ※敷地権利が借地権のものは価格に権利金を含みます。
- ※制作中に内容が変更される場合もありますので、あらかじめご了承ください。
- ※購入の前には物件内容や契約条件についてご自身で十分な確認をしていただくようにお願いいたします。
- ※完成予想図はいずれも外構、植栽、外観等実際のものとは多少異なることがあります。
- ※CG合成の画像の場合、実際とは多少異なる場合があります。
周辺地図
周辺施設一覧
- ショッピングセンター
- スーパー
- コンビニ
- ドラッグストア
- ホームセンター
- 飲食店
- その他店舗
- 商店街
- 大学
- 専門学校
- 高校・高専
- 中学校
- 小学校
- 保育園
- 幼稚園
- 公民館・児童館
- 病院
- 郵便局
- 役所
- 図書館
- 金融機関
- 警察・消防
- 趣味・娯楽施設
- 公園・運動施設
- 周辺の街並み
- 駅
- その他
お問い合せ先
- 株式会社エステート白馬 国分寺店
- お電話でのお問い合わせは
0120-846-898「ホームページを見た」とお問い合わせください - 東京都国分寺市本町4-19-10 ビッググラッド国分寺1F
- 営業時間:9:30~18:30
- 定休日:年中無休
- 免許番号:国土交通大臣免許(6)第5817号
- HOME
- 中古マンションをエリアから探す
- 練馬区
- 関町南
- 関町南パーク・ホームズ





