- HOME
- 一戸建てをエリアから探す
- 立川市
- 幸町
- 立川市幸町5丁目 新築戸建 H号棟
新築一戸建て

立川市幸町5丁目 新築戸建 H号棟
情報更新日:2026/04/20 次回更新予定日:2026/05/04
価 格5,980万円(税込)
所在地東京都立川市幸町5丁目[周辺地図]
交 通多摩モノレール「砂川七番」駅徒歩9分


多摩モノレール砂川七番駅まで歩いて9~10分のアクセス
平成新道付近、五日市街道付近の便利な暮らし
○○現地販売会・開催○○
土日に不在時もありますが、現地で販売会を行っています
カーナビ入力【立川市幸町5-4】
全14棟の分譲です、建物仕様のご案内等お気軽にお問合せ下さい
平成新道付近、五日市街道付近の便利な暮らし
○○現地販売会・開催○○
土日に不在時もありますが、現地で販売会を行っています
カーナビ入力【立川市幸町5-4】
全14棟の分譲です、建物仕様のご案内等お気軽にお問合せ下さい
担当スタッフより

- 吉田 勇人
- 立川市幸町エリアの全14棟 新築分譲です 4LDKのプランでゆったりお住まい頂けます モデルハウスご見学などお気軽にお申しつけください
物件詳細情報
物件No.20000451569
| 所在地 | 東京都立川市幸町5丁目 | ||
|---|---|---|---|
| 交通 | 多摩モノレール「砂川七番」駅徒歩9分 | ||
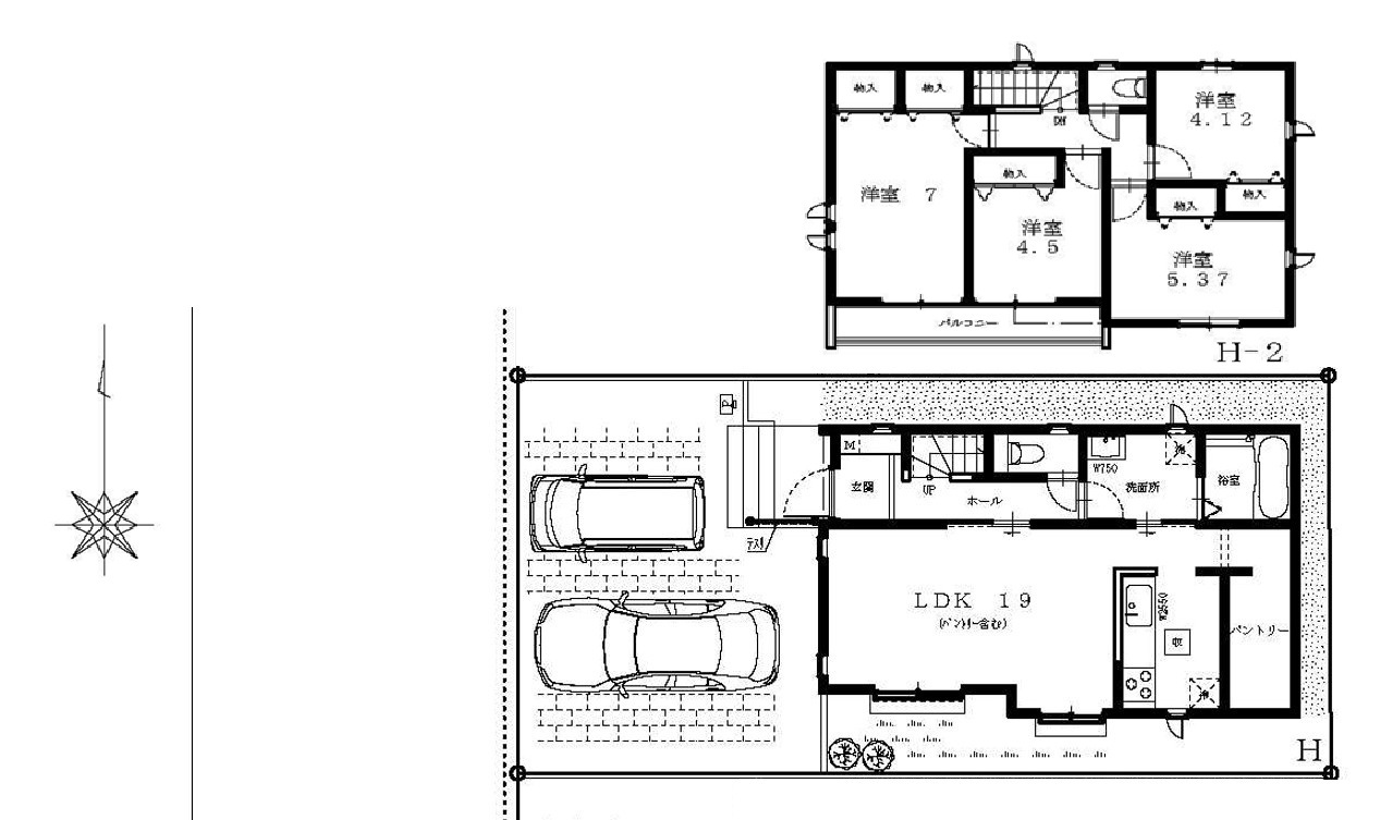
| 間取 | 4LDK | ||
| 土地面積 | 120.26m² 実測 | ||
| 建物面積 | 94.81m² 実測 | ||
| 販売戸数 | 1戸 | 総戸数 | 全14戸 |
| 構造・規模 | 木造 2階建て | 築年・入居 | 2026年8月下旬 |
| バルコニー | 南向き | 建物現況 | 建築中 |
| 建築確認番号 | 第HPA-26-02582-1号 | 駐車スペース | 2台 |
| 引渡時期 | 期日指定有(2026年9月下旬) | 国土法届出 | 不要 |
| 地目 | 宅地 | 用途地域 | 第一種低層住居専用地域 |
| 建ぺい率 | 40% | 容積率 | 80% |
| 都市計画 | 市街化区域 | 権利種類 | 所有権 |
| 接道 | 西側6M公道に7.67M接道 | 取引態様 | 媒介 |
| 設備 | 公営水道、本下水、都市ガス | ||
こだわり項目
整形地平坦地緑豊かな住宅地閑静な住宅地地盤調査済LDK15帖以上南向き床下収納全居室収納システムキッチンカウンターキッチン3口以上コンロパントリー(食器・食品の収納庫)トイレ2ヶ所温水洗浄便座シャワー付洗面台追焚機能TVモニタ付インターホン
- ※価格は物件の代金総額を表示しており、消費税が課税される場合は税込み価格です。(1,000円未満は切り上げ。)
税率は引き渡し時期により異なりますので、各物件の詳細につきましてはお問い合わせください。 - ※敷地権利が借地権のものは価格に権利金を含みます。
- ※制作中に内容が変更される場合もありますので、あらかじめご了承ください。
- ※購入の前には物件内容や契約条件についてご自身で十分な確認をしていただくようにお願いいたします。
- ※完成予想図はいずれも外構、植栽、外観等実際のものとは多少異なることがあります。
- ※CG合成の画像の場合、実際とは多少異なる場合があります。
周辺地図
周辺施設一覧
- ショッピングセンター
- スーパー
- コンビニ
- ドラッグストア
- ホームセンター
- 飲食店
- その他店舗
- 商店街
- 大学
- 専門学校
- 高校・高専
- 中学校
- 小学校
- 保育園
- 幼稚園
- 公民館・児童館
- 病院
- 郵便局
- 役所
- 図書館
- 金融機関
- 警察・消防
- 趣味・娯楽施設
- 公園・運動施設
- 周辺の街並み
- 駅
- その他
お問い合せ先
- 株式会社エステート白馬 国分寺店
- お電話でのお問い合わせは
0120-846-898「ホームページを見た」とお問い合わせください - 東京都国分寺市本町4-19-10 ビッググラッド国分寺1F
- 営業時間:9:30~18:30
- 定休日:年中無休
- 免許番号:国土交通大臣免許(6)第5817号
- HOME
- 一戸建てをエリアから探す
- 立川市
- 幸町
- 立川市幸町5丁目 新築戸建 H号棟





