- HOME
- 一戸建てをエリアから探す
- 三鷹市
- 中原
- 三鷹市中原4丁目 戸建 10期
新築一戸建て

三鷹市中原4丁目 戸建 10期
情報更新日:2026/04/27 次回更新予定日:2026/05/11
価 格6,480万円(税込)
所在地東京都三鷹市中原4丁目[周辺地図]
交 通京王線「つつじヶ丘」駅徒歩18分

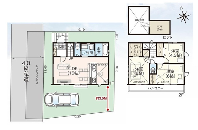
LDK16帖、リビングイン階段。浴室乾燥機付。WIC、ロフトあり。全居室収納あり、2面採光。南西向きワイドバルコニー。閑静な住宅街。コンビニまで徒歩4分。
物件詳細情報
物件No.20000452152
| 所在地 | 東京都三鷹市中原4丁目 | ||
|---|---|---|---|
| 交通 | 京王線「つつじヶ丘」駅徒歩18分 | ||
| 間取 | 3LDK | ||
| 土地面積 | 100.88m² 実測 (私道2.6m²別に有) | ||
| 建物面積 | 79.48m² 実測 | ||
| 販売戸数 | 1戸 | 総戸数 | 全1戸 |
| 構造・規模 | 木造 2階建て | 築年・入居 | 2026年3月 |
| バルコニー | 南西向き | 建物現況 | 完成済 |
| 建築確認番号 | TKK確済25-332号 | 駐車スペース | 1台(カースペース) |
| 引渡時期 | 即引渡可 | 国土法届出 | 不要 |
| 地目 | 宅地 | 用途地域 | 第一種低層住居専用地域 |
| 建ぺい率 | 40% | 容積率 | 80% |
| 都市計画 | 市街化区域 | 権利種類 | 所有権 |
| 接道 | 北西側4M私道に11.46M接道 | 小学校区 | 東台小学校(600m) |
| 中学校区 | 第五中学校(1470m) | 取引態様 | 媒介 |
| 設備 | 公営水道、本下水、都市ガス | ||
こだわり項目
閑静な住宅地LDK15帖以上耐震構造全室2面採光床下収納全居室収納複層ガラスシステムキッチンカウンターキッチン3口以上コンロトイレ2ヶ所温水洗浄便座シャワー付洗面台浴室乾燥機浴室に窓リビング階段ウォークインクローゼットロフト小学校800m以内保育園・幼稚園800m以内コンビニ400m以内公園800m以内
- ※価格は物件の代金総額を表示しており、消費税が課税される場合は税込み価格です。(1,000円未満は切り上げ。)
税率は引き渡し時期により異なりますので、各物件の詳細につきましてはお問い合わせください。 - ※敷地権利が借地権のものは価格に権利金を含みます。
- ※制作中に内容が変更される場合もありますので、あらかじめご了承ください。
- ※購入の前には物件内容や契約条件についてご自身で十分な確認をしていただくようにお願いいたします。
- ※完成予想図はいずれも外構、植栽、外観等実際のものとは多少異なることがあります。
- ※CG合成の画像の場合、実際とは多少異なる場合があります。
周辺地図
周辺施設一覧
- ショッピングセンター
- スーパー
- コンビニ
- ドラッグストア
- ホームセンター
- 飲食店
- その他店舗
- 商店街
- 大学
- 専門学校
- 高校・高専
- 中学校
- 小学校
- 保育園
- 幼稚園
- 公民館・児童館
- 病院
- 郵便局
- 役所
- 図書館
- 金融機関
- 警察・消防
- 趣味・娯楽施設
- 公園・運動施設
- 周辺の街並み
- 駅
- その他
お問い合せ先
- 株式会社エステート白馬 国分寺店
- お電話でのお問い合わせは
0120-846-898「ホームページを見た」とお問い合わせください - 東京都国分寺市本町4-19-10 ビッググラッド国分寺1F
- 営業時間:9:30~18:30
- 定休日:年中無休
- 免許番号:国土交通大臣免許(6)第5817号
- HOME
- 一戸建てをエリアから探す
- 三鷹市
- 中原
- 三鷹市中原4丁目 戸建 10期





