- HOME
- 中古マンションをエリアから探す
- 新宿区
- 四谷
- クラッシィタワー新宿御苑
中古マンション
クラッシィタワー新宿御苑
情報更新日:2026/04/06 次回更新予定日:2026/04/20
価 格6億4,980万円
所在地東京都新宿区四谷4丁目[周辺地図]
交 通東京メトロ丸ノ内線「新宿御苑前」駅徒歩4分





2024年築のタワーレジデンス、28階部分、眺望の良いお部屋です。総戸数280戸の制振マンション、パークビューラウンジ、ロイヤルサロンなど共用施設も充実。新宿御苑まで徒歩2分、緑豊かな住環境です。
物件詳細情報
物件No.31018224921
| 所在地 | 東京都新宿区四谷4丁目 | ||
|---|---|---|---|
| 交通 | 東京メトロ丸ノ内線「新宿御苑前」駅徒歩4分 東京メトロ副都心線「新宿三丁目」駅徒歩11分 都営新宿線「新宿三丁目」駅徒歩11分 |
||
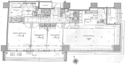
| 間取 | 3LDK (LDK29.8帖、洋室10帖、洋室6帖、洋室6帖) | ||
| 専有面積 | 116.14m² (壁芯) | ||
| バルコニー面積 | 20.56m² 南西向き | ||
| 総戸数 | 全280戸 | 構造・規模 | 鉄筋コンクリート造 35階建て 地下1階 28階部分 |
| 築年・入居 | 2025年4月築 | 建築確認番号 | JCIA確認21第00428号 |
| 施工会社 | 鹿島建設ケ部式会社 | 現況 | 完成済 |
| 引渡時期 | 相談 | 権利種類 | 所有権 |
| 管理費 | 71,070円/月 | 修繕積立金 | 19,120円/月 |
| 管理形態 | 日勤 全部委託 | 管理会社 | 住商建物株式会社 |
| 駐車場 | 敷地内にあり 料金:38,000 ~ 47,000円/月 | 駐輪場料金 | 200円〜600円/月 |
| ペット | 可 | インターネット接続サービス利用料 | 1,375円/月 |
| ロイヤルサロン使用料 | 1,160円/月 | 取引態様 | 媒介 |
こだわり項目
LDK15帖以上南向きゲストルームワイドバルコニー複層ガラス床暖房食器洗浄機システムキッチンカウンターキッチン3口以上コンロ温水洗浄便座節水型トイレシャワー付洗面台浴室乾燥機オートバスバリアフリー仕様TVモニタ付インターホンオートロック防犯カメラエレベーター駐輪場全居室フローリング24時間ゴミ出し可
- ※価格は物件の代金総額を表示しており、消費税が課税される場合は税込み価格です。(1,000円未満は切り上げ。)
税率は引き渡し時期により異なりますので、各物件の詳細につきましてはお問い合わせください。 - ※敷地権利が借地権のものは価格に権利金を含みます。
- ※制作中に内容が変更される場合もありますので、あらかじめご了承ください。
- ※購入の前には物件内容や契約条件についてご自身で十分な確認をしていただくようにお願いいたします。
- ※完成予想図はいずれも外構、植栽、外観等実際のものとは多少異なることがあります。
- ※CG合成の画像の場合、実際とは多少異なる場合があります。
周辺地図
周辺施設一覧
- ショッピングセンター
- スーパー
- コンビニ
- ドラッグストア
- ホームセンター
- 飲食店
- その他店舗
- 商店街
- 大学
- 専門学校
- 高校・高専
- 中学校
- 小学校
- 保育園
- 幼稚園
- 公民館・児童館
- 病院
- 郵便局
- 役所
- 図書館
- 金融機関
- 警察・消防
- 趣味・娯楽施設
- 公園・運動施設
- 周辺の街並み
- 駅
- その他
お問い合せ先
- 株式会社エステート白馬 中野店
- お電話でのお問い合わせは
0120-512-325「ホームページを見た」とお問い合わせください - 東京都中野区新井2-1-19 パックマートビル4F
- 営業時間:9:30~19:00
- 定休日:年中無休
- 免許番号:国土交通大臣免許(6)第5817号
- HOME
- 中古マンションをエリアから探す
- 新宿区
- 四谷
- クラッシィタワー新宿御苑






