- HOME
- 中古マンションをエリアから探す
- 川口市
- 東川口
- グラン・コート東川口
グラン・コート東川口
情報更新日:2026/04/27 次回更新予定日:2026/05/11
価 格3,280万円(税込)
所在地埼玉県川口市東川口5丁目[周辺地図]
交 通武蔵野線「東川口」駅徒歩11分





全室オーダー家具・全室照明付きです!
オートロック付き・陽当り良好・周辺施設が充実!
東川口駅から徒歩11分で、通勤・通学にも便利でございます!
いつでも現地のご見学承ります。お気軽にお問い合わせくださいませ。
<エステート白馬が選ばれる5つのポイント>
1.提携FPへの無料個別相談サービス
社外の中立的なファイナンシャルプランナーと無料相談できます。
ローン返済だけでなく、教育・老後の資金等も含めてシミュレーションをご提案できます。
2.物件情報が豊富
越谷市を中心にたくさんの情報をご用意しております。
インターネット広告前の未公開物件も多数取り揃えております。
3.HAKUBAグループでリフォーム、注文建築
越谷店はショールームとなっており、リフォーム、注文建築部門の相談スペースです。
一級建築士をはじめとした専門スタッフがおりますのでご見学と合わせて、リフォームや注文建築についてご相談頂けます。
4.年中無休(年末年始除く)で営業しております
営業時間 9:30~19:00 この時間はお電話でのお問合わせがスムーズです
5.お子様連れでおこしください
キッズスペース、授乳室、オムツ替えベッドをご用意しております。
すべての画像
ご家族みんながゆったりくつろげる広々リビング。
料理をしながらでも、ご家族との会話を楽しめる対面キッチン。
閑静な住宅地で、小さなお子様がいるご家族にも安心。
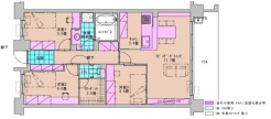
間取り
新生活を迎えるにあたって、この新しい設備品たちはうれしい限りですね。
リビングで遊ぶお子様を見守りながらお料理ができる、対面キッチン。
食器洗乾燥機付き、忙しい生活をサポートします。
手を伸ばせばそこに収納が。安定した使用感の吊戸棚つきのキッチン空間。
家族が自然に集りそうな広さが魅力のLDK。
家族団らんの時間も増えそうな、くつろぎのLDK。
ご家族の思い出も大切にしまっておけるたっぷり収納。
TVモニター付きインターフォン
今からここを誰のお部屋にしようか、そんな洋室。大きさは4.5帖です。
完成済み、実物をじっくりチェックできます。
生活用品のレイアウトが見やすい一面鏡タイプの洗面化粧台。
脱衣場
ユニットバスも新規交換。キレイなお風呂で疲れをリフレッシュ。
清潔好きには欠かせないウォシュレット機能付き。
今からここを誰のお部屋にしようか、そんな洋室。大きさは6.0帖です。
完成済み、実物をじっくりチェックできます。
部屋ごとに設けた収納は、住みやすさへのこだわり。
季節物の衣類もスッキリ収納できる、ウォークインクローゼット。
今からここを誰のお部屋にしようか、そんな洋室。大きさは5.0帖です。
部屋ごとに設けた収納は、住みやすさへのこだわり。
玄関
玄関がいつも片づく大容量シューズボックス。
廊下
廊下
廊下や玄関の共用部には、こんな収納があるととっても便利です。
ゆとりの広さを確保したバルコニー。お布団を干すのも、この広さならラクラク。
玄関
廊下
担当スタッフより

- 坂口 卓生
- ご見学にあわせて、無料の外部FP相談をご利用頂けます。マイホーム購入だけでなく、老後の資金計画・お子様の教育資金等のライフシュミレーションを考慮した上で、無理のない返済計画をご提案させていただきます。
物件詳細情報
物件No.31020331389
| 所在地 | 埼玉県川口市東川口5丁目 | ||
|---|---|---|---|
| 交通 | 武蔵野線「東川口」駅徒歩11分 埼玉高速鉄道「東川口」駅徒歩11分 埼玉高速鉄道「浦和美園」駅徒歩36分 |
||
| 間取 | 3LDK+クローゼット2帖 (LD11.7帖、K3.4帖、洋室6帖、洋室5帖、洋室4.5帖) | ||
| 専有面積 | 69.02m² (壁芯) | ||
| 販売戸数 | 1戸 | 総戸数 | 全34戸 |
| 構造・規模 | 鉄筋コンクリート造 5階建て 1階部分 |
築年・入居 | 2006年3月築 |
| 現況 | 空室 | 引渡時期 | 即引渡可 |
| 権利種類 | 所有権 | 管理費 | 10,490円/月 |
| 修繕積立金 | 10,140円/月 | 管理形態 | 巡回 全部委託 |
| 小学校区 | 川口市立戸塚北小学校(366m) | 中学校区 | 川口市立戸塚中学校(2300m) |
| 取引態様 | 媒介 | ||
| 設備 | 公営水道、本下水、都市ガス | ||
こだわり項目
- ※価格は物件の代金総額を表示しており、消費税が課税される場合は税込み価格です。(1,000円未満は切り上げ。)
税率は引き渡し時期により異なりますので、各物件の詳細につきましてはお問い合わせください。 - ※敷地権利が借地権のものは価格に権利金を含みます。
- ※制作中に内容が変更される場合もありますので、あらかじめご了承ください。
- ※購入の前には物件内容や契約条件についてご自身で十分な確認をしていただくようにお願いいたします。
- ※完成予想図はいずれも外構、植栽、外観等実際のものとは多少異なることがあります。
- ※CG合成の画像の場合、実際とは多少異なる場合があります。
周辺地図
周辺施設一覧
- ショッピングセンター
- スーパー
- コンビニ
- ドラッグストア
- ホームセンター
- 飲食店
- その他店舗
- 商店街
- 大学
- 専門学校
- 高校・高専
- 中学校
- 小学校
- 保育園
- 幼稚園
- 公民館・児童館
- 病院
- 郵便局
- 役所
- 図書館
- 金融機関
- 警察・消防
- 趣味・娯楽施設
- 公園・運動施設
- 周辺の街並み
- 駅
- その他
お問い合せ先
- 株式会社エステート白馬 越谷店
- お電話でのお問い合わせは
0120-315-586「ホームページを見た」とお問い合わせください - 埼玉県越谷市大字袋山1361-16 1F
- 営業時間:9:00~18:00
- 定休日:年中無休
- 免許番号:国土交通大臣免許(6)第5817号






















